Онлайн книга «Водоснабжение, канализация и отопление загородного дома»
|
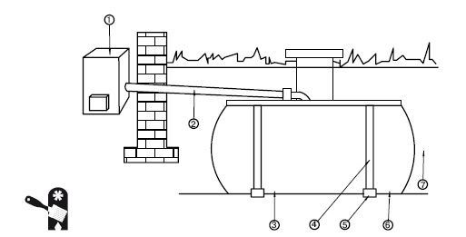
Поэтому котлы, работающие на жидком топливе, обычно устанавливаются и используются как запасной вариант – на случай, если основной котел выйдет из строя и будет нуждаться в ремонте, или вдруг окажется недостаточно топлива для основного котла. В качестве же последнего в таком случае выбирается стандартный газовый, твердотопливный или пиролизный котел. В табл. 3.1 приведены различия в расходе топлива для разных отопительных котлов. Таблица 3.1. Расход твердого топлива в отопительных котлах различного типа [7] ![]() Но некоторые домовладельцы предпочитают именно жидкотопливные котлы. Кто-то соблазняется их плюсами, кто-то имеет возможность дешево приобретать топливо, кто-то ожидает подключения магистрального газа, а жидкотопливные котлы могут работать и с газовыми горелками (для их «превращения» в газовые котлы требуется небольшая перенастройка) (Рис. 3.7). ![]() Рис. 3.7.Жидкотопливный котел со сменной горелкой ![]() Примечание В ожидании подключения магистрального газа домовладельцы нередко снабжают жидкотопливные котлы битопливными горелками, то есть теми, которые могут работать как на жидком топливе, так и на газе. Прежде чем приобретать такую горелку, следует учесть, что ее цена почти в 3 раза выше, чем монотопливной (горелки, работающей только на жидком топливе), а эффективность – гораздо ниже. При выборе жидкотопливного котла обратите внимание на материал, из которого изготовлен теплообменник: чугун или сталь. Каждый из этих вариантов обладает как своими плюсами, так и минусами, и владельцу загородного дома приходится руководствоваться собственными предпочтениями (количество плюсов и минусов примерно одинаково). Стальной теплообменник по сравнению с чугунным отличается ударопрочностью и легкостью. Ударопрочность стальных теплообменников актуальна лишь при перевозке и установке котла – сталь с легкостью выдерживает все транспортные проблемы, а вот чугунный теплообменник может обзавестись микротрещинами в результате транспортировки и даже при погрузочно-разгрузочных работах. В то же время чугунные теплообменники гораздо более устойчивы к коррозии по сравнению со стальными, и срок службы их больше (если, конечно, удалось избежать образования микротрещин при транспортировке и установке). Стойкость к коррозии чугунного теплообменника весьма актуальна, когда речь идет о дизельном топливе – при сгорании солярки образуется агрессивный конденсат, разрушающий металл. Чугунный теплообменник в таких неблагоприятных условиях служит до 30 лет, а срок службы стального теплообменника – в два раза меньше. Правда, и цена стального теплообменника ниже, чем чугунного. Кроме относительной хрупкости, у чугуна есть еще один недостаток: при использовании жесткой воды в чугунном теплообменнике возникают локальные перегревы, что приводит к разрушению теплообменника. Так что прежде чем размышлять над проблемами транспортировки, проверьте жесткость воды, которая будет использоваться в вашем отопительном оборудовании, – возможно, вопрос снимется сам собой. Подавляющее большинство моделей жидкотопливных котлов, предлагаемых российским рынком, одноконтурные, при этом подогрев воды для обеспечения горячего водоснабжения может осуществляться в бойлере с трубчатым теплообменником, который подключается к котлу (Рис. 3.8). Бойлер может быть использован для обеспечения теплом как относительно низкотемпературных частей отопительной системы (например, для подогрева теплоносителя системы «теплый пол» или в отопительных стеновых панелях), так и высокотемпературных (системы горячего водоснабжения, радиаторов отопления и т. д.). Если вы желаете установить такой бойлер, то оптимальным выбором будет оборудование того же производителя, который произвел котел, и при этом бойлер гарантированно будет согласован с котлом по мощности. Практически все производители жидкотопливных котлов предлагают и отдельные бойлеры для горячего водоснабжения. Самый большой минус жидкотопливного котла – высокая цена на топливо. Сэкономить его помогает установка двухступенчатой горелки. Она может работать и на полной, и на частичной мощности, в то время как одноступенчатая горелка работает только на полной мощности, а температура теплоносителя регулируется с помощью включения/выключения. Изменение мощности двухступенчатой горелкой позволяет сэкономить несколько сотен литров солярки за отопительный сезон, а вот включение/отключение одноступенчатой горелки приводит к перерасходу топлива – за счет большого расхода на первоначальный впрыск. Обычно двухступенчатыми горелками оснащаются котлы с мощностью, превышающей 40 кВт. ![]() Рис. 3.8.Типовые бойлеры с трубчатым теплообменником Особое внимание рекомендуется уделить топливному баку – самый простой «девайс» жидкотопливного котла может принести массу неприятных неожиданностей, если отнестись к нему с небрежностью. Возможно несколько вариантов расположения топливного бака: на одном уровне с насосом, выше и ниже котла. Если бак располагается выше насоса, то топливо в горелку может поступать под действием силы тяжести (самотечная схема, аналогичная гравитационной схеме циркуляции теплоносителя). Если же бак располагается ниже котла, то следует предусмотреть специальный насос, который будет подавать топливо из бака к котловой горелке. Нередко владельцы загородных домов предпочитают закапывать топливные баки в грунт – таким образом экономится место в помещении (а бак, вмещающий 3–4 тонны топлива, а то и больше, требует немало места), а также обеспечивается определенная безопасность в хранении топлива (Рис. 3.9). ![]() Рис. 3.9.Топливный бак для жидкотопливного котла, расположенный в грунте: 1 – котел; 2 – топливопровод; 3 – топливный бак; 4 – стропы; 5 – закладные; 6 – бетонная подушка; 7 – обсыпка Если топливный бак устанавливается в грунт, то его следует тщательно проверить на наличие/отсутствие повреждений. Котлован для бака должен быть таких размеров, чтобы оставалось не менее 20 см с каждой стороны бака для засыпки смесью песка и цемента (на 5 частей песка берется 1 часть цемента). На дне котлована необходимо соорудить бетонную подушку (толщиной 20 см). Для того чтобы исключить смещение бака под воздействием грунтовых вод (особенно если они располагаются высоко), его прикрепляют к бетонной подушке бандажными тросами. Глубина установки топливного бака должна быть такой, чтобы топливопровод прокладывался ниже глубины промерзания грунта (в противном случае в холодное время года возможны неприятные неожиданности – солярка густеет при низких температурах), но при этом все равно следует предусмотреть утепление топливопровода, тем более что он не на всем своем протяжении располагается ниже уровня промерзания грунта. |
![Иллюстрация к книге — Водоснабжение, канализация и отопление загородного дома [i_084.jpg] Иллюстрация к книге — Водоснабжение, канализация и отопление загородного дома [i_084.jpg]](img/book_covers/049/49376/i_084.jpg)
![Иллюстрация к книге — Водоснабжение, канализация и отопление загородного дома [i_085.jpg] Иллюстрация к книге — Водоснабжение, канализация и отопление загородного дома [i_085.jpg]](img/book_covers/049/49376/i_085.jpg)
![Иллюстрация к книге — Водоснабжение, канализация и отопление загородного дома [i_086.jpg] Иллюстрация к книге — Водоснабжение, канализация и отопление загородного дома [i_086.jpg]](img/book_covers/049/49376/i_086.jpg)
![Иллюстрация к книге — Водоснабжение, канализация и отопление загородного дома [i_087.jpg] Иллюстрация к книге — Водоснабжение, канализация и отопление загородного дома [i_087.jpg]](img/book_covers/049/49376/i_087.jpg)
![Иллюстрация к книге — Водоснабжение, канализация и отопление загородного дома [i_088.jpg] Иллюстрация к книге — Водоснабжение, канализация и отопление загородного дома [i_088.jpg]](img/book_covers/049/49376/i_088.jpg)