Книга Водоснабжение, канализация и отопление загородного дома, страница 27 – Иван Никитко

Авторы: А Б В Г Д Е Ж З И Й К Л М Н О П Р С Т У Ф Х Ч Ш Ы Э Ю Я
Книги: А Б В Г Д Е Ж З И Й К Л М Н О П Р С Т У Ф Х Ц Ч Ш Щ Ы Э Ю Я
Бесплатная онлайн библиотека LoveRead.ec

Онлайн книга «Водоснабжение, канализация и отопление загородного дома»

📃 Cтраница 27

Система с естественной циркуляцией теплоносителя имеет существенный плюс: она не является электрозависимой и работает исключительно за счет наличия разницы температур (соответственно – плотности) в подающей и обратной линиях. Но конструктивные особенности этой системы таковы, что она подходит только для небольших зданий (максимальная общая отапливаемая площадь – 150 м 2) при наличии не более двух отапливаемых уровней. Если ваш загородный дом больше, то о системе с естественной циркуляцией можно не думать – она не будет работать.

Но даже если площадь дома невелика и позволяет установить систему с естественной циркуляцией теплоносителя, следует знать, что для нее необходимы трубы с большим сечением (минимально диаметром 50 мм) – они позволяют теплоносителю свободно циркулировать, но являются довольно дорогими. Чем меньше диаметр трубы, тем выше гидравлическое сопротивление системы (Рис. 3.1), а с повышением гидравлического сопротивления понижается скорость протока теплоносителя и увеличивается скорость остывания теплоносителя в отопительной системе (возрастает разница температур между теплоносителем в системе и котле). Иначе говоря, при меньшем диаметре трубы теплоноситель нуждается в более интенсивном подогреве, и, как следствие, котел расходует больше топлива.

Иллюстрация к книге — Водоснабжение, канализация и отопление загородного дома [i_077.jpg]

Рис. 3.1.Зависимость напора от разницы температур в отопительной системе с естественной циркуляцией теплоносителя (мощность котла и температура подачи теплоносителя фиксированы)


Обратите внимание на рабочую точку при различных диаметрах труб (см. Рис. 3.1). Рабочая точка – это такой режим работы отопительного котла, при котором напор, обусловленный наличием разницы температур теплоносителя в подающей и обратной линиях (ΔТ), становится равным гидравлическому сопротивлению котла. Чем ниже на рисунке располагается рабочая точка (то есть чем меньше гидравлическое сопротивление и чем больше диаметр труб), тем быстрее котел выходит на рабочий режим. До этого происходит перерасход топлива (за счет необходимости интенсивного прогрева всего теплоносителя в отопительной системе), и чем дольше отопительная система работает в «предварительном» режиме, тем более снижается срок службы отопительного котла. Так что использование при естественной циркуляции теплоносителя труб малого диаметра – это экономия на монтаже системы, но потеря денег в процессе эксплуатации за счет снижения срока службы котла и постоянного перерасхода топлива. А использование труб большого диаметра приводит к удорожанию всей отопительной системы почти в два раза.

Кроме того, при разводке отопительной схемы с естественной циркуляцией теплоносителя требуется со всей точностью соблюдать углы уклонов (то, что не слишком любят делать наши специалисты, и то, что требует наличия дорогостоящих материалов и оборудования).

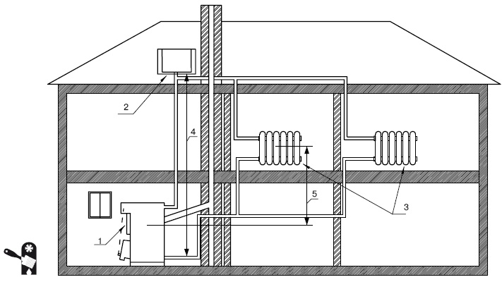
Одним из главных минусов системы с естественной циркуляцией теплоносителя является использование открытого расширительного бака (такой бак необходим, чтобы компенсировать тепловое расширение теплоносителя) (Рис. 3.2). Результатом являются насыщение теплоносителя кислородом и, как следствие, повышенная опасность коррозии для отопительных труб и радиаторов. Кроме того, с открытым расширительным баком в качестве теплоносителя не рекомендуется использовать антифризы, так как большинство из теплоносителей такого типа ядовито.

Еще один минус – открытый расширительный бак устанавливается в самой высокой точке отопительной системы (обычно его устанавливают на чердаке), а это означает определенное обустройство помещения для размещения бака плюс усиление перекрытий, то есть дополнительные расходы при монтаже.

Из расширительного бака открытого типа вода может выплескиваться на пол. Для того чтобы этого не происходило, можно установить бак, в котором предусмотрен слив излишков воды, но дополнительную емкость, в которую сливается лишняя вода, нужно регулярно проверять, чтобы она не переполнялась (обычно для этой цели ставят ведро, которое периодически опорожняется).

Иллюстрация к книге — Водоснабжение, канализация и отопление загородного дома [i_078.jpg]

Рис. 3.2.

Гравитационная отопительная система с расширительным баком открытого типа:1 – отопительный котел; 2 – расширительный бак; 3 – отопительные приборы; 4 – высота расположения расширительного бака относительно котла; 5 – высота расположения отопительных приборов относительно котла


В системе с естественной циркуляцией теплоносителя может быть использован и закрытый расширительный бак (мембранный), но такое устройство требует дополнительного оборудования (например, необходимы предохранительный клапан, манометр, системы воздухоотвода и т. д.), поэтому для гравитационной системы мембранный бак используется редко.

Мембранный расширительный бак обычно имеет круглую или овальную форму, внутреннее пространство разделено герметичной гибкой мембраной. В одной части бачка находится жидкость (теплоноситель), в другой – воздух. Когда жидкость увеличивается в объеме, мембрана растягивается таким образом, что из воздушной части вытесняется часть воздуха, а жидкость занимает больший объем. Когда объем жидкости уменьшается, мембрана восстанавливает первоначальное положение.

В настоящее время системы с естественной циркуляцией теплоносителя используются в основном для небольших построек, предназначенных для нерегулярного проживания/посещения, к примеру, подобная система хороша для дачного дома. Если схема разводки простая, то такая система приобретает дополнительный бонус – для ее реализации (монтажа) не требуется специалист высокой квалификации, соответственно, устройство отопительной системы обходится дешевле, что очень существенно для небольших и недорогих построек.


К минусам системы с принудительной циркуляцией теплоносителя относится ее электрозависимость: если вдруг пропало электричество, то циркуляционный насос останавливается и теплоноситель прекращает движение по трубам. Зато имеется ряд плюсов, компенсирующих этот недостаток с лихвой:

✓ систему с принудительной циркуляцией теплоносителя можно использовать в зданиях любой отапливаемой площади;

✓ наличие циркуляционного насоса позволяет использовать трубы меньшего диаметра и в результате сэкономить на обустройстве отопительной системы;

✓ в системах с принудительной циркуляцией теплоносителя используются только мембранные расширительные баки – закрытые и теплоноситель не насыщается столь вредным для отопительных труб и приборов кислородом, что продлевает безремонтный срок службы отопительной системы и удешевляет эксплуатацию;

✓ возможна регулировка теплоотдачи радиаторов отопления с помощью термостатических вентилей.


Выбрав систему циркуляции теплоносителя, можно планировать отопительную систему дальше.

Реклама
Вход
Поиск по сайту
Ищем:
Календарь