Книга Странный дом, страница 10 – Укэцу

Авторы: А Б В Г Д Е Ж З И Й К Л М Н О П Р С Т У Ф Х Ч Ш Ы Э Ю Я
Книги: А Б В Г Д Е Ж З И Й К Л М Н О П Р С Т У Ф Х Ц Ч Ш Щ Ы Э Ю Я
Бесплатная онлайн библиотека LoveRead.ec

Онлайн книга «Странный дом»

📃 Cтраница 10

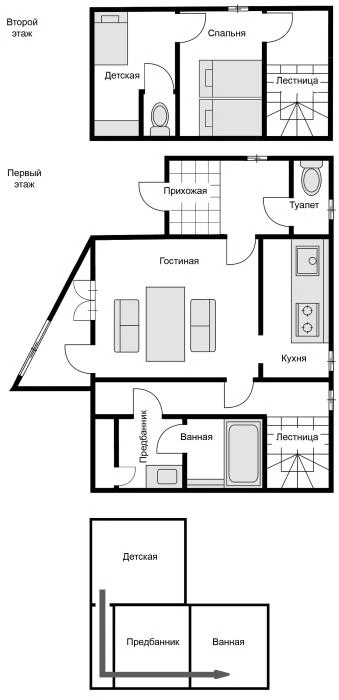
Автор:Действительно, там тоже нет окон…

Мияэ:Именно. А еще слева от предбанника есть маленькая комната. Вам не кажется, что она напоминает «загадочное пустое пространство» из токийского дома? Эта каморка находится ровно под детской.

Автор:Получается, если в полу детской было отверстие…

Мияэ:То ребенок мог попасть в предбанник через каморку. Видите, в стене между ними есть небольшая дверца.

Через лаз ребенок спускался в эту комнату и сидел там, затаив дыхание. В ванную заходил гость. Ребенок ждал еще немного, затем вылезал из своего укрытия и, проскользнув по предбаннику, врывался в ванную, где наносил ничего не подозревающей жертве смертельный удар. Алгоритм убийства немного отличался, но наличие тайного прохода из детской в ванную, очевидно, роднило этот дом с токийским. Если, конечно, догадки Курихары были верны…

Иллюстрация к книге — Странный дом [i_031.webp]

Мияэ:Что думаете?

Автор:Честно говоря, сначала я отнесся к вашим словам скептически, но теперь, посмотрев на план, тоже считаю, что эти два дома как-то связаны между собой. Слишком много между ними общего.

Иллюстрация к книге — Странный дом [i_032.webp]

Сходства были такими явными, что у меня уже язык не поворачивался называть их случайными совпадениями. Неужели в этом доме и правда жила та самая семья?

Автор:А когда примерно этот дом выставили на продажу?

Мияэ:В марте 2018 года.

Автор:Весной прошлого года? Как раз когда был достроен дом в Токио. И что, его еще не купили?

Мияэ:Кажется, этого дома уже нет…

Автор:То есть?

Мияэ:На сайте агентства было написано «срок публикации объявления истек». Сначала я решила, что дом, наверное, продали, но, когда навела справки, оказалось, что несколько месяцев назад он сгорел.

Автор:Сгорел?..

Мияэ:Да. На днях я решила съездить по адресу, указанному в объявлении. Сейчас на месте дома пустырь. Если бы от него хоть что-то осталось, можно было бы осмотреть развалины… Например, меня волнует эта комната. Для чего она была нужна?

Первый этаж

Иллюстрация к книге — Странный дом [i_033.webp]

Госпожа Мияэ указала на комнату треугольной формы.

Мияэ:Пока что мне многое непонятно в планировке этого дома. Но я чувствую, что если узнаю о нем больше, то смогу выяснить, кто убил моего мужа. Хотя никаких доказательств, что он погиб именно там, у меня, конечно, нет…

Автор:Хорошо, я понял. Я покажу ваш план своему знакомому проектировщику, Курихаре, и узнаю его мнение. Вы не против, если я сделаю копию?

Мияэ:Да берите так. И вот, это тоже держите. Не уверена, что пригодится, но я распечатала объявление из интернета о продаже этого дома.

Автор: Спасибо. Тогда его я тоже возьму.

Мияэ:Это вам большое спасибо, что уделили мне время. Господину Курихаре тоже передавайте мои благодарности.

Мы вышли из кафе. На улице стояла такая жара, что я моментально вспотел.

Автор:Простите за такой бесцеремонный вопрос, но… Раньше ваш муж не попадал ни в какие неприятности?

Мияэ:Нет, насколько я знаю. Он был очень порядочным, у меня в голове не укладывается, что кто-то мог желать ему смерти.

Автор:Вот как… Что ж, будем надеяться, преступника скоро поймают.

Мияэ:Да. Я хочу узнать от него правду об убийстве моего мужа.

Попрощавшись на станции с госпожой Мияэ, я поехал домой. Занял свободное место в поезде и принялся изучать полученные от нее бумаги. «Сайт по поиску объявлений о продаже и аренде недвижимости „Недвижимость X“». В объявлении были указаны адрес, площадь дома и сада, расстояние до станции… Но мое внимание привлекла другая строчка: «год постройки – 2016». Этот дом выставили на продажу в 2018 году. Получается, хозяева решили переехать, прожив там только два года? Впрочем, в токийском доме они провели и того меньше – всего год.

Вход
Поиск по сайту
Ищем:
Календарь