Онлайн книга «Странный дом»
|
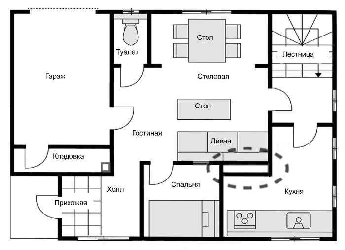
Укэцу Странный дом Tok. Фудосан-мистери. Расследования по чертежам ![]() HENNA IE © Uketsu 2021 Russian translation rights arranged with ASUKA SHINSHA, INC. through Japan UNI Agency, Inc., Tokyo ![]() Художественное оформление К. Гусарева Иллюстрация на обложке ЕyeEmpty ![]() © Бонадык Н.А., перевод на русский язык, 2024 © Издание на русском языке, оформление. ООО «Издательство Эксмо», 2025 Перед вами план дома. ![]() Заметили что-нибудь странное? На первый взгляд это совершенно обычный дом. Но если рассмотреть планировку внимательнее, можно заметить много необычных, даже зловещих деталей. С каждой секундой тревога нарастает, и наконец из разрозненных мелочей складывается правда об этом доме. Ужасающая, невероятная правда. ![]() Глава 1 Странный дом Вопрос от знакомого Я писатель-фрилансер, в основном меня интересуют такие темы, как мистика и оккультизм. По работе мне часто приходится сталкиваться с историями о паранормальных явлениях или загадочных происшествиях. И очень часто в них фигурируют дома. «Со второго этажа доносятся звуки шагов, хотя там никого нет…», «Сижу один в гостиной, но чувствую, что за мной кто-то наблюдает…», «В пустом шкафу переговариваются несколько голосов…» – каких только страшилок о домах с призракамия не слышал. Но тот домбыл не похож на другие. * * * В сентябре 2019 года мне позвонил знакомый по фамилии Янаока, сказал, хочет со мной посоветоваться. Янаока работает менеджером по продажам в одном издательстве, благодаря чему мы и познакомились с ним несколько лет назад. С тех пор мы поддерживаем связь, иногда встречаемся, чтобы вместе пообедать. Янаока ждал рождения ребенка, поэтому решил, что им с женой пора обзавестись собственным домом. Он каждый день допоздна пропадал на сайтах агентств недвижимости, пока наконец ему на глаза не попался идеальный вариант: двухэтажный дом в тихом зеленом районе в черте Токио, расположенный недалеко от железнодорожной станции. До этого там уже кто-то жил, но сам дом был практически новым, его построили всего несколько лет назад. Янаока с женой съездили на осмотр и остались в полном восторге: дом оказался очень светлым и просторным. Однако в его планировке была одна странная деталь. На первом этаже, между кухней и гостиной, находилось загадочное пустое пространство. В него не вела никакая дверь, поэтому попасть внутрь было невозможно. И в агентстве недвижимости тоже не смогли объяснить, зачем оно нужно. Не то чтобы это пространство могло как-то мешать в быту, но само его наличие не давало Янаоке покоя. В итоге он начал сомневаться, покупать ли ему вообще этот дом. Первый этаж ![]() Он решил посоветоваться именно со мной, видимо, потому, что я часто имею дело со сверхъестественным. «Загадочное пустое пространство…» Это и правда звучало таинственно, так что мне стало любопытно. Но я совершенно не разбираюсь в архитектуре и мало что могу понять, глядя на планировку дома. Поэтому я решил обратиться за помощью. Курихара У меня есть знакомый по фамилии Курихара: он работает проектировщиком в крупном архитектурном бюро. А еще он большой фанат мистики и хорроров. Если кто-то и мог помочь мне разобраться с тайной этого дома, то только он. Я пересказал Курихаре историю Янаоки, и он, кажется, заинтересовался, поэтому я отправил ему на почту планировку дома, а затем позвонил, чтобы узнать, что он обо всем этом думает. |
![Иллюстрация к книге — Странный дом [i_001.webp] Иллюстрация к книге — Странный дом [i_001.webp]](img/book_covers/117/117524/i_001.webp)
![Иллюстрация к книге — Странный дом [i_002.webp] Иллюстрация к книге — Странный дом [i_002.webp]](img/book_covers/117/117524/i_002.webp)
![Иллюстрация к книге — Странный дом [i_003.webp] Иллюстрация к книге — Странный дом [i_003.webp]](img/book_covers/117/117524/i_003.webp)
![Иллюстрация к книге — Странный дом [i_004.webp] Иллюстрация к книге — Странный дом [i_004.webp]](img/book_covers/117/117524/i_004.webp)
![Иллюстрация к книге — Странный дом [i_005.webp] Иллюстрация к книге — Странный дом [i_005.webp]](img/book_covers/117/117524/i_005.webp)
![Иллюстрация к книге — Странный дом [i_006.webp] Иллюстрация к книге — Странный дом [i_006.webp]](img/book_covers/117/117524/i_006.webp)