Онлайн книга «Странный дом 2»
|
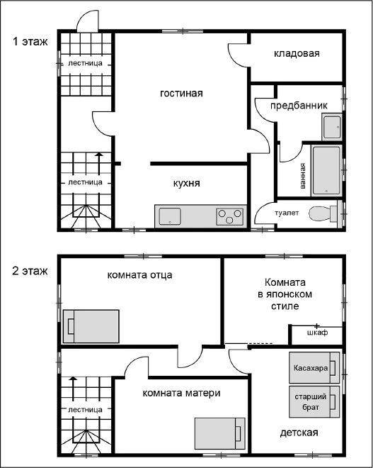
При отсутствии на пути помех собеседники могут разговаривать на расстоянии нескольких сот метров. Тем не менее малейшего ослабления натяжения нити достаточно, чтобы голос говорящего не дошел до слушающего. ![]() Касахара:«Между прочим, сам изобрел! Межкомнатный веревочный телефон!» – хвастаясь, сказал папа. Автор:Простите, межкомнатный? Касахара:Ну-у… да. Сейчас. Так будет понятнее. Госпожа Касахара достала из сумки старый чертеж планировки. ![]() Автор:Планировка вашего дома? Касахара:Да. Спросила вчера у мамы насчет планировки, и она дала мне это. Честно говоря, даже не думала, что она до сих пор хранит такие вещи. Ностальгия… Ну так вот, здесь у нас детская. Моя кровать у стены. На той, что рядом, спал брат. Родители тут и тут. Кровати, по-моему, так и стояли. В общем, телефон соединял наши с папой кровати. ![]() Автор:То есть в ваших комнатах было по одному стаканчику, благодаря которому вы могли разговаривать несмотря на то, что вас разделял коридор? Касахара:Именно так. «Если страшно и не спится, говори со мной и уснешь», – от предложения папы мне стало неловко, но вместе с тем сердце трепетало от радости. «Какая классная идея!» – подумала я. То были времена, когда на весь дом стоял один домашний телефон – никаких смартфонов и мобильников. «Болтать по телефону, лежа на кровати» – такую роскошь разве что в иностранных фильмах показывали. Хотя сейчас я удивляюсь: раз он так постарался, не лучше ли было просто ночевать рядом? Автор:Зато для ребенка «болтать по веревочному телефону» звучит как целое приключение. Намного интереснее, чем просто ночевать вместе. Согласитесь, в этом есть что-то загадочное, интригующее. Касахара:И правда. Мой папа всегда был фантазер. И по поведению, и по образу мышления. Оттого у него и не выходило жить серьезно, что только мучило семью… Мне было ужасно обидно, что он относился к нам с таким пренебрежением, но я все равно рада, что однажды он подарил мне немного волшебства этим веревочным телефоном. Меня, как и маму, несложно порадовать. Автор:Получается, вы каждый вечер разговаривали с отцом? Касахара:Нет. Как я и говорила, папа почти всегда возвращался очень поздно и сразу засыпал. За все время мы с ним поговорили всего четыре-пять раз. Но было все равно здорово… Иногда, когда я долго не могла уснуть, дверь в мою комнату чуть-чуть приоткрывалась, и в комнату влетал бумажный стаканчик. Я поднимала его, залезала в кровать и прикладывала к уху. Папа, немножко важничая, говорил: «Добрый вечер, Полуночница», – а ему в ответ: «Добрый вечер, Пьянчужка». Вот так мы договорились начинать разговор. Автор:О чем вы разговаривали? Касахара:Поначалу только о всякой неважной всячине. Но со временем стали касаться моих переживаний и даже некоторых деликатных вопросов. Сидя друг перед другом, мы бы так не смогли, однако бумажные стаканчики делали любой разговор возможным. А еще голос папы казался мягче и добрее обычного… Я рассказывала ему очень много секретов. Поэтому папа узнал обо мне даже больше, чем мама. Отличная придумка, согласитесь. Наверное, благодаря таким простым хитростям ему и удавалось жить в свое удовольствие. Но однаждыразговорам отца и дочери пришел конец. Касахара:Мы тогда опять болтали по телефону, по-моему, еще не было и десяти часов. Но почему-то чувствовалось, что что-то не так. У папы дрожал голос, и говорил он невпопад. |
![Иллюстрация к книге — Странный дом 2 [i_081.webp] Иллюстрация к книге — Странный дом 2 [i_081.webp]](img/book_covers/117/117523/i_081.webp)
![Иллюстрация к книге — Странный дом 2 [i_082.webp] Иллюстрация к книге — Странный дом 2 [i_082.webp]](img/book_covers/117/117523/i_082.webp)
![Иллюстрация к книге — Странный дом 2 [i_083.webp] Иллюстрация к книге — Странный дом 2 [i_083.webp]](img/book_covers/117/117523/i_083.webp)