Онлайн книга «Пехотный танк «Валентайн»»
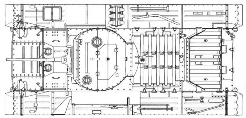
![]() ![]() ![]() Valentine I ![]() Компоновка танка Valentine III 1 — 2-фунтовая пушка Mk IX; 2 — перископ заряжающего; 3 — перископ командира; 4 — лючок для стрельбы из личного оружия; 5 — радиостанция Ле 19; 6 — двигатель AEC А190; 7 — воздушный фи-зьтр; 8 — вентилятор; 9 — радиатор; 10 — топливный бак; 11 — коробка передач; 12 — главный фрикцион; 13 — тележка подвески; 14 — подвесной полик боевого отделения; 15 — сиденье наводчика; 16 — плечевой упор; 17 — спусковая рукоятка; 18 — сиденье механика-водителя ![]() Valentine 11, оборудованный для действий в пустыне. На машине установлены 135-литровый топливный бак и крылья, уменьшавшие облако песчаной пыли от гусениц танка На машине устанавливался карбюраторный 6-цилиндровый рядный двигатель жидкостного охлаждения АЕС А189 мощностью 135 л.с. при 1900 об/мин. Емкость топливных баков 257 л. К числу характерных внешних отличий этой модификации можно отнести размещение антенного ввода радиостанции № 11 на специальном кронштейне за кормой башни и наличие амбразуры для стрельбы из личного оружия только на правом ее борту. Боевая масса машины составляла 15,7 т. В 1940 году было изготовлено 350 танков модификации Valentine I. Valentine II Отличался от предыдущей модели наличием дизельного двигателя АЕС А190 мощностью 131 л.с. Запас топлива во внутренних баках сократился до 163 л , но был введен наружный цилиндрический топливный бак емкостью 135 л, подклю ченный к системе питания двигателя. Бак размещался на левой надгусеничной полке. На Valentine II (как, впрочем, и на последних машинах модели Valentine I) устанавливалась радиостанция №19, антенный ввод которой находился на крыше башни. На левом борту башни появилась амбразура для стрельбы из личного оружия, правда, иной конструкции, чем на правом. Несколько иначе на корпусе танка размещались ЗИП и снаряжение (в последующем их состав и расположение менялись еще несколько раз). В 1940 — 1941 годах заводские цеха покинули 700 боевых машин модификации Valentine II. ![]() ![]() На снимках: пехотный танк Valentine III Valentine III По мнению военных, существенным недостатком первых модификаций «Валентайна» была двухместная башня. Фирма Vickers разработала и предложила вариант трехместной башни. Основная трудность при ее создании — сохранение без изменений диаметра башенного погона, поскольку ширина подбашенной коробки не допускала его увеличения. Англичане нашли оригинальное решение: 2-фунтовую пушку сдвинули вперед на 203 мм (8"), а корму башни — примерно на столько же назад, для создания противовеса. Пушка по-прежнему устанавливалась во внутренней маск-установке, но передняя часть башни стала уже иной конструкции. В кормовой нише разместили радиостанцию и в результате за казенной частью пушки удалось буквально «выкроить» место для командира. Над ним смонтировали круглый люк с вращающейся трехстворчатой крышкой, в передней створке которой устанавливался перископический прибор наблюдения. Для посадки экипажа в боевое отделение танка использовался только этот люк. ![]() Valentine III Чтобы снизить неизбежное возрастание массы танка из-за установки башни большего размера и введения четвертого члена экипажа, толщину бортов корпуса уменьшили с 60 до 50 мм. В итоге масса танка возросла всего на четверть тонны. Любопытный факт — судя по документам фирмы, трехместная башня была подготовлена к серийному производству уже в 1939 году. В таком случае сложно понять, зачем двухместную башню вообще запустили в производство. Возможно, ей отдали предпочтение по причине того, что установленная в ней 2-фунтовая пушка не выступала за габариты танка. Последнему обстоятельству в те годы придавалось большое значение практически во всех странах. Первая машина с трехместной башней поступила на испытания 13 апреля 1942 года. Вскоре началось и серийное производство. Корпус, ходовая часть, двигатель и трансмиссия танка Valentine III были полностью идентичны тем, что у Valentine II. Valentine IV Вариант танка Valentine II с американским дизелем GMC 6004 мощностью 138 л.с. и трансмиссией. Эта модификация сменила в производстве модель Valentine II, поскольку поставки американских силовых агрегатов превышали выпуск в Великобритании собственных двигателей. Valentine V Модификация танка Valentine III с американскими двигателем GMC 6004 и трансмиссией. ![]() Первая машина модификации Valentine IV, оснащенная американским дизелем GMC ![]() Valentine IV, вид сбоку. Большая часть зтих танков была отправлена в Советский Союз Valentine VI Представлял собой модель Valentine IV, изготовленную в Канаде. Отличался от английского варианта рядом узлов и деталей канадского или американского производства. Например, в подвеске использовались канадские гидравлические амортизаторы Newton & Bennet. У части машин позднего выпуска лобовая деталь корпуса выполнялась цельнолитой. Valentine VII Модификация танка Valentine VI со спаренным пулеметом Browning М1919А4 американского производства вместо BESA английского. Изготавливалась в Канаде. Valentine VIII Вариант Valentine III с 6-фунтовой пушкой. Для установки орудия более крупного калибра пришлось вновь переконструировать башню, причем из-за больших размеров орудия ее опять сделали двухместной. Вместо одного круглого люка в крыше башни сделали два прямоугольных, закрытых двухстворчатыми крышками, — для наводчика и заряжающего. Отказ от общего люка вполне объясним — массивный казенник пушки разделил башню пополам и оба члена экипажа, находившиеся в ней, оказались изолированными друг от друга. Спереди и сзади от люка командира (он же заряжающий) были установлены перископические приборы наблюдения Mk IV, чтобы компенсировать ему потерю люка с вращающейся крышкой. Полностью переделали и маск-установку — она стала внешней. Размещенные над стволом противооткатные устройства закрыли броневым кожухом характерной формы. Поскольку вентиляционного отверстия-кармана в корме башни оказалось уже недостаточно для ее эффективной очистки от пороховых газов, на крыше башни разместили вентилятор. |
![Иллюстрация к книге — Пехотный танк «Валентайн» [img_6.jpg] Иллюстрация к книге — Пехотный танк «Валентайн» [img_6.jpg]](img/book_covers/077/77246/img_6.jpg)
![Иллюстрация к книге — Пехотный танк «Валентайн» [img_7.jpg] Иллюстрация к книге — Пехотный танк «Валентайн» [img_7.jpg]](img/book_covers/077/77246/img_7.jpg)
![Иллюстрация к книге — Пехотный танк «Валентайн» [img_8.jpg] Иллюстрация к книге — Пехотный танк «Валентайн» [img_8.jpg]](img/book_covers/077/77246/img_8.jpg)
![Иллюстрация к книге — Пехотный танк «Валентайн» [img_9.jpg] Иллюстрация к книге — Пехотный танк «Валентайн» [img_9.jpg]](img/book_covers/077/77246/img_9.jpg)
![Иллюстрация к книге — Пехотный танк «Валентайн» [img_10.jpg] Иллюстрация к книге — Пехотный танк «Валентайн» [img_10.jpg]](img/book_covers/077/77246/img_10.jpg)
![Иллюстрация к книге — Пехотный танк «Валентайн» [img_11.jpg] Иллюстрация к книге — Пехотный танк «Валентайн» [img_11.jpg]](img/book_covers/077/77246/img_11.jpg)
![Иллюстрация к книге — Пехотный танк «Валентайн» [img_12.jpg] Иллюстрация к книге — Пехотный танк «Валентайн» [img_12.jpg]](img/book_covers/077/77246/img_12.jpg)
![Иллюстрация к книге — Пехотный танк «Валентайн» [img_13.jpg] Иллюстрация к книге — Пехотный танк «Валентайн» [img_13.jpg]](img/book_covers/077/77246/img_13.jpg)
![Иллюстрация к книге — Пехотный танк «Валентайн» [img_14.jpg] Иллюстрация к книге — Пехотный танк «Валентайн» [img_14.jpg]](img/book_covers/077/77246/img_14.jpg)
![Иллюстрация к книге — Пехотный танк «Валентайн» [img_15.jpg] Иллюстрация к книге — Пехотный танк «Валентайн» [img_15.jpg]](img/book_covers/077/77246/img_15.jpg)