Книга Трофейные танки Красной Армии, страница 25 – Максим Коломиец

Авторы: А Б В Г Д Е Ж З И Й К Л М Н О П Р С Т У Ф Х Ч Ш Ы Э Ю Я
Книги: А Б В Г Д Е Ж З И Й К Л М Н О П Р С Т У Ф Х Ц Ч Ш Щ Ы Э Ю Я
Бесплатная онлайн библиотека LoveRead.ec

Онлайн книга «Трофейные танки Красной Армии»

📃 Cтраница 25
Иллюстрация к книге — Трофейные танки Красной Армии [i_081.jpg]

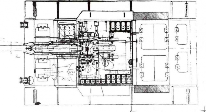
Поперечный разрез (по боевому отделению) серийного образца СГ-122 (МС).


А так как такого количества трофейных шасси, пригодных к восстановлению, рембазы ГАБТУ КА не имели, 27 октября 1942 года командующие автобронетанковыми войсками всех фронтов получили следующий приказ заместителя наркома обороны генерал-лейтенанта танковых войск Федоренко:

«В самый кратчайший срок собрать с фронтов все трофейные машины указанных марок как находящиеся в строю, так и не ходовые, требующие ремонта.

Танки Т-3, Т-4 и „Артштурм“ подлежит немедленно направить в Москву, на завод № 592, где они будут ремонту и реконструкции с постановкой на них соответствующего артиллерийского вооружения.

Прошу Вашего распоряжения:

1. О производстве точного подсчета имеющихся на Вашем фронте трофейных танков Т-3, Т-4 и „Артштурм“ и высылке в ГАБТУ КА к l.l 1.42 г. точных сведений об этих машинах.

2. О немедленном направлении казанных трофейных машин по адресу: Москва, Мытищи, завод № 592 Наркомата вооружения».

Однако поставить трофейные шасси в срок и в нужном количестве не удалось. Причин этому было несколько — как малое количество трофейных танков и САУ нужных марок, так и сложности с их ремонтом из-за отсутствия запчастей и агрегатов. В результате, директор завода № 592 Панкратов направил жалобу по этому поводу наркому вооружения Д. Устинову, а тот, в свою очередь, 17 ноября 1942 года переадресовал ее начальнику ГАБТУ КА Федоренко:

«Согласно решения ГКО № 2429сс от 19 ноября 1942 года ГАБТУ КА должен поставить заводу № 592 на программу ноября месяца 30 штук „Артштурм“ и Т-3.

На ноябрьскую программу завод № 592 ни одной машины не получил, что привело к невыполнению постановления ГКО о сдаче 10 машин к 15 ноября.

Последующая задача в ноябре также под угрозой срыва из-за непоставки Вами машин „Артштурм“ и Т-3 согласно решения ГКО.

Прошу Вас принять самые решительные меры по обеспечению завода № 592 машинами под монтаж, сообщив точных график сроков поставки».

В ответ на это письмо заместитель начальника ГАБТУ КА генерал-майор Лебедев 19 ноября 1942 года сообщал Устинову:

«Сообщаю, что заводу № 592 нами поставлено в октябре 13 отремонтированных танков (в том числе один Т-4) и до 15 ноября ещё 11 танков. Всего до 15 ноября поставлено, не считая Т-4, 23 танка при заданной к этому сроку программе 30 штук.

Недовыполнение программы на 7 единиц объясняется трудностью освоения ремонта трофейных машин и наступившими холодами, значительно осложнившими ремонт и регулировку.

Нами принимаются меры для обеспечения в дальнейшем поставки машин точно по заданному графику.

Из вышеизложенного видно, что завод № 592 не имеет оснований объяснять полный срыв программы выпуска машин в октябре и 15 дней ноября не поставкой под монтаж 7 единиц.

Прошу Вас указать заводу на необходимость более тесного взаимодействия с нашим ремонтным заводом, поставляющим танки».

Иллюстрация к книге — Трофейные танки Красной Армии [i_082.jpg]

Разрез в плане (по боевому отделению) серийного образца СГ-122 (МС).


Но, видимо, руководство завода № 592, не справляясь с полученным заданием по СГ-122, решило «спихнуть» вину на военных, которые не поставили ремонтные трофейные шасси в срок. В ответ на такие заявления заместитель начальника ГАБТУ КА Лебедев 28 ноября 1942 года вновь направил в наркомат вооружения письмо, в котором писал:

«Сообщаю, что по постановлению ГКО № 2429 программа поставки заводу № 592 отремонтированных трофейных танков Т-3 и „Артштурм“ за октябрь не выполнена на 7 единиц. Это недовыполнение программы даёт заводу лишь формальное основание для заявления о срыве программы сдачи машин. По существу же завод № 592 не сдал и тех 10 танков, которые были поставлены ему даже ранее назначенного срока.

Завод № 592 имеет готовые чертежи на монтаж установки и за период задержки 7 танков мог произвести подготовительные работы с тем расчетом, чтобы сократить длительность технологического цикла в дальнейшем и программу наверстать. Завод не сделал этого потому, что люди его были заняты на монтаже первых 10 машин и простоя не имели. Это подтверждается тем, что начиная с 20 ноября, несмотря на наши требования, завод отказывается принимать готовые танки, мотивируя это отсутствием рабочих мест в цехе.

Относительно качества ремонта танков сообщаю Вам, что все машины прошли предварительные испытания и прияты заводом № 592.

Не отрицая отдельных дефектов ремонта можно быть уверенным, что если в процессе монтажа установки машинам не будут нанесены повреждения, и надежность ходовой части и трансмиссии посте установки на нее СГ проверена расчетом и испытанием, то не возникает никаких сомнений в том, что машины будут пригодны для поставки их в Армию.

Вас убедительно прошу указать заводу № 592 на более внимательное отношение к материальной части танков в процессе монтажа СГ, так как при работе с первой партией имели место крайне нежелательные явления, как то: у многих машин были побиты контрольные приборы, водной машине передний торсион был приварен к постаменту пушки, одна машина была разморожена и возвращена в повторный ремонт.

Со своей стороны принимаю все меры к поставке танков в срок и непрерывному улучшению качества ремонта».

Кстати, на эту дату — 28 ноября — на заводе № 592 имелось готовых к сдаче лишь четыре машины СГ-122, хотя по плану должен был к концу месяца сдать уже 30 самоходок.

Иллюстрация к книге — Трофейные танки Красной Армии [i_083.jpg]

Общий вид опытного образца самоходки СУ-76И, общий. Софринский полигон, март 1943 года (РГАЭ).


Признавая вину за поломки готовых СГ-122 и шасси для них, происходивших по вине испытателей завода № 592 из-за незнания немецкой матчасти, 4 декабря председатель техсовета НКВ Э. Сатель попросил военных о выделении предприятию «бригады в количестве трёх человек во главе с механиком-водителем для обслуживания ходовых частей, системы управления и моторного отделения трофейных „Артштурмов“».

Кроме того, на Донской, Сталинградский и Юго-Западный фронты, войска которых окружили 6-ю немецкую армию под Сталинградом, 4 декабря 1942 года выехали представители ГАБТУ КА. В задачу последних входило получить от каждого фронта в течение декабря по 70–80 штук трофейных танков Т-3, Т-4 и «Артштурм», предназначенных для изготовления СГ-122.

Но, несмотря на принимаемые меры, выполнить программу по этим самоходкам не удалось, причем главным образом по вине завода № 592. Справедливости ради стоит сказать, что это предприятие не имело ни необходимого оборудования, ни специалистов, ни площадей для выполнения поставленной задачи. Кроме того, помимо самоходок завод имел большой план по изготовлению корпусов мин, авиабомб, минометных плит и бронепоездов ПВО. Эти задания «забирали» на себя большое количество оборудования и рабочих.

Реклама
Вход
Поиск по сайту
Ищем:
Календарь