Книга Трофейные танки Красной Армии, страница 23 – Максим Коломиец

Авторы: А Б В Г Д Е Ж З И Й К Л М Н О П Р С Т У Ф Х Ч Ш Ы Э Ю Я
Книги: А Б В Г Д Е Ж З И Й К Л М Н О П Р С Т У Ф Х Ц Ч Ш Щ Ы Э Ю Я
Бесплатная онлайн библиотека LoveRead.ec

Онлайн книга «Трофейные танки Красной Армии»

📃 Cтраница 23

** Бывший 1-й Белорусский фронт

*** Бывший 1-й Украинский фронт

**** Бывший 3-й Украинский фронт


Самоходки на трофейных шасси

В начале 1942 года при оставшемся в Москве филиале ОКБ-16 техническим советом наркомата вооружения (НК.В) создается Отдельная конструкторская группа, которую возглавил инженер Е. В. Синельщиков. Группа получила задачу начать разработку проектов самоходных артиллерийских установок на различных шасси. Причем в качестве базы предлагалось использовать уже отработанные в производстве образцы. В кратчайшие сроки конструкторы разработали варианты самоходок на шасси грузовика «Студебеккер», тягачей СТЗ-НАТИ и «Коминтерн».

17 марта 1942 года представители арткома ГАУ КА предложили техсовету наркомата вооружения рассмотреть целесообразность «замены на трофейном немецком самоходе, именуемом „Артштурм“, 75-мм немецкой пушки отечественной 122-мм гаубицей М-30 образца 1938 года».

Техсовет поручил выполнение этой работы отдельной конструкторской группе Синельщикова, которая выполнила ее в исключительно короткий срок. Уже 6 апреля 1942 года проект, именовавшийся как 122-СГ, рассмотрели члены арткома, после чего он был утвержден заместителем начальника ГАУ и председателем арткома генерал-майором Хохловым. При этом в протоколе заседания, на котором рассматривались вопросы самоходной артиллерии, отмечалась необходимость срочного изготовления опытного образца СГ-122.

Иллюстрация к книге — Трофейные танки Красной Армии [i_075.jpg]

122 мм. самоходная гаубица

Эскизные проработки самоходной гаубицы СГ-122, вид сбоку. Апрель 1942 года (копия заводского чертежа).


В проекте машины предусматривалось использовать без изменений вращающаяся часть гаубицы М-30. В качестве нижнего станка применялась тумба специальной конструкции, которую предполагалось отливать. Из-за значительно больших габаритов М-30 (по сравнению с 75-мм пушкой StuG III) рубка самоходки увеличивалась по высоте на 100 мм.

В результате установки М-30 на StuG III масса последней, по расчетам, увеличивалась примерно на 2500 килограмм за счет самой гаубицы (120 кг), боекомплекта (900 кг) и дополнительных бронелистов (400 кг).

В ходе обсуждения отмечалось, что «вследствие навешивания бронезащиты на противооткатные устройства гаубицы М-30 имеется сомнение в сохранении усилий на подъемном и поворотном механизмах».

В заключении по проекту говорилось:

«1. Представленный эскизный проект 122-мм гаубичной самоходной установки 122-СГ на базе шасси трофейного самохода „Артштурм“ одобрить и принять для разработки технического проекта и изготовления опытного образца с внесением изменений согласно замечаний.

2. Просить наркомат вооружения об определении производственной базы для производства перевооружения трофейных самоходных установок „Артштурм“ отечественными 122-мм гаубицами М-30 обр. 1938 г.

3. Просить распоряжения начальника ГАБТУ КА о срочном восстановлении двух машин „Артштурм“ и передаче их заводам НКВ».

Для изготовления опытного образца самоходки, получившей обозначение СГ-122, нарком вооружения Д. Устинов 24 апреля 1942 года подписал приказ № 217с, которым предписывалось организовать на заводе № 592 НКВ (Мытищи Московской области) специальное конструкторское бюро для работ по новым машинам. Чтобы обеспечить сборку опытных СГ-122 начальник ГАБТУ КА генерал-лейтенант Я. Федоренко отдал распоряжение об организации ремонта трофейных «артштурмов» на рембазе № 82 в Москве.

Иллюстрация к книге — Трофейные танки Красной Армии [i_076.jpg]

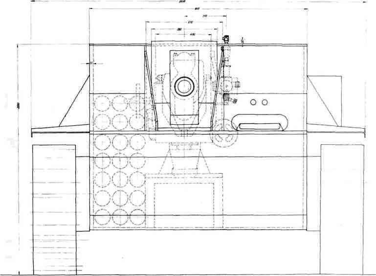
Эскизные проработки самоходной гаубицы СГ-122, продольный разрез по боевому отделению. Апрель 1942 года (копия заводского чертежа).


13 апреля 1942 года председатель техсовета НКВ Э. Сатель направил начальнику ремонтного управления ГАБТУ КА бригадинженеру Сосенкову следующий документ:

«Секретно.

В соответствии с решением, принятым Зам. Наркома Обороны СССР генерал-лейтенантом танковых войск т. Федоренко о перевооружении трофейных „артштурмов“ 122-мм гаубицами обр. 1938 года на заводе № 592 прошу Вас дать необходимое распоряжение о ремонте и доставке на завод № 592 четырех трофейных „артштурмов“. Для ускорения всех работ первый отремонтированный „артштурм“ необходимо доставить на завод до 25 апреля».

Здесь следует сказать, что большая часть оборудования и рабочих завода № 592 в подмосковных Мытищах (до войны Мытищинский вагоностроительный завод, ныне — Мытишинский машиностроительный завод) ещё в октябре-ноябре 1941 года была эвакуирована. К февралю 1942 года на предприятии насчитывалось всего около 2000 рабочих и 278 станков, из которых 107 требовали капитального ремонта. Основной продукцией завода на тот момент было производство корпусов ручных гранат, авиабомб, литье опорных плит для 82-мм миномётов и постройка зенитных бронепоездов.

Иллюстрация к книге — Трофейные танки Красной Армии [i_077.jpg]

Эскизные проработки самоходной гаубицы СГ-122, вид спереди. Апрель 1942 года (копия заводского чертежа).


В кратчайшие сроки созданное на заводе № 592 конструкторское бюро, которой возглавил инженер Каштанов, разработало на основе эскизного проекта рабочие чертежи, и в середине июня 1942 года был готов опытный образец СГ-122 (кстати, аналогичный проект перевооружения 122-мм гаубицей М-30 завод № 592 разработал и для танка Т-34, такую машину изготовили здесь осенью 1942 года).

На боевой рубке штурмового орудия (с демонтированной крышей) наваривалась простая призматическая коробка из 45-мм (лоб) и 35–25-мм (борта и корма) броневых листов. Лобовые листы базового StuG III усиливались дополнительными 20-мм экранами. Внутри боевого отделения на месте станка 75-мм орудия StuK 37 был смонтирован новый станок для гаубицы М-30. Сама же 122-мм гаубица использовалась практически без изменений, лишь для достижения достаточной устойчивости качающейся части в уравновешивающий механизм добавили по одной специальной пружине в каждую его колонну. Кроме того, для обеспечения выхода объектива панорамы прицела над крышей боевого отделения, между коробкой прицела и его корзиной установили специальную втулку.

Самоходка позволяла вести стрельбу как с места, так и с хода, осуществляя быстрый перенос огня на другие цели разворотом на гусеницах и вести приблизительное прицеливание с помощью простейшего визирного приспособления у водителя (в виде двух пластинок).

Возимый боекомплект (50 выстрелов) размещался следующим образом. Снаряды (по одному, два или три) укладывались на специальные металлические полки, закрепленные вдоль задней стенки и бортов боевого отделения. Верхний ряд снарядов фиксировался в своих опорах брезентовыми ремнями, а нижние прижимались полками, установленными сверху. По мере использования снарядов полки откидывались вверх, удерживаясь в таком положении пружинами.

Реклама
Вход
Поиск по сайту
Ищем:
Календарь