Онлайн книга ««Трехэтажный» американец Сталина. Танк М3 «Генерал Ли» / «Генерал Грант»»
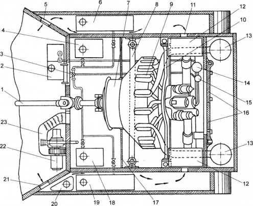
![]() Экспериментальная установка трех вентиляторов на М3. Обращает внимание вентилятор на крышке люка боевого отделения. Пуск двигателя осуществлялся электростартером. Система зажигания обеспечивалась двумя магнето типа Bendix-Scintilla VAG 9DFA с автоматическим опережением. Пуск двигателя представлял собой непростой процесс. Вот как он описан в соответствующей инструкции по эксплуатации среднего танка М3с, изданной в СССР: «Звездообразный двигатель воздушного охлаждения имеет некоторые особенности при запуске. Два нижних цилиндра его находятся в наиболее неблагоприятных условиях. Масло и часть несгоревшего горючего стекают в камеры сгорания, что затрудняет проворачивание коленчатого вала двигателя; применяя же силу, можно привести в негодность двигатель. ![]() Панель приборов, органы управления и сиденье механика-водителя (спинка откинута вперед). ![]() Танк М3 поздних выпусков. Такое заключение можно сделать по отсутствию дверей в бортах корпуса и наличию 75-мм пушки М3. Для заводки двигателя нужно отключить аккумуляторные батареи, повернув выключатель на 90°, и потянуть его кверху. Выключатель находится сзади сиденья пулеметчика, под полом башни. За сиденьем расположены два выключателя: передний — выключатель аккумуляторов; задний — выключатель ВКУ башни. Рычаг коробки перемены передач нужно поставить в нейтральное положение, а коленчатый вал двигателя повернуть на 1–2 оборота при помощи ручного механизма. Если коленчатый вал двигателя не повертывается, нужно спустить масло из двух нижних цилиндров, вывернуть свечи и промыть их в бензине. ![]() Моторное отделение (план): 1 — карданный вал; 2 — масляный бак; 3 — топливораспределительный кран; 4 — правый вертикальный топливный бак; 5 — окно воздухопритока; 6 — правый горизонтальный топливный бак; 7 — кожух двигателя; 8 — передняя опорная труба; 9 — крышка клапанного механизма; 10 — поперечина; 11 — окно воздухопритока; 12 — воздушный фильтр; 13 — глушитель; 14 — масляный фильтр; 15 — топливный редукционный клапан; 16 — дверцы моторного отделения; 17 — перегородка моторного отделения; 18 — левый вертикальный топливный бак; 19 — левый горизонтальный топливный бак; 20 — топливный бак двигателя вспомогательного агрегата; 21 — окно воздухопритока; 22 — вспомогательный агрегат; 23 — кожух подвода обогревающего воздуха. ![]() Двигатель Wright Continental R-975EC-2. Подготовив двигатель к пуску, открывают топливные краны, которые находятся у перегородки моторного отделения с правой стороны под масляным баком. Включают выключатель аккумуляторных батарей. Затем ставят рычаг ручного газа, который расположен слева от водителя, вперед на 1/10 сектора. Повернув запорную рукоятку пускового бензонасоса вверх, делают 3–4 полных качания. Рычажок включения магнето ставят в положение «ВОТН» (оба магнето включены). Чтобы запустить двигатель, необходимо одновременно включить рычажки стартера и пусковой бобины. Рычажок стартера нужно повернуть к метке «Б», рычажок бобины — к метке «В». При первой вспышке оба рычажка немедленно выключить. Набирать обороты следует постепенно, плавно нажимая на педаль акселератора. Прогрев двигателя производят при 800 об/мин. до температуры 37°C или 100°Ф (Ф — по Фаренгейту — Прим. автора). После заводки двигателя давление масла должно постепенно повышаться от 30 ф/дм2 до 80 — 100 ф/дм2. Вентилятор двигателя при включении трансмиссии не выдерживает резкого перехода от одних оборотов к другим, лопасти вентилятора при резких оборотах ломаются». Трансмиссия танка состояла из многодискового главного фрикциона сухого трения, смонтированного внутри маховика двигателя, карданного вала, пятискоростной коробки передач с синхронизаторами и механизмом горного тормоза, механизма поворота (двойной дифференциал типа Клетрак) и бортовых передач. ![]() Демонтаж двигателя из танка Grant I. ![]() Носовая часть корпуса танка с трансмиссией. ![]() Компоновка танка М3: 1 — курсовой пулемет Browning; 2 — коробка передач; 3 — 75-мм пушка; 4 — рычаг управления; 5 — прибор наблюдения механика-водителя; 6 — сиденье механика-водителя; 7 — сиденье наводчика 75-мм пушки; 8 — перископический прибор наблюдения; 9 — 37-мм пушка; 10 — шаровая установка 37-мм пушки; 11 — пулемет Browning; 12 — командирская башенка; 13 — сиденье командира танка; 14 — башня; 15 — сиденье заряжающего 37-мм пушки; 16 — топливный бак; 17 — ВКУ; 18 — воздухоочиститель; 19 — глушитель; 20 — направляющее колесо; 21 — двигатель; 22 — карданный вал; 23 — тележка подвески; 24 — рычаг стояночного тормоза; 25 — ведущее колесо. ХОДОВАЯ ЧАСТЬ применительно к одному борту состояла из шести одинарных обрезиненных опорных катков, сблокированных попарно в три балансирные тележки, подвешенные на двух вертикальных буферных пружинах каждая; трех поддерживающих катков, направляющего колеса с кривошипным натяжным механизмом и ведущего колеса переднего расположения со съемными зубчатыми венцами. Гусеницы резинометаллические или металлические мелкозвенчатые цевочного зацепления по 79 траков каждая. Ширина трака резинометаллической гусеницы Т41 — 406 мм, металлической Т49 и резино-металлических Т48 и Т51 — 421 мм, шаг трака — 152 мм. |
![Иллюстрация к книге — «Трехэтажный» американец Сталина. Танк М3 «Генерал Ли» / «Генерал Грант» [i_039.jpg] Иллюстрация к книге — «Трехэтажный» американец Сталина. Танк М3 «Генерал Ли» / «Генерал Грант» [i_039.jpg]](img/book_covers/052/52932/i_039.jpg)
![Иллюстрация к книге — «Трехэтажный» американец Сталина. Танк М3 «Генерал Ли» / «Генерал Грант» [i_040.jpg] Иллюстрация к книге — «Трехэтажный» американец Сталина. Танк М3 «Генерал Ли» / «Генерал Грант» [i_040.jpg]](img/book_covers/052/52932/i_040.jpg)
![Иллюстрация к книге — «Трехэтажный» американец Сталина. Танк М3 «Генерал Ли» / «Генерал Грант» [i_041.jpg] Иллюстрация к книге — «Трехэтажный» американец Сталина. Танк М3 «Генерал Ли» / «Генерал Грант» [i_041.jpg]](img/book_covers/052/52932/i_041.jpg)
![Иллюстрация к книге — «Трехэтажный» американец Сталина. Танк М3 «Генерал Ли» / «Генерал Грант» [i_042.jpg] Иллюстрация к книге — «Трехэтажный» американец Сталина. Танк М3 «Генерал Ли» / «Генерал Грант» [i_042.jpg]](img/book_covers/052/52932/i_042.jpg)
![Иллюстрация к книге — «Трехэтажный» американец Сталина. Танк М3 «Генерал Ли» / «Генерал Грант» [i_043.jpg] Иллюстрация к книге — «Трехэтажный» американец Сталина. Танк М3 «Генерал Ли» / «Генерал Грант» [i_043.jpg]](img/book_covers/052/52932/i_043.jpg)
![Иллюстрация к книге — «Трехэтажный» американец Сталина. Танк М3 «Генерал Ли» / «Генерал Грант» [i_044.jpg] Иллюстрация к книге — «Трехэтажный» американец Сталина. Танк М3 «Генерал Ли» / «Генерал Грант» [i_044.jpg]](img/book_covers/052/52932/i_044.jpg)
![Иллюстрация к книге — «Трехэтажный» американец Сталина. Танк М3 «Генерал Ли» / «Генерал Грант» [i_045.jpg] Иллюстрация к книге — «Трехэтажный» американец Сталина. Танк М3 «Генерал Ли» / «Генерал Грант» [i_045.jpg]](img/book_covers/052/52932/i_045.jpg)
![Иллюстрация к книге — «Трехэтажный» американец Сталина. Танк М3 «Генерал Ли» / «Генерал Грант» [i_046.jpg] Иллюстрация к книге — «Трехэтажный» американец Сталина. Танк М3 «Генерал Ли» / «Генерал Грант» [i_046.jpg]](img/book_covers/052/52932/i_046.jpg)