Онлайн книга «Странный дом 2»
|
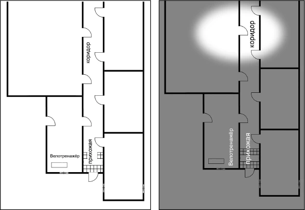
Курихара:Это дает нам понять, что велотренажер находился в комнате ②. «Тогда я открыл ту вторую дверь, но за ней уже не было комнаты, а просто текла речка. Я подумал, что это очень странно». Курихара:«Та вторая дверь», должно быть, вела в дальнюю комнату. Когда он зашел в эту дверь, то почему-то оказался на улице. Автор:То есть комната исчезла?.. Курихара:Такое невозможно в обычной жизни, разве что речь идет о шоу фокусов. Однако, если допустить, что увиденное Наруки было реальностью, можно выдвинуть одну гипотезу. За эти три месяца «дядя» провел работы по уменьшению площади дома. Итак одна комната была ликвидирована. Тогда планировка дома могла измениться следующим образом. ![]() Курихара:Похоже на дом Ирумы, тебе не кажется? Автор:Неужели «дядя» и впрямь перестроил свой дом, чтобы тот стал похожим на «Дом перерождения»?.. Курихара:В тексте есть доказательство того, что он был членом «Ордена перерождения». «Дядя по коридору отвел меня в дальнюю комнату. В этой маленькой комнатке была коричневая кукла. Я испугался, когда ее увидел». Курихара:Где именно эта комната находилась, неизвестно, но из слов «в дальнюю комнату» можно примерно понять ее местоположение. Курихара:Наруки в доме «дяди» всегда проводил время в помещениях, которые находились рядом с прихожей. С учетом этого вполне естественно, что для него места, расположенные в глубине дома, могли казаться «далекими». ![]() Курихара:В таком случае «дальняя комната» должна располагаться в верхней части схемы, в районе сердца. «Дядя сказал, что здесь находится «сердце дома» и что «эту комнату ни в коем случае нельзя запирать на ключ». Автор:Маленькая комната в районе сердца… В ней кукла. Выходит, это «святилище»? Курихара:Сам «дядя» так сказал, так что сомнений нет. Автор:Но что он имел в виду, говоря, что нельзя запирать комнату на ключ? Курихара:«В этой комнате – сердце дома, ее нельзя запирать»… На первый взгляд звучит странно, но если предположить, что эти слова отражают учение секты, то смысл становится яснее. Автор:Учение секты? Курихара:Послушники секты строят дома, которые повторяют тело Богоматери, устанавливают святилища в месте, где должно быть сердце… «Орден перерождения» всячески отождествляет дома с людьми. «Дом – это не предмет, а живое существо» – такова их идеология. Если иметь это в виду, то слова «дяди» начинают проясняться. Как известно, сердце – это насос, который через кровеносные сосуды перекачивает кровь по всему телу. Если сердце остановится или сосуды рядом с ним забьются, кровь не сможет добраться до конечностей и мозга, и при наихудшем раскладе человек может умереть. ![]() «Запереть святилище» – все равно что «перекрыть сердце»: энергия не будет поступать в дом и… Автор:И он умрет?.. Курихара:Да, именно эту мысль секта внушала своим последователям. С этой точки зрения слова «дяди» обретают смысл, и становится понятно, почему дверь в потайную комнату в доме семьи Ирума не запиралась на ключ. «Перекрыть сердце»… Эти слова напомнили мне отрывок из одного материала. Сцену из статьи-отчета о внедрении в «Дом перерождения», написанную журналистом после паломничества к Богоматери. «Спустя некоторое время после того, как мы вышли, из святилища вдруг раздался какой-то звук. Прошло несколько секунд, прежде чем я понял, что это был мужской крик. Прислушавшись, я разобрал слова, которые он произносил: «Богоматерь! Ты солгала мне! Разве ты не обещала спасти меня и моего сына!» |
![Иллюстрация к книге — Странный дом 2 [i_148.webp] Иллюстрация к книге — Странный дом 2 [i_148.webp]](img/book_covers/117/117523/i_148.webp)
![Иллюстрация к книге — Странный дом 2 [i_149.webp] Иллюстрация к книге — Странный дом 2 [i_149.webp]](img/book_covers/117/117523/i_149.webp)
![Иллюстрация к книге — Странный дом 2 [i_150.webp] Иллюстрация к книге — Странный дом 2 [i_150.webp]](img/book_covers/117/117523/i_150.webp)