Книга Странный дом 2, страница 31 – Укэцу

Авторы: А Б В Г Д Е Ж З И Й К Л М Н О П Р С Т У Ф Х Ч Ш Ы Э Ю Я
Книги: А Б В Г Д Е Ж З И Й К Л М Н О П Р С Т У Ф Х Ц Ч Ш Щ Ы Э Ю Я
Бесплатная онлайн библиотека LoveRead.ec

Онлайн книга «Странный дом 2»

📃 Cтраница 31

К дому господина Хираути мы шли по неасфальтированной дороге. Здания на пути попадались редко. Они походили на летние коттеджи или нечто подобное – видимо, люди не жили здесь постоянно.

Спустя некоторое время показался дом господина Хираути – он в самом деле был окружен природой. Дом был построен 26 лет назад, и, конечно, следы времени были заметны, но, судя по всему, предыдущий хозяин относился к нему с любовью, так что здание вовсе не выглядело запущенным – наоборот, довольно красивым.

Однако, войдя внутрь, я заметил кое-что странное.

На первом этаже не было ни одного окна.И даже когда господин Хираути включил свет, царивший там полумрак не рассеялся. Это произвело на меня гнетущее впечатение.

Хираути:Во время показа риелтор сказал, что первый этаж – это склад, поэтому окон нет.

Автор:Любопытное строение.

Хираути:Люди в деревнях в основном занимаются сельским хозяйством – должно быть, поэтому им нужны такие большие склады для хранения инструментов. Я этим не занимаюсь, так что разместил на первом этаже кровать и использую его как спальню.

Затем он провел меня по всему дому. По пути я испытал смутное чувство тревоги в одной из комнат.

Иллюстрация к книге — Странный дом 2 [i_062.webp]

Иллюстрация к книге — Странный дом 2 [i_063.webp]

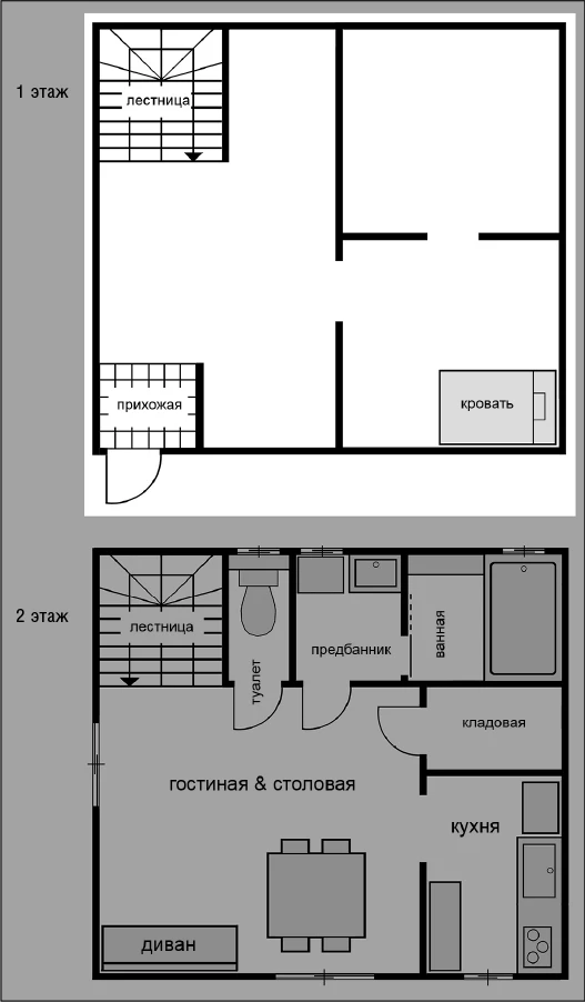
Первый этаж, угловая комната на северо-востоке. В момент, когда я вошел, мне словно сдавило грудь.

Автор:Господин Хираути, простие, вам эта комната не кажется странной? Какая-то она слишком тесная…

Хираути:Вы заметили? Я тоже так подумал в первый раз, когда вошел, что тут тесновато. Через некоторое время после переезда решил измерить комнату рулеткой – как я и думал, она оказалась немного меньше соседней комнаты. Ширина и длина были короче на восемьдесят сантиметров. Похоже, что внешние стены толще обычного.

Если перерисовать план, основываясь на рассказе господина Хираути, получится вот что. Он высказал предположение, что стены расширили, чтобы проложить там трубы. С другой стороны, зачем бы их стали устанавливать именно в этом помещении?

* * *

После этого мы поужинали на втором этаже. Господин Хираути приготовил гречневую лапшу по знаменитому рецепту префектуры Нагано в дополнение к темпуре из местных овощей, купленных в супермаркете, – вкусы идеально дополняли друг друга, создавая поистине роскошное сочетание.

Когда мы закончили есть и принялись за чай, у меня зазвонил телефон. Я посмотрел, кто это, – звонил мой редактор, господин Сугияма.

Автор:Алло?

Сугияма:Простите, что так поздно. Удобно сейчас говорить?

Автор:Да, что-то случилось?

Сугияма:Насчет дома господина Хираути. Сегодня я связался со знакомым писателем, который изучает историю Нагано, и он посоветовал мне одну старую книгу. И в ней я нашел описание, которое может иметь отношение к той информации.

Автор:Что за книга?

Сугияма:Сборник заметок из путешествий по Японии, написанных в 30-е годы, – «Вслед за ясным взором путника». В нем есть глава «Воспоминания из местности Ханъи», где описана жутковатая история, которая датируется как раз 23 августа 1938 года. Я сейчас сфотографирую эту страницу и отправлю вам, думаю, вам лучше взглянуть на нее самому.

На фотографии была изображена пожелтевшая от времени книга. «Вслед за ясным взором путника», четырнадцатая глава, автор Уки Мидзунаси. В ней описывалось, как автор во время прогулки в лесу наткнулась на странную водяную мельницу.

Вход
Поиск по сайту
Ищем:
Календарь