Книга Тайна смерти Рудольфа Гесса, страница 9 – Андрей Плотников

Авторы: А Б В Г Д Е Ж З И Й К Л М Н О П Р С Т У Ф Х Ч Ш Ы Э Ю Я
Книги: А Б В Г Д Е Ж З И Й К Л М Н О П Р С Т У Ф Х Ц Ч Ш Щ Ы Э Ю Я
Бесплатная онлайн библиотека LoveRead.ec

Онлайн книга «Тайна смерти Рудольфа Гесса»

📃 Cтраница 9

Территория МТШ, 28 января

С 16.00 дежурю на воротах. Британский караул готовится к сдаче смены, закончилось суточное дежурство. Я уже впустил новый состав караула на территорию тюрьмы. Разводящие повели часовых по постам, сержанты проверяют порядок в караульном помещении. Караульное помещение расположено рядом с комнатой дежурного надзирателя на воротах. Здесь же находится постоянный пост часового. Через полчаса смена караула завершена. Сменившийся караул выстраивается во внутреннем дворе в колонну по три, я открываю ворота, офицер дает команду, караул строевым шагом выходит из тюрьмы и направляется в казарму.

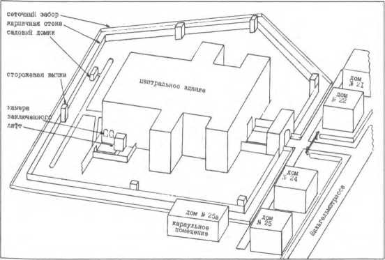
Территория тюрьмы обнесена каменной стеной высотой около 6 метров и забором из металлической сетки. Между ними сохранился фундамент электрического забора. Электрический забор с напряжением тока до 4000 вольт между двумя рядами колючей проволоки раньше также обеспечивал неприступность тюрьмы. В настоящее время остался лишь сеточный забор. По периметру каменной стены установлено шесть сторожевых вышек, на которых постоянно находятся часовые. Тюрьма имеет только одни входные ворота со стороны улицы Вильгельмштрассе. На территории тюрьмы находятся разрушенные здания бывших складских помещений, банно-прачечного хозяйства, лазарета, мастерских и других подсобных служб, а также угольный склад, сад, двор для прогулок. Большая часть тюрьмы в настоящее время не используется.

Кроме территории, окруженной стеной, к тюрьме также относятся несколько зданий, расположенных вдоль улицы Вильгельмштрассе. Эти здания обнесены сеточным забором, проход к ним контролируется дежурным надзирателем на главных воротах и закрыт для посторонних лиц шлагбаумом. В доме № 21 находится столовая для персонала МТШ. Дом № 22 используется для проживания некоторых сотрудников из несоюзного персонала тюрьмы и их семей. В частности, в этом доме вместе со своей семьей живет санитар Мелаоухи. Дом № 24 используется в качестве складского помещения. В доме № 25 расположены квартиры для отдыха надзирателей СССР и США. В квартирах есть все для комфортного проживания 10–12 человек, они содержатся в чистоте и порядке и всегда готовы к использованию. Поддерживает порядок в квартирах уборщица-немка Клуст. В квартирах отдыхали советские и американские надзиратели в перерывах между дежурствами в 50-60-х годах, когда приезжали на дежурство в МТШ на целую неделю. Однако с конца 1960-х годов квартиры используются очень редко, но в любой момент готовы встретить постояльцев. Дом 25а служит казармой для проживания американского, английского и французского караулов в месяцы их охраны тюрьмы. В казарме располагаются военнослужащие, не задействованные в суточном карауле. Военнослужащие располагаются там постоянно в течение своего месяца.

Иллюстрация к книге — Тайна смерти Рудольфа Гесса [i_009.jpg]

Общая схема территории МТШ.


Советский караул этой казармой не пользуется и каждые сутки приезжает на смену из Восточного Берлина.

В 20.00 мне на смену приходит американский надзиратель Джордан, и я продолжаю дежурство в блоке. «Номер семь» что-то пишет в своей камере, сидя на кровати. Я располагаюсь в кресле дежурного, открываю газету. Ближе к девяти часам вечера заключенный выходит из камеры и идет в телевизионную комнату. В 21.00 по многим каналам начнется выпуск новостей, «номер семь» старается быть в курсе всех мировых событий. Заключенный располагается напротив телевизора, я рядом.

— Американский космический челнок «Челленджер» взорвался на 73-й секунде полета, на высоте чуть более четырнадцати километров, — объявляет диктор.

— О Mein Gott! [5] — восклицает «номер семь».

Один и тот же сюжет показывают непрерывно: стартовая площадка, готовый к запуску корабль, на смотровой площадке приглашенные на церемонию запуска счастливые родственники и друзья астронавтов, старт ракеты, телевизионные камеры большого радиуса действия следят за полетом челнока, дымок из топливного бака, огненный оранжево-белый шар, огромное облако в виде двуглавого дракона. Камера периодически показывает охваченных ужасом гостей. У них на глазах только что погибли семеро астронавтов: их отцы, мужья, матери, жены.

Лицо заключенного напряжено, руки сжимают подлокотники кресла, глаза неотрывно смотрят на экран. Видно, что он взволнован. Пытаемся найти какую-либо информацию о старте челнока на других каналах. Но все каналы только повторяют один и тот же сюжет. «Номер семь» встает и выходит из телевизионной комнаты. В этот вечер он рано пошел спать.

Устав МТШ, 31 января

Заступаю в ночную смену на ворота. Британский часовой на посту отдает мне честь в соответствии с воинским уставом. А вся жизнь в тюрьме и вокруг нее также определена уставом. Документ с названием «Тюремный устав союзной тюрьмы в Шпандау» был утвержден Контрольным советом над Германией 10 июня 1947 года. Уставом определялось, что верховная исполнительная власть над тюрьмой в Шпандау принадлежит Союзной комендатуре города Берлин. Высшей исполнительной властью является Правовой комитет Союзной комендатуры. Исполнительная власть состоит из четырех офицеров, которые образуют Дирекцию тюрьмы. В связи с тем, что в 1948 году советские представители вышли из состава Союзной комендатуры, верховная исполнительная власть и высшая исполнительная власть фактически перестали существовать как единые четырехсторонние органы. Из всех органов власти МТШ единой осталась лишь исполнительная власть — Дирекция тюрьмы. Представителями Верховной исполнительной власти американской, британской и французской сторон стали коменданты соответствующих секторов Западного Берлина. Функция Верховной исполнительной власти с советской стороны осуществляется начальником штаба Группы советских войск в Германии через начальника Отдела внешних сношений. Соответствующие изменения были внесены в Устав МТШ в 1950-1960-х годах.

Значительные изменения в первоначальной редакции Устава в части внутренней жизни тюрьмы были сделаны в апреле 1954 года. В случае если состояние здоровья заключенного потребует сложного лечения или серьезной хирургической операции, которые не могут быть удовлетворительно проведены в тюрьме, больного разрешили поместить на определенный срок, согласованный четырьмя директорами тюрьмы, в ближайший от тюрьмы госпиталь, находящийся в распоряжении одной из оккупирующих Германию держав. При этом директора продолжают нести ответственность за охрану заключенного. Одновременно были сделаны некоторые послабления в режиме содержания заключенных. В частности, свет в камере по просьбе заключенного может быть выключен в любое время после 18 часов 45 минут, заключенным разрешили разговаривать между собой во время работы и прогулок, несколько смягчились процедуры переписки и свиданий, в комнате свиданий сняли решетки, которые мешали заключенному и посетителю видеть друг друга. Именно тогда было принято решение пополнить тюремную библиотеку четырьмя ежедневными газетами, по одной по выбору каждого из четырех директоров.

Следующие изменения в тюремном режиме конкретно «заключенного № 7» были приняты в марте 1970 года, после возвращения его с лечения в британском военном госпитале. При этом подчеркивалось, что все изменения в тюремный режим вносятся в связи с состоянием здоровья заключенного. Он был переведен в сдвоенную камеру, в которой разрешили установить медицинскую кровать, предоставленную британским военным госпиталем. Также было принято решение не закрывать камеру заключенного на ключ. Время подъема заключенного изменено с 6.00 часов на 7.00 часов, продолжительность завтрака установлена с 7.45 до 8.30, разрешена дополнительная двухчасовая прогулка. Заключенный стал получать диетическое питание и был освобожден от физической работы. Уборка камеры поручалась теперь санитару.

Вход
Поиск по сайту
Ищем:
Календарь