Онлайн книга «Современная архитектура Японии. Традиции восприятия пространства»
|
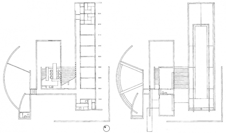
Самым любимым строительным материалом Андо стал бетон. В постройках мастера можно наблюдать настоящее преклонение автора перед стеной из необработанного бетона. Его стены толстые, массивные, тяжелые, без украшений. Андо как-то рассказывал, что стены способны проявлять силу, граничащую с насилием. Стены Андо могут разделять пространство, преображать, обогащать его, создавая новые зоны. Архитектор всегда очень внимательно относился к созданию стен, формирующих его архитектуру. Швы и стыки должны быть выполнены с безукоризненной точностью. Качество бетона должно быть таким, чтобы избежать проблемы выветривания и необходимости его окрашивания. Центром композиции интерьера церкви является вырубленный в восточной стене абрис креста, главного символа христианства. ![]() Т. Андо. Церковь Света (1989 г.) ![]() Т. Андо. Церковь Света. План Солнечные лучи, проходя через абрис, формируют самый настоящий крест света и символизируют духовный путь веры – стремление души к божественному свету из темного ограниченного пространства физического тела. Именно этот крест света является единственным элементом интерьера, на котором можно акцентировать свое внимание. С одной стороны, интерьер можно назвать очень аскетичным, но с другой – именно в нем возникает ощущение погружения в самого себя, сравнимое с медитацией. Ведь даже крест за алтарем выполнен не из физической материи, а при помощи света. Андо создавал Церковь Света как произведение, имеющее дуалистичный, контрастный характер. За счет контрастов, привнесенных автором в это строение, происходит формирование философского, эмоционального, психологического и интеллектуального диалога архитектуры с человеком. По замыслу Андо, архитектура церкви должна была воплотить в себе и отразить двойственность природы всего сущего. Архитектор противопоставляет свет и темноту, глухие бетонные стены и пустоту интерьера, прочность бетона и хрупкость стекла. Необработанная поверхность бетонных стен, отсутствие декора и украшений противопоставляются яркому световому кресту, наполняющему божественным светом пространство церкви. Архитектура Церкви Света должна была помочь каждому посетителю, хотя бы на короткое время, исключить волнения внешней светской жизни и обратиться к поиску внутренней духовности и красоты. Главной особенностью интерьера является глубокая пустота, которая помогает сконцентрироваться и погрузиться в свои мысли. Андо удивительно тонко и точно сумел использовать все свойства пустоты в своем произведении. Пустота в сочетании с абсолютной тишиной дает возможность уйти в самого себя, т. е. погрузиться в состояние, сравнимое с медитацией. Служители церкви хорошо помнят тот день, когда Тадао Андо принес макет будущей церкви. Известный архитектор тогда напоминал скорее маленького мальчика с новой игрушкой – его лицо сияло, глаза лучились. Он долго и вдохновенно рассказывал, как будет устроено здание церкви, пытаясь убедить всех в правильности своих мыслей. Было очень заметно, как увлечен архитектор своей идеей, как сильно захватил его этот проект. «Во всех моих работах свет является важным определяющим фактором. Я создаю закрытые помещения в основном с помощью толстых бетонных стен. Основной причиной является то, что для создания места уединения человека в современном обществе иногда требуются глухие стены без проемов», – говорил Тадао Андо. Интерьер небольшого культового сооружения состоит исключительно из пространства, света и полутени. Андо сумел предъявить духовную силу света, используя для всей постройки только необработанный бетон. В церкви, кроме скромной лампы перед кафедрой проповедника и трех скромных светильников на стене, нет других источников искусственного освещения. Интерьер освещает только дневной свет, проникающий через разрезы в Стене Святости, сделанные в форме креста. Рассеянный свет, заполняя пустой интерьер, создает приглушенную атмосферу тишины и спокойствия. Благодаря архитектурному решению церкви, в ее пределах формируется «крест света», необходимый для полноценного восприятия сооружения целиком. Чрезвычайно интересно организовано пространство частной виллы Косино (Koshino House, 1981 г., преф. Хёго) состоит из двух объемов, частично скрытых в наклонной холмистой местности. Такое положение здания, «спрятанное» в рельефе, продиктовано и необходимостью защиты от природных катаклизмов. Полностью соответствуя своими разноуровневыми помещениями сложному ландшафту, сооружение прекрасно вписано в окружающую природу, располагаясь среди затеняющих его елей, густые кроны которых препятствуют проникновению прямых солнечных лучей, пропуская лишь солнечные блики. ![]() Т. Андо. Церковь Света. Фрагмент интерьера ![]() Т.Андо. Вилла Косино (1981 г.) Два блока помещений виллы, поставленные параллельно друг другу, соединяются подземным переходом и имеют внутренний двор, соответствующий наклонным контурам участка. Устройство внутреннего двора символически передает организацию природного мира. Во внутренний двор выходит большая гостиная с широкой открытой лестницей, которые и рассматриваются архитектором как главные объекты, призванные воспринимать игру светотени. ![]() Т.Андо. Вилла Косино. Поэтажные планы ![]() Т.Андо. Вилла Косино. Фрагмент интерьера Используя для постройки необработанный бетон, Андо «оживляет» фактуру материала с помощью светового воздействия. Для попадания внутрь солнечного света предусмотрены разной длины проемы, в которых лучи солнца образуют свои причудливые узоры. Так материальный объект – неподвижная бетонная форма – дополняется световыми вариациями и получает способность «изменяться», воздействуя на эмоции и чувства посетителей. Можно сказать, что свет является посредником между пространством и формой, раскрывая их потенциал в динамике, что намного превосходит их статичные возможности. |
![Иллюстрация к книге — Современная архитектура Японии. Традиции восприятия пространства [i_025.jpg] Иллюстрация к книге — Современная архитектура Японии. Традиции восприятия пространства [i_025.jpg]](img/book_covers/082/82544/i_025.jpg)
![Иллюстрация к книге — Современная архитектура Японии. Традиции восприятия пространства [i_026.jpg] Иллюстрация к книге — Современная архитектура Японии. Традиции восприятия пространства [i_026.jpg]](img/book_covers/082/82544/i_026.jpg)
![Иллюстрация к книге — Современная архитектура Японии. Традиции восприятия пространства [i_027.jpg] Иллюстрация к книге — Современная архитектура Японии. Традиции восприятия пространства [i_027.jpg]](img/book_covers/082/82544/i_027.jpg)
![Иллюстрация к книге — Современная архитектура Японии. Традиции восприятия пространства [i_028.jpg] Иллюстрация к книге — Современная архитектура Японии. Традиции восприятия пространства [i_028.jpg]](img/book_covers/082/82544/i_028.jpg)
![Иллюстрация к книге — Современная архитектура Японии. Традиции восприятия пространства [i_029.jpg] Иллюстрация к книге — Современная архитектура Японии. Традиции восприятия пространства [i_029.jpg]](img/book_covers/082/82544/i_029.jpg)
![Иллюстрация к книге — Современная архитектура Японии. Традиции восприятия пространства [i_030.jpg] Иллюстрация к книге — Современная архитектура Японии. Традиции восприятия пространства [i_030.jpg]](img/book_covers/082/82544/i_030.jpg)