Книга Петербургские доходные дома. Очерки из истории быта, страница 82 – Екатерина Юхнева

Авторы: А Б В Г Д Е Ж З И Й К Л М Н О П Р С Т У Ф Х Ч Ш Ы Э Ю Я
Книги: А Б В Г Д Е Ж З И Й К Л М Н О П Р С Т У Ф Х Ц Ч Ш Щ Ы Э Ю Я
Бесплатная онлайн библиотека LoveRead.ec

Онлайн книга «Петербургские доходные дома. Очерки из истории быта»

📃 Cтраница 82
Иллюстрация к книге — Петербургские доходные дома. Очерки из истории быта [i_221.jpg]

Проект фасада доходного дома евангелическо-лютеранской церкви Св. Анны. Фурштатская ул., 9


— Парадные и черные лестницы должны быть светлые и удобные для хода; подъёмных машин не требуется.

— Прачечной в доме не требуется; внутренние световые дворы не допускаются.

— Предполагается весь дом построить на железных балках, а подвальный этаж — на железных балках с бетонными сводами.

— Требуется, чтобы дом был наиболее доходный и отвечающий стоимости места (земля ценится около 300 рублей за квадр. саж.), сообразно чему при оценке проекта имеет быть обращено особое внимание на наивыгоднейшее отношение полезной площади здания к его объему.

— Фасады предполагаются из облицовочного кирпича, а тяги, пояски, оконные наличники и карнизы оштукатуренные цементом; отделка простая: излишество лепных украшений не желательно; стиль Louis XVI, в виду того что рядом существующее монументальное здание (церковь) в этом стиле».

Иллюстрация к книге — Петербургские доходные дома. Очерки из истории быта [i_222.jpg]

Проектные поэтажные планы доходного дома евангелическо-лютеранской церкви Св. Анны. Фурштатская ул., 9


Не поскупилась община — только на премии было выделено 1200 рублей, не считая стоимости организации и проведения конкурса. Поэтому участвовать в конкурсе решили многие — на конкурс поступило 20 проектов!!! Многие ли доходные дома могут похвастаться таким вниманием профессионалов? Жюри признало лучшими авторами: 1) гражд. инж. Л. А. Ильин и гражд. инж. А. Ф. Бубырь (премия — 600 р.); 2) арх. Б. Я. Боткин, арх. И. А. Герман и арх. В. И. Романов (премия — 350 р.); 3) худ. арх. Ф.Ф. фон Постельс и арх. худ. И. А. Претро (премия — 250 р.).

О победившем проекте никому не известных недавних выпускников Института гражданских инженеров Л. А. Ильина и А. Ф. Бубыря в престижном журнале «Зодчий» на 127-й странице 10 выпуска 1903 года появился вполне благожелательный отзыв: «Площадь застройки составляет 194,5 кв. саж., при средней высоте 10,3 саж., получается 2003 куб. саж. постройки лицевого дома. Полезная площадь пола квартир, не считая подвалов, — 635 кв. саж. Проект по простому, ясному и рациональному приёму плана и по красивым, талантливо исполненным фасадам безусловно следует считать лучшим из всех представленных проектов. Хотя полезная площадь застройки уступает многим другим проектам, между прочим двум предыдущим, тем не менее проект под девизом „два круга“ признан наилучшим в виду того, что автор проекта сумел избегнуть всяких нежелательных темных помещений и осветил прямым светом как все уборные, так и ванные. Парадные лестницы широкие и хорошо освещены. Как величина квартир, так и разбивка их — весьма удачны. Исполнение данного проекта послужит украшением всей улицы».

Созданный Львом Александровичем Ильиным фасад не мешает любоваться нежно бирюзовым зданием кирхи, а создает ей величественное обрамление. Доходный дом, выстроенный в стиле эклектики, совершенно уже не модной в начале XX века, прекрасно вписался в непрерывную цепь доходных домов и по стилю, и по высоте, и по пропорциям. Нарядные двухцветные фасады с четким вертикальным членением придают зданию стройность. Выступы на фасаде и эркеры разных конфигураций дают светотеневые эффекты. А смягченно округлый угол здания завершает гармонию.

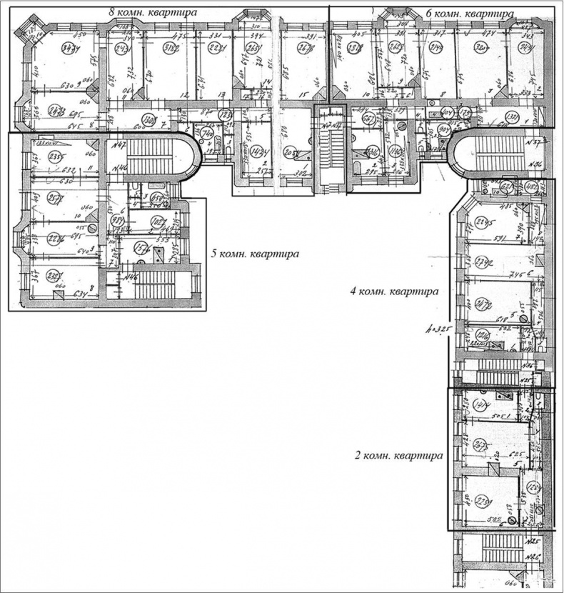
Иллюстрация к книге — Петербургские доходные дома. Очерки из истории быта [i_223.jpg]

План 4-го этажа, осуществленный. Фурштатская ул., 9


Два молодых архитектора прекрасно дополняли друг друга. Если Л. А. Ильин прекрасно умел стилизовать и вписывать в окружающее пространство фасады доходных домов, то Алексей Федорович Бубырь был непревзойденным инженером-архитектором и проектировщиком внутренних помещений. Он один из первых в Петербурге применил при возведении доходных домов железобетонные конструкции системы французского инженера Кулару. Этот новый тип междуэтажных перекрытий оказался весьма долговечен — вот уже более века дом не нуждается в капитальном ремонте. И, в отличие от деревянных балок, совершенно не боится огня.

Очевидно, что община Анненкирхи осталась довольна работой молодых архитекторов. Именно поэтому им было доверено спроектировать и возвести еще и здание для элементарного отделения Анненшуле.

Дальнейшая судьба архитекторов нашего дома

Алексей Федорович Бубырь, когда проектировал и строил наш дом, был счастливо влюблен в Юлию, которая вскоре стала его женой. Она принесла с собой богатое приданное, поскольку была дочерью Андрея Андреевича Дидерихса, владельца знаменитой фортепьянной фабрики «Diederichs Freres», основанной в Петербурге еще его дедом в 1810 году. На Всемирной промышленной выставке в Париже в 1900 году инструмент фабрики был удостоен Гран-при. Фабрика в начале XX века выпускала по 600 добротных инструментов в год по вполне приемлемой цене.

По завершении строительства школьного здания — Анненшуле А. Ф. Бубырь получает новый заказ на возведение доходного дома на Стремянной ул. — рядом с Невским проспектом. Там он, не связанный никакими условиями конкурса, строит интересный дом в силе модерн, украшенный большим количеством рыб, сказочных гадов, грибков, елочек и тому подобных. Вновь построенное здание настолько нравится его создателю, что Алексей Федорович Бубырь выкупает его для себя. Это нечастый в истории пример архитектора — владельца доходного дома. Да, многие архитекторы проектировали и строили дома для своей семьи, но чтобы владеть 6-этажным доходным домом с 20 квартирами рядом с Невским проспектом… Конечно, его доходов от трех построенных зданий и нескольких выигранных конкурсов не могло хватить на покупку такого дома, но приданое жены и помощь тестя сделали это возможным. Семья Бубырей выбрала для проживания квартиру на шестом этаже. Въехали они сюда с младенцем дочерью, остальные же четверо их детей рождались каждые два года именно в этом доме. Все дети прожили более 80 лет, пережив все катаклизмы XX века. Архитектор жил настолько безбедно, что на следующий год пристроил еще 3-этажный флигель, сделав в нем гараж для своего «Рено» — владельцев автомобилей в то время в Петербурге можно было по пальцам пересчитать.

Иллюстрация к книге — Петербургские доходные дома. Очерки из истории быта [i_224.jpg]

Архитектор А. Ф. Бубырь


Он мог бы жить на доходы от своего доходного дома. Но его творческая активность была неуемной — он стал одним из виднейших создателей северного модерна, всего за 14 лет им были построены 8 доходных домов в этом стиле, среди них один из первых в Петербурге кооперативных комплексов — Бассейное товарищество собственных квартир (ул. Некрасова, 58–60). Но грянула революция, гражданская война — архитектурных заказов не стало. Неизвестно, почему он оказался на Украине, скорее всего, он пробирался в свой родной Екатеринослав (потом его переименуют в Днепропетровск, а год назад — в Днепр). В раздираемой гражданской войной Украине в 1919 году 43-летний архитектор погиб от бандитской пули, и место его захоронения неизвестно.

Вход
Поиск по сайту
Ищем:
Календарь