Книга Петербургские доходные дома. Очерки из истории быта, страница 3 – Екатерина Юхнева

Авторы: А Б В Г Д Е Ж З И Й К Л М Н О П Р С Т У Ф Х Ч Ш Ы Э Ю Я
Книги: А Б В Г Д Е Ж З И Й К Л М Н О П Р С Т У Ф Х Ц Ч Ш Щ Ы Э Ю Я
Бесплатная онлайн библиотека LoveRead.ec

Онлайн книга «Петербургские доходные дома. Очерки из истории быта»

📃 Cтраница 3
Иллюстрация к книге — Петербургские доходные дома. Очерки из истории быта [i_005.jpg]

Каменные и деревянные доходные дома на перекрестке Надеждинской и Бассейной улиц (ныне — Маяковского и Некрасова). Акварель Ф. Ф. Баганца. 1860-е гг.


Как известно из Городской переписи 1881 года, количество каменных домов в Петербурге стало впервые превышать количество деревянных лишь в 1880-е годы: каменных домов насчитывалось 11 169, деревянных — 10 232 и смешанных — 786 (на кирпичном первом цокольном этаже надстраивался второй — деревянный). По статистическому ежегоднику Санкт-Петербурга за 1893 год ежегодно в среднем строилось 480 домов, из них 260 — каменных.

Светлой нитью вдаль уходит
Гордый, тесный ряд домов.
И весенним ровным солнцем
Каждый камень озарен.
А. Добролюбов.
Литейный вешним утром

Строительство каменных домов в различных районах происходило крайне неравномерно. К концу XIX века город был каменным только в центральной части, ограниченной Фонтанкой и Крюковым каналом. Кирпичные дома здесь составляли от 96 до 100 %. От 3/4 и более подобных домов высилось вдоль Литейного, Владимирского и Загородного проспектов, в Коломне, а также на восточной оконечности Васильевского острова. Равное количество деревянных и каменных домов приходилось на Староневский проспект и широкую полосу вдоль Забалканского (Московского) проспекта. А на Петербургской, Выборгской сторонах, на Охте деревянные дома составляли большинство даже в конце XIX века. Из переписи 1890 года известно, что на Петербургской стороне на разных участках деревянные дома составляли от 52 до 87 % и на Выборгской стороне — от 54 до 85 %. Итак, даже Петербург был наполовину деревянным городом.

Мнения современников

Лачужки этой нет уж там. На месте

Ее построен трехэтажный дом…

Мне стало грустно: на высокий дом

Глядел я косо. Если в эту пору

Пожар его бы охватил кругом,

То моему б озлобленному взору

Приятно было пламя…

А. С. Пушкин. Домик в Коломне

Почему же петербуржцы XIX века упорно считали свой город каменным, несмотря на то что фактически он был наполовину деревянным? В формировании облика Петербурга в сознании горожан главную роль играла центральная часть. Именно этот Петербург многократно описан и воспет писателями и поэтами. Он ужасал их:

Мертвы и сумрачны домов немых громады.
А. Голенищев-Кутузов. Лампада
В мертвых громадах кирпичных,
Мокрых от вечных дождей,
Много их — серых, безличных,
Смертью дышащих людей.
Дети каменной неволи
Многоярусных гробниц!
В. Князев. Из цикла «Проклятый город»

Статистические данные, приведенные выше, указывают на материал постройки, но не на облик дома. В Петербурге было принято штукатурить деревянные дома, делая их внешне практически неотличимыми от каменных. Так, в разных районах оштукатуривались от 30 до 73 % деревянных домов. Это делалось как для сохранности древесины во влажном климате, так и из-за соображений престижа, а значит — более высокой цены квартир, сдаваемых в аренду. Выступающие концы бревен закрывали вертикальными досками (что препятствовало их гниению) и штукатурили. Получались пилястры, указывающие на количество капитальных перпендикулярных стен. Чтобы придать дому респектабельный вид, его украшали деревянными (тоже оштукатуренными) карнизами с резными барочными или античными орнаментами, возводили деревянные портики с деревянными колоннами. И колонны, и пилястры завершались деревянными резными капителями, которые после оштукатуривания по виду не отличались от каменных. Кстати, и у каменных дворцов иногда сооружались деревянные колонны (сделанные из дуба, они отличались чрезвычайным долголетием).

Иллюстрация к книге — Петербургские доходные дома. Очерки из истории быта [i_006.jpg]

Большой проспект В. О. Фото до 1914 г.


Для восприятия города как каменного (более чем подлинное количество домов из кирпича) важен тот фактор, что каменные дома строились в основном многоквартирными, поэтому к концу XIX века четверо из пяти петербуржцев жили в каменных домах.

Как же относились к материалу постройки своих жилищ сами горожане? Россияне традиционно предпочитали жить в деревянных, считая их более пригодными для жилья, как бы мы сегодня сказали — более экологичными.

Кроме того, каменные дома оказывались настолько дорогими в строительстве и содержании, что владение ими наводило на мысль о нечестных способах приобретения. Это, кстати, нашло отражение в пословице: «От трудов праведных не наживешь палат каменных».

Иллюстрация к книге — Петербургские доходные дома. Очерки из истории быта [i_007.jpg]

Большая Дворянская улица. Фото 1900 г.

Иллюстрация к книге — Петербургские доходные дома. Очерки из истории быта [i_008.jpg]

Одноэтажный доходный дом, оштукатуренный, на две трехкомнатные квартиры, посередине — пилястра, закрывающая концы бревен. Альбом проектов Г. М. Судейкина. 1916 г.

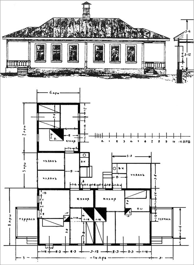
Иллюстрация к книге — Петербургские доходные дома. Очерки из истории быта [i_009.jpg]

Проект двухэтажного доходного дома размером 12 × 16 метров: 8 двухкомнатных квартир, теплый ватерклозет, кухня с уголком для постели прислуги. Каждая квартира имеет парадный и черный ходы. Альбом проектов Г. М. Судейкина. 1916 г.


Возникает резонный вопрос: зачем же все-таки возводились каменные строения? Иметь каменный дом было престижно, и это, пожалуй, единственное объяснение. Престижность каменного дома в сочетании с привычкой и желанием жить в деревянных помещениях привели к распространению смешанных домов: деревянный верх — с жилыми комнатами, а в каменном первом этаже располагались или парадные помещения, если дом принадлежал дворянину, или торговые и складские помещения, если домовладельцем был купец. Конечно, речь идет здесь об особняках.

В начале ХХ века Петербургская и Выборгская стороны, Охта, южные окраины и западная часть Васильевского острова, состоявшие почти исключительно из деревянных одноэтажных домиков и воспринимавшиеся современниками как предместья (хотя официально они входили в границы города), начали застраиваться каменными громадами.

Вход
Поиск по сайту
Ищем:
Календарь