Книга Никола Тесла, страница 9 – Олег Арсенов

Авторы: А Б В Г Д Е Ж З И Й К Л М Н О П Р С Т У Ф Х Ч Ш Ы Э Ю Я
Книги: А Б В Г Д Е Ж З И Й К Л М Н О П Р С Т У Ф Х Ц Ч Ш Щ Ы Э Ю Я
Бесплатная онлайн библиотека LoveRead.ec

Онлайн книга «Никола Тесла»

📃 Cтраница 9

В качестве причитающегося ему вознаграждения Тесла получил солидный пакет акций собственного предприятия, которые стоили немного дороже гербовой бумаги, на которой были отпечатаны. Глубочайший кризис перепроизводства американской экономики превратился в депрессию, и Тесле никак не удавалось найти инженерную или хотя бы техническую должность. Начиная с весны он весь 1886 год тяжело работал в уличных бригадах Нью-Йорка. Его заработка едва хватало на пропитание. Так или иначе, но все проходит, в конце концов закончился и этот тяжелый период в жизни изобретателя.

В «Американском патентном вестнике» вышло описание нескольких оригинальных изобретений, сделанных Теслой за те несколько лет, что он провел в Америке, которые тут же привлекли внимание влиятельных промышленников. Это были заявки на улучшение дуговых ламп Яблочкова, а также патенты на термомагнитный двигатель, пиромагнитный электрогенератор и гиромагнитный коммутатор для динамо-машин.

С Теслой встретился сам управляющий компании «Вестерн Юнион»- давний конкурент «империи Эдисона», который не только знал о переменном токе, но и был лично заинтересован в новой идее. Узнав об индукционном моторе изобретателя, управляющий отчетливо увидел грандиозное будущее этой электрической машины. Тут же заключили соглашение о создании акционерного общества под именем Теслы. Электрическая компания Теслы имела особую цель — наконец-то развить систему переменного тока, которую изобретатель пытался безуспешно внедрить в «империи Эдисона».

Война токов и патентов

Со времен Фарадея… никогда ни одна экспериментальная истина не была представлена так просто и понятно, как описание Теслой его способа получения и использования многофазных переменных токов. Он ничего не оставил своим последователям для доработки. Его труды содержат даже математическую основу теории.

Б. А. Беренд, доктор наук. Послесловие к лекции Теслы «Новая система двигателей переменного тока и трансформаторов» в Американском институте инженеров-электротехников

Это не был просто новый двигатель, но вполне обоснованная новая технология. Суть системы переменного тока Теслы заключается в удивительно простом индукционном двигателе, практически не имеющем электрических подводящих частей, которые могли бы выйти из строя.

Уильям А. Антониони, профессор Корнеллского университета
Иллюстрация к книге — Никола Тесла [i_012.jpg]

Макет электрогенератора переменного тока.


Электрическая компания Теслы с капиталом в полмиллиона долларов открыла свое дело в апреле 1887 года. По иронии судьбы лаборатория и мастерские, которые Тесла нашел для своей новой компании, ранее принадлежали Эдисону. Для изобретателя, столь долго ожидавшего такого момента, это было осуществлением его мечты. Он начал работать, подобно одной из своих динамо-машин, — день и ночь, практически без отдыха.

Поскольку идею он уже давно вынашивал и все просчитал, ему потребовалось лишь несколько месяцев, для того чтобы начать оформление документов патента для всей многофазной системы переменного тока. В действительности это были три полные системы однофазного, двухфазного и трехфазного переменного тока. Тесла ставил эксперименты также с другими типами многофазных систем, и для каждого типа он создавал динамо-машины, двигатели, трансформаторы и автоматические элементы управления.

Иллюстрация к книге — Никола Тесла [i_013.jpg]

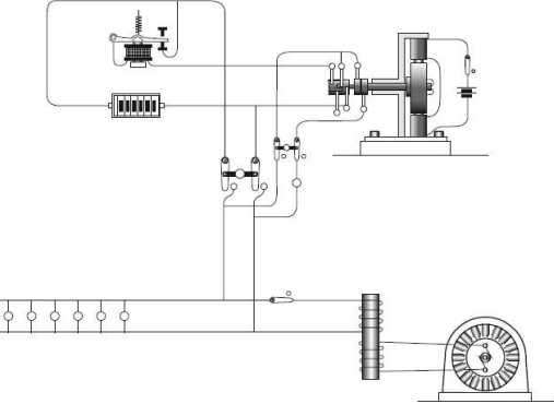
Система выработки и передачи переменного тока Вестингауза.


В это время в Америке действовали сотни небольших электростанций, в которых использовалось по крайней мере 20 различных вариантов электрических контурных схем и типов оборудования. Обычно эти электрические схемы соответствовали одному изобретению или даже целой группе патентов. Джордж Вестингауз, изобретатель железнодорожного тормоза, купивший многие патенты на системы переменного тока, решил построить трансформаторную систему преобразования и передачи переменного тока. В 1886 году она была успешно опробована, а вскоре Вестингауз ввел в действие первую в Америке коммерческую систему переменного тока. Через год в нее входило уже более 30 электростанций. Так у «империи Эдисона» появился сильный и опасный конкурент в сфере электротехники.

Иллюстрация к книге — Никола Тесла [i_014.jpg]

Джордж Вестингауз (1846–1914).


Главным препятствием на пути развития систем переменного тока было отсутствие простых, надежных и экономичных двигателей-генераторов. Полгода упорного труда в новой компании быстро принесли свои плоды — и Тесла смог послать в Патентную комиссию США сразу несколько заявок на многофазные двигатели и системы переменного тока. Надо заметить, что в течение пяти последующих лет он оформил 40 патентов, причем многофазные системы Теслы были настолько оригинальными и всеохватывающими, что патентовались абсолютно беспрепятственно.

По предложению основателя одного из первых курсов электротехники в Корнеллском университете профессора Уильяма Антониони малоизвестный инженер-эмигрант был приглашен 16 мая 1888 года прочесть чрезвычайно престижную публичную лекцию в Американском институте инженеров-электротехников. К своему удивлению, Тесла обнаружил в себе способности оратора, а его лекция под названием «Новая система двигателей переменного тока и трансформаторов» стала классической.

По моему мнению, Джордж Вестингауз был единственным человеком на земном шаре, который смог принять мою систему переменного тока в существовавших тогда обстоятельствах и выиграть битву против предубеждений и власти денег. Он был первопроходцем, который впечатлял своим величием, одним из истинных благородных людей, которыми может гордиться Америка и перед которыми человечество находится в неописуемом долгу благодарности.

Н. Тесла

Этот период жизни был потрясающе удачным для Теслы. Его патенты были именно тем недостающим звеном, которое так искал для своих систем переменного тока американский промышленник, инженер и предприниматель Джордж Вестингауз. Он с самого начала сумел оценить гигантский потенциал электросистем переменного тока, способных передавать ток высокого напряжения через огромные американские просторы.

Иллюстрация к книге — Никола Тесла [i_015.jpg]

Ниагарский водопад.


Как-то Вестингауз посетил Теслу в его лаборатории и рассказал о своей идее построить гидроэлектростанцию переменного тока на Ниагарском водопаде. Эта идея увлекла изобретателя. Мастерская и лаборатория Теслы были переполнены поражающими воображение аппаратами и приборами. Вестингауз ходил от машины к машине, иногда нагибался вперед, опираясь руками на колени, пристально вглядывался, а иногда, склонив голову, слушал ровный рокот и жужжание разнообразных двигателей переменного тока. Так началась дружба видного предпринимателя и выдающегося изобретателя.

Реклама
Вход
Поиск по сайту
Ищем:
Календарь