Книга Следы богов, страница 110 – Грэм Хэнкок

Авторы: А Б В Г Д Е Ж З И Й К Л М Н О П Р С Т У Ф Х Ч Ш Ы Э Ю Я
Книги: А Б В Г Д Е Ж З И Й К Л М Н О П Р С Т У Ф Х Ц Ч Ш Щ Ы Э Ю Я
Бесплатная онлайн библиотека LoveRead.ec

Онлайн книга «Следы богов»

📃 Cтраница 110

Оставим на некоторое время в стороне вопрос, имеем ли мы дело с богами или людьми, с продуктом примитивного воображения или существами из плоти и крови. Следует обратить внимание на то, что мифы всегда говорят о группе цивилизаторов: и у Виракочи, и у Кецалькоатля, и у Осириса есть некие «спутники». Иногда внутри этой группы возникают жестокие внутренние конфликты, возможно, борьба за власть; наглядными примерами таких конфликтов являются битвы между Сетом и Гором, между Тескатлипокой и Кецалькоатлем. Причем независимо от того, где развертываются мифические события — в Центральной Америке, Андах или Египте, — исход всегда один и тот же: возникает заговор против цивилизатора, и его или изгоняют, или убивают.

Мифы гласят, что Кецалькоатль и Виракоча не вернулись (хотя, как мы видели, их возвращения в Америку продолжали ожидать еще во времена Конкисты). Что касается Осириса, то он вернулся. Хотя Осирис пал жертвой Сета вскоре после завершения своей всемирной миссии с целью заставить людей «отказаться от дикости», впоследствии он обрел вечную жизнь и вознесся в созвездие Ориона уже в качестве всемогущего бога мертвых. Будучи верховным судьей загробного мира и подавая бессмертный пример ответственного и великодушного царствования, он доминировал в религии (и культуре) Древнего Египта на протяжении всей его истории.

Безмятежная стабильность

Кто может предположить, каких высот достигли бы цивилизации в Андах и Мексике в условиях подобной преемственности? Египет уникален в этом отношении. Хотя в Текстах пирамид и других древних источниках упоминается о периоде разрухи и попытке узурпации власти Сетом (с семьюдесятью двумя «прецессионными» заговорщиками), переход к правлению Гора, Тота и следующих божественных фараонов описан как сравнительно мирный и неизбежный.

В дальнейшем этот переход в течение тысячелетий имитировался смертными царями Египта. С начала и до конца они рассматривали себя как прямых наследников и живое воплощение Гора, сына Осириса. Одно поколение приходило на смену другому, но каждый раз считалось, что усопший фараон возрождается на небесах как «Осирис», а каждый наследник престола становится «Гором».

Эта простая, отработанная и устойчивая схема полностью сложилась уже в самом начале Первой Династии, около 3100 года до нашей эры. Ученые это признают; большинство из них также допускают, что здесь мы имеем дело с высокоразвитой и изощренной религией. Странно, но лишь очень немногие египтологи и археологи задаются вопросом, где и когда сформировалась эта религия.

Не кажется ли слишком нелогичным, что такая совершенная система социальных и метафизических идей, как культ Осириса, могла вдруг возникнуть в полностью оформленном виде к 3100 году до нашей эры или даже сформироваться в течение 300 лет, как иногда допускают египтологи? Для создания подобной системы требуется гораздо больше времени — скорее тысячи, а не сотни лет. Там, где древние египтяне непосредственно говорят о своем прошлом, утверждается, что цивилизация досталась им в наследство от «богов», которые были «первыми, кто правил в Египте».

Документальные свидетельства не вполне согласуются друг с другом: одни приписывают египетской цивилизации гораздо больший возраст, чем другие. Однако все они ясно и недвусмысленно обращают наше внимание на весьма отдаленную эпоху, от 8000 до 40 000 лет до основания Первой Династии.

Археологи настаивают, что в Египте не было найдено вещественных доказательств, которые подтверждали бы существование развитой цивилизации в столь далеком прошлом. Строго говоря, это не так. Как мы могли убедиться в части VI, существует ряд предметов и сооружений, которые пока не были датированы научными средствами.

Древний город Абидос хранит одну из самых необыкновенных загадок, еще не поддающихся датировке.

Глава сорок пятая
ДЕЛА ЛЮДЕЙ И БОГОВ

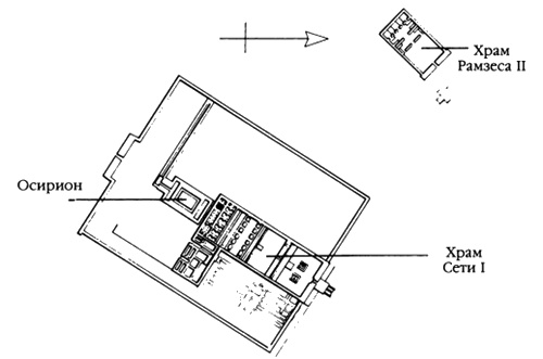
Среди множества разрушенных древнеегипетских храмов есть один, который уникален не только степенью сохранности (у него даже уцелела кровля, что встречается особенно редко), но и превосходным качеством и обилием барельефов, украшающих его высокие стены. Это расположенный в Абидосе, в 13 километрах от современного русла Нила, храм Сети I, монарха из знаменитой Девятнадцатой Династии, правившего с 1306 по 1290 год до нашей эры.

Сети в основном известен как отец знаменитого Рамзеса II (1290–1244 гг. до н. э.), фараона, которого связывают с библейским Исходом. Но он и сам по праву может считаться крупной исторической фигурой: он много воевал за пределами Египта и потратил много сил на сооружение нескольких прекрасных зданий и добросовестную реставрацию многих старинных построек. Его храм в Абидосе, который носит волнующее название «Дома миллионов лет», был посвящен Осирису, Владыке Вечности, о котором в Текстах пирамид сказано так:

«Ты ушел, но вернешься, ты уснул, но проснешься, ты умер, но будешь жить… Отправься к водному пути, поплыви вверх по течению… Соверши путешествие вокруг Абидоса в облике духа, дарованном тебе богами».

Корона Атефа

В восемь утра — яркий и свежий час в этих широтах — я погрузился в сумрачную тишину храма Сети I. Его стены были частично подсвечены снизу маломощными электрическими лампами; кроме них, единственным источником света были предусмотренные архитекторами фараона немногочисленные проемы в каменной кладке, через которые внутрь здания проникали, подобно божественному сиянию, столбы солнечного света. Пробираясь среди пылинок, танцующих в солнечных лучах, сквозь тяжелую неподвижность воздуха, заполняющего Гипостильный зал с огромными, поддерживающими крышу колоннами, легко вообразить, что здесь до сих пор присутствует дух Осириса. На самом деле одним воображением дело не ограничивается. Осирис присутствует здесь физически — в потрясающей симфонии барельефов, украшающих стены, хранящих на протяжении веков образ царя-цивилизатора, бога мертвых, сидящего на троне в обществе своей прекрасной и таинственной сестры Исиды.

Иллюстрация к книге — Следы богов [i_115.jpg]

Абидос


На голове Осириса можно увидеть самые разнообразные и причудливые короны, которые я внимательно разглядывал, переходя от барельефа к барельефу. Короны, похожие на изображенные здесь, всегда были важной частью гардероба фараонов Древнего Египта — по крайней мере, судя по количеству изображающих их барельефов. Как это ни странно, но за все годы интенсивных раскопок археологам не удалось найти ни одной царской короны или хотя бы ее фрагмента, не говоря уже об изогнутом церемониальном головном уборе, в каких изображались боги Первого Времени.

Особый интерес представляла собой корона Атефа. В ее состав входил урей, царский символ в виде змеи. В Мексике сходную роль играло изображение гремучей змеи, в Египте же это была кобра с развернутым капюшоном, готовая к нападению. Центральную часть этого замысловатого головного убора представлял хеджет, белый боевой шлем Верхнего Египта, имеющий форму кегли и тоже известный только по барельефам. По обе стороны этого шлема шли тонкие металлические пластины, а впереди красовалось устройство из двух волнистых лопастей, которое ученые обычно описывают как пару бараньих рогов.

Вход
Поиск по сайту
Ищем:
Календарь