Книга Всеобщая история архитектуры и строительной техники. Учебник. В 3 частях. Часть 1. История архитектуры и строительной техники Древнего и античного мира, страница 63 – Татьяна Забалуева

Авторы: А Б В Г Д Е Ж З И Й К Л М Н О П Р С Т У Ф Х Ч Ш Ы Э Ю Я
Книги: А Б В Г Д Е Ж З И Й К Л М Н О П Р С Т У Ф Х Ц Ч Ш Щ Ы Э Ю Я
Бесплатная онлайн библиотека LoveRead.ec

Онлайн книга «Всеобщая история архитектуры и строительной техники. Учебник. В 3 частях. Часть 1. История архитектуры и строительной техники Древнего и античного мира»

📃 Cтраница 63
Иллюстрация к книге — Всеобщая история архитектуры и строительной техники. Учебник. В 3 частях. Часть 1. История архитектуры и строительной техники Древнего и античного мира [i_131.jpg]

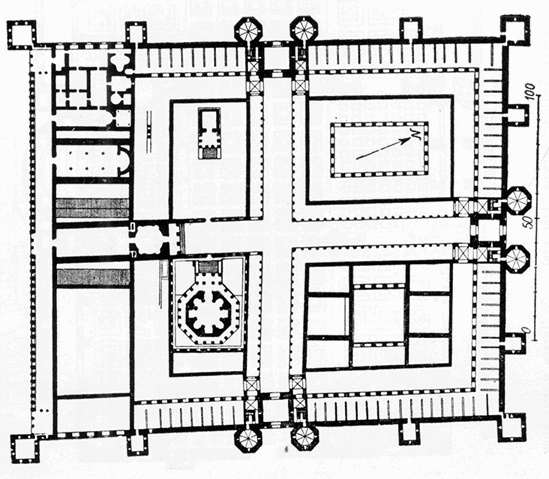
Рис. 9.40. Термы Каракаллы (Рим, Италия). План: а – главный вход; б – номерные бани; в – ксист – открытое пространство для прогулок; г – входы; д – вестибюли; е – раздевальни; ж – залы перед фригидарием; з – фригидарий; и – главный зал; к – тепидарий; л – кальдарий; м – залы для отдыха после бань; н – палестры; о – боковые залы; п – экседры; р – проходные залы; с – глубокие бассейны; т – банное помещение с бассейном; у – дворы с резервуаром для воды; ф – дворы с отопительными устройствами; х – стадий; ц – залы для культурных развлечений; ч – нимфей; ш – перистили; щ – глубокие бассейны; э – полукруглые портики; ю – отстойник


Термы были оснащены по последнему слову технических достижений своего времени и снабжались водой от ветки Марциева водопровода. Для бесперебойной работы были сооружены отстойники для воды, состоявшие из 64 ячеек и обладавшие огромной вместимостью – до 33000 м³. Комбинация внутреннего водопровода и канализации позволяла очень быстро менять воду в любом банном бассейне; наиболее крупным был бассейн фригидария вместимостью около 1500 м³.

Термы прекрасно отапливались с помощью системы центрального отопления и гипокауста. Большое внимание уделялось ориентации комплекса в целом и его отдельных частей по сторонам света. Прежде всего, весь комплекс ориентировался по сторонам света не своими сторонами, а углами так, чтобы каждая сторона получала максимум света и ни одна не была бы лишена солнца. Тот фасад, который нуждался в наибольшем количестве солнечного тепла, а именно ротонда кальдария, был обращен на юго-запад. Фригидарий с холодной водой смотрел на северо-восток. На северо-восток обращены были и трибуны для зрителей стадия, с тем чтобы яркое южное солнце не мешало наблюдать за соревнованиями. Множество помещений для библиотек, лекций, бесед и прочих культурных развлечений также выходили на северо-восточную сторону.

В противоположность Пантеону, термы являлись светским зданием. Все требования светского здания с замкнутыми внутренними пространствами были обеспечены в императорских термах: возможность вместить огромные массы народа, организация комфортной среды с функциональной логикой построения объемно-планировочного решения для удобства многочисленных посетителей, применение сводчатых покрытий, римского бетона и конструктивных систем, обеспечивающих прочность и устойчивость всего огромного сооружения, и, наконец, оборудование здания инженерными системами водоснабжения, отопления и канализации. Это поставило термы в ряд наиболее выдающихся архитектурных произведений, ознаменовавших собой еще один шаг в освоении внутреннего замкнутого пространства. В отличие от Пантеона, в термах удалось приблизить огромный масштаб внутреннего пространства к масштабу человека за счет организации светского интерьера и общей направленности архитектуры.

9.4.5. Позднеримская архитектура

Последняя четверть III в. ознаменовалась глубоким хозяйственным и социальным кризисом. Страна была ввергнута в бесконечные гражданские войны. Закончился Римский мир (pax romana), который обеспечивал всестороннее развитие общества. Земля еще более концентрировалась в руках крупных землевладельцев. Большие массы населения окончательно нищали. Обстановка настолько накалилась, что начали возводиться защитные стены как в частных владениях, так и вокруг самого Рима. Так, в 271–276 гг. были возведены Аврелианские стены, по имени правившего в то время императора Аврелиана (вкл., рис. 193).

На фоне постоянных междоусобиц и нестабильного состояния всего общества люди начали искать спасения во всевозможных вероучениях, среди которых уже сформировавшееся христианство занимает главенствующие позиции.

Христианство продолжает преследоваться, но при этом становится еще более притягательным. Кризис в III в. окончательно расшатал единство империи, и Диаклетиану пришлось разделить ее на Западную и Восточную. Еще в Iv в. центр империи находился на западе, но постепенно основная жизнь государства переносилась в Константинополь – новую восточную столицу. Для западной части были характерны прежние традиционные устои, а восточная восприняла тенденции централизованных восточных деспотий. Константин Великий продолжил начинания отца, признал христианство официальной религией и завершил процесс становления феодального государства. Западная Римская империя под натиском варваров прекратила свое существование в 476 г.

Иллюстрация к книге — Всеобщая история архитектуры и строительной техники. Учебник. В 3 частях. Часть 1. История архитектуры и строительной техники Древнего и античного мира [i_132.jpg]

Рис. 9.41. Дворец Диоклетиана в Спалато (Сплит, Хорватия)

Иллюстрация к книге — Всеобщая история архитектуры и строительной техники. Учебник. В 3 частях. Часть 1. История архитектуры и строительной техники Древнего и античного мира [i_133.jpg]

Рис. 9.42. Дворец Диоклетиана. План

Иллюстрация к книге — Всеобщая история архитектуры и строительной техники. Учебник. В 3 частях. Часть 1. История архитектуры и строительной техники Древнего и античного мира [i_134.jpg]

Рис. 9.43. Мавзолей Диоклетиана в его дворце в Спалато. Разрез. Реконструкция (Сплит, Хорватия)


Последним значительным светским сооружением Западного Рима был дворец Диоклетиана в Спалато (или современном Сплите) на берегу Адриатического моря (рис. 9.41). Дворец был построен в 284–305 гг. Общая обстановка в государстве способствовала тому, что дворец был построен с мощными защитными стенами, что было не характерно для римской архитектуры. Дворец больше походил на крепость, чем на дворцы прежних императоров, которые были полностью открыты в природу, как, например, вилла Адриана в Тиволи (вкл., см. рис. 188, 189). Вся схема плана дворца (рис. 9.42) свидетельствует не о живописности, свойственной виллам, а о регулярной планировке римских военных лагерей. Площадь дворца огромна – 180×210 м. Дворец-город был разделен двумя пересекающимися под прямым углом улицами шириной 11 м. В него вели три входа, оформленные восьмигранными башнями. Южная сторона дворца с апартаментами императора выходила на море.

Вход
Поиск по сайту
Ищем:
Календарь