Онлайн книга «Всеобщая история архитектуры и строительной техники. Учебник. В 3 частях. Часть 1. История архитектуры и строительной техники Древнего и античного мира»
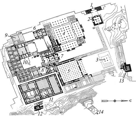
![]() Рис. 5.5. Схема плана дворцового ансамбля в Персеполе: 1 – входная лестница; 2 – ворота Ксеркса; 3 – недостроенные ворота; 4 – ападана; 5 – тронный зал, или «зал ста колонн»; 6 – дворец Дария; 7 – трипидон, или зал совета; 8 – гарем Ксеркса; 9 – дворец Н; 10 – дворец Ксеркса; 11 – сокровищница; 12 – остатки восточной стены; 13 – остатки северной стены; 14 – гробница Артаксеркса II ![]() Рис. 5.6. Дворец в Фирозабаде: а – разрез; б – план Вторым по значимости сооружением в комплексе Персеполя был огромный Стоколонный зал, построенный Артаксерксом II (405–359 гг. до н. э.). В архитектуре этого дворца продолжает развиваться та же традиция дематериализации внутреннего пространства, что и во дворце Ксеркса. Наиболее значимый памятник эпохи Сасанидов – дворец в Ктесифоне, построенный царем Хосровом II (591–628 гг.). Архитектура сасанидского периода коренным образом отличается от построек эпохи Ахеменидов. Дворцы этого периода перекрыты сводами, а не плоскими покрытиями. Это объясняется тем, что дерево по-прежнему было доступно исключительно правителям. Даже аристократия не смела претендовать на столь дорогостоящий материал. Необходимость перекрывать внутренние пространства без применения деревянных балок обусловила использование сводчатых конструкций из кирпича и камня. Причем основным принципом их возведения оставался принцип возведения без кружал [29]. Этот прием пришел из строительства жилых построек еще ахеменидского периода. Если во дворце в Фирозабаде при повсеместном использовании сводчатых конструкций покрытий (рис. 5.6, а) еще чувствуется расчлененность внутреннего пространства на мелкие помещения (рис. 5.6, б), восходящие своими формами и размерами к древнему жилищу, то дворец в Ктесифоне предстает как комплекс больших свободных помещений, перекрытых цилиндрическими сводами (рис. 5.7). Все помещения имеют простую форму и отделены друг от друга массивными стенами. Грандиозные залы со сводчатыми покрытиями этого дворца явились вершиной развития сводчато-купольных форм не только Персии, но и всего региона Передней Азии. ![]() Рис. 5.7. Реконструкция дворца в Ктесифоне Глава 6. Архитектура и строительство Древней Индии
Вся история индийской цивилизации на первый взгляд не имеет ничего общего с ближневосточно-средиземноморской культурой. Это подтверждается даже самым поверхностным изучением культурных традиций народов, населяющих территории Индостана. Вплоть до XVII в. в архитектуре и строительном деле Индии использовались лишь эмпирические способы строительства. При изучении мировой истории архитектуры это огромное государство с уверенностью можно отнести к древним восточным деспотиям, если исходить из отношения к строительному делу, которое отличало древние эпохи по всему Восточно-Средиземноморскому региону. Однако по архитектурно-композиционным и пластическим традициям Индия отличается очевидным своеобразием. В чем же ее уникальность? Как именно формировалась индийская цивилизация? Самые ранние очаги урбанистической культуры и первые протогосударства возникли в Северной Индии, в долине Инда, в III тыс. до н. э. Они представлены культурами Хараппы и Мохенджо-Даро. Осталось очень мало свидетельств той эпохи, хотя по некоторым письменным источникам и археологическим находкам, а также на основании религиозно-философских источников можно судить об образе жизни древних индийцев, их верованиях и представлениях. Археологи полагают, что заселение этих районов шло с севера через территории Ирана и Афганистана. В VI–Iv тыс. до н. э. появились первые неолитические поселения в долине Инда, а к XXIV в. до н. э. принадлежат памятники развитой городской культуры, которые были обнаружены в Хараппе и Мохенджо-Даро. Археологические раскопки открыли кирпичные дома, дворцы, цитадели, зернохранилища. Были обнаружены бассейны с хорошо организованной системой отвода воды. Удалось отыскать сооружение типа верфи, соединенное каналом с рекой. Подобные сооружения свидетельствуют о высоком уровне градостроительства и, соответственно, всей урбанистической цивилизации. Вместе с тем раскопки говорят и о высоком уровне развития ремесла, включая литье из бронзы. Подтверждается наличие торговых связей с более развитым Двуречьем. Хотя необходимо отметить, что ни одна из культур, соприкоснувшихся с культурой Индии, например, такая развитая, как греческая, которая могла бы оставить значительный след с приходом Александра Македонского, не сумела оказать сколь бы то ни было заметного влияния на индийскую цивилизацию. К сожалению, строительство тех далеких времен в Индии отличалось недолговечностью, вследствие чего исследования всегда были сильно затруднены. Культура Хараппы и Мохенджо-Даро просуществовала почти четыре века, расцвела и неожиданно угасла по неустановленным причинам. На смену пришли индоарии, которые через несколько веков положили начало совершенно новому цивилизационному образованию в долине реки Ганг. С этих времен можно выделить три главных периода в истории Индии и соответствующие им архитектурные периоды. Первый относится к I тыс. до н. э. и заканчивается в 250 г. до н. э. Он носит название древнебрахманского и почти не сохранил о себе памятников. Это период империи Маурьев. Второй – период буддизма, растянувшийся почти на тысячу лет с 250 г. до н. э. по 750 г. н. э. Время расцвета Кушанского царства и государства Гуптов. Третий период называется новобрахманским, он длился вплоть до XIII в., когда Индия была завоевана мусульманами, которые привнесли в строительство многие приемы мусульманского мира, но при этом настолько впитали традиционные черты индийской культуры, что в последующие годы мусульманская Индия оставила замечательные памятники зодчества, отличающиеся причудливым симбиозом обеих культур. |
![Иллюстрация к книге — Всеобщая история архитектуры и строительной техники. Учебник. В 3 частях. Часть 1. История архитектуры и строительной техники Древнего и античного мира [i_042.jpg] Иллюстрация к книге — Всеобщая история архитектуры и строительной техники. Учебник. В 3 частях. Часть 1. История архитектуры и строительной техники Древнего и античного мира [i_042.jpg]](img/book_covers/079/79019/i_042.jpg)
![Иллюстрация к книге — Всеобщая история архитектуры и строительной техники. Учебник. В 3 частях. Часть 1. История архитектуры и строительной техники Древнего и античного мира [i_043.jpg] Иллюстрация к книге — Всеобщая история архитектуры и строительной техники. Учебник. В 3 частях. Часть 1. История архитектуры и строительной техники Древнего и античного мира [i_043.jpg]](img/book_covers/079/79019/i_043.jpg)
![Иллюстрация к книге — Всеобщая история архитектуры и строительной техники. Учебник. В 3 частях. Часть 1. История архитектуры и строительной техники Древнего и античного мира [i_044.jpg] Иллюстрация к книге — Всеобщая история архитектуры и строительной техники. Учебник. В 3 частях. Часть 1. История архитектуры и строительной техники Древнего и античного мира [i_044.jpg]](img/book_covers/079/79019/i_044.jpg)