Книга Линейные корабли типов «Лайон» и «Вэнгард», страница 15 – Владимир Кофман

Авторы: А Б В Г Д Е Ж З И Й К Л М Н О П Р С Т У Ф Х Ч Ш Ы Э Ю Я
Книги: А Б В Г Д Е Ж З И Й К Л М Н О П Р С Т У Ф Х Ц Ч Ш Щ Ы Э Ю Я
Бесплатная онлайн библиотека LoveRead.ec

Онлайн книга «Линейные корабли типов «Лайон» и «Вэнгард»»

📃 Cтраница 15

Другие недостатки были связаны с конструкцией башни. Ее лобовая плита имела явно недостаточную толщину - 229 мм. Также слишком тонкой для защиты от навесного огня и авиабомб считалась и крыша (114 мм). Предельный угол возвышения не обеспечивал стрельбу на дистанциях свыше 12 миль. Пламянепроницаемость башни (сконструированной еще до уроков Ютланда) также не удовлетворяла меркам 40-х годов. Наконец, установленные в башнях 4,6- метровые дальномеры совершенно не соответствовали возросшим стандартам управления огнем.

Однако большинство из этих недостатков удалось устранить в ходе модернизации установки. Лобовую плиту заменили на 343-мм, в которой были прорезаны более высокие амбразуры, обеспечившие угол возвышения 30 гр. Ввиду того, что в башне применялась естественная балансировка орудий по центру тяжести, цапфы находились на порядочном расстоянии от наклонной лобовой плиты, хотя на казенную часть был навешен дополнительный груз-противовес. При этом порты получились довольно большими, и их пришлось прикрыть сверху специальными броневыми крышками. Заменили также крышу, которая теперь состояла из нецементированных крупповских плит толщиной 152 мм. С крыши была убрана смотровая башенка командира, которая на практике ограничивала возможности ведения огня из возвышенных установок по диаметральной плоскости, поскольку орудийные газы приводили к контузиям. Был усилен и пол башни (с 51 мм до 76 мм), что, однако, не связывалось с улучшением защиты, а вызывалось необходимостью правильного распределения веса установки, баланс которой был нарушен тяжелой лицевой плитой. Сама башня и подачи оборудовались дополнительными предохранительными экранами против пламени. Улучшилось и оборудование: 4,6-м дальномеры уступили место 9-метровым, и впервые в британском флоте башни имели дистанционное управление для наведения в горизонтальной плоскости. Обитаемость также улучшилась за счет монтажа поглотителей влаги. Новые установки могли использовать модернизированные снаряды весом 879 кг с большим радиусом головной части, имевшие большую длину. Кроме того, станины, цапфы и противооткатные устройства были рассчитаны на применение усиленных зарядов весом в 220,4 кг (кордит марки SC-300). Теоретически это позволяло увеличить начальную скорость старой пушки до 805 /м/сек, однако благоразумие и экономия (при усиленном заряде ствол выгорал значительно быстрее) заставили на практике отказаться от этой меры. В боезапас линкора усиленные заряды не включались, однако следует помнить, что он вошел в строй уже в мирное время, и неизвестно, как сложились бы дела в случае возможности боя с сильно бронированным противником. "Штатная" начальная скорость модернизированного орудия составляла 785 м/сек. Но даже при ней удалось достичь вполне приемлемых характеристик: по пробиваемости брони на дальних дистанциях обновленное 381-мм орудие почти не уступало 406-мм пушке "Нельсона", а при использовании усиленного заряда даже несколько превосходило ее. При сравнении с 356-мм орудием, составлявшим главное вооружение типа "Кинг Джордж V", наблюдается заметный выигрыш на всех дистанциях. Однако зарубежные 15-дюймовки (за исключением немецких) имели лучшую баллистику.


Сравнительные данные по пробиваемости брони английским орудиями времен 2-й мировой войны

Орудие 381 мм 406 мм 406 мм
марка, тип Mk IA Mk I Mk II
Дистанция . Вэнгард Нельсон Лайон
50 каб 421/32
75 каб 353/50 366/49 449/36
100 каб 297/79 310/72 389/82
125 каб 259/109 261/99 335/112
150 каб 229/145 224/130 292/143

(Расчетная пробиваемость вертикальной/ горизонтальной крупповской брони в мм на дистанции в каб.).

Иллюстрация к книге — Линейные корабли типов «Лайон» и «Вэнгард» [img_28.jpg]

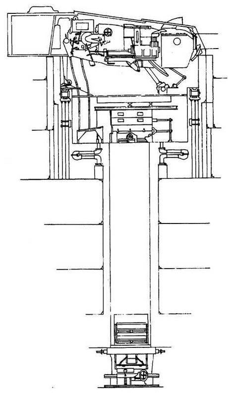
Башня Mk IN


В результате всех изменений вес башни (вместе со вращающейся подбашенной частью подачи) составил 855 т - на 20 т больше, чем по проекту. Еще около 70 т добавили более мощные гидравлические приводы и столько же или даже чуть больше - жидкий носитель и масло, не включенные в "итоговый вес" по первоначальному проекту. (Общий вес башни с механизмами, установленными в снарядном погребе, по корабельному формуляру составил 904 т, из которых около 200 т приходилось на собственно пушки). Максимальная скорость горизонтальной наводки равнялась 2°/сек. Вертикальная наводка производилась быстрее - до 5°/сек, что связано с меньшей перемещаемой массой. Важным новшеством явилось полноценное дистанционное управление башнями главного калибра - единственное в этом роде в британском флоте. Техническая скорострельность не изменилась по сравнению с удачным в этом отношении прототипом и составляла 2 выстрела в минуту. Новая установка получила обозначение Mk IN - то же, что и модернизированные башни линкоров и линейных крейсеров, проходивших переоборудование в 30-е годы. Впрочем, внутренней устройство самой башни за 10 лет практически не изменилось, чего нельзя сказать о устройстве подачи.

Неприятным моментом, связанным с применением готовой установки 25-летней давности стало расположение зарядных и снарядных погребов. Во времена создания башни Mk I хранилища снарядов располагались у самого днища корабля, а зарядные погреба - над ними. Ко второй мировой войне стандартным стало прямо противоположное размещение. Конструкторы стремились удалить чрезвычайно опасные кордитные заряды как можно дальше от вражеских снарядов. Перед проектировщиками "Вэнгарда" встала почти неразрешимая задача, поскольку система подачи соответствовала старым стандартам, а менять ее было бы долго, дорого и хлопотно. В результате пришлось пойти на странный компромисс. Главный зарядный погреб остался на самой нижней платформе, но в дополнение к нему оборудовали перегрузочное отделение по загрузке зарядов в подачу, расположенное над снарядным погребом. Такое решение позволяло оставить старые механизмы и устройства подачи, одновременно максимально обезопасив основную массу кордита от взрыва или воспламенения. Небольшое количество зарядов, находившихся в любой момент времени в перегрузочном отделении, не могло вызвать серьезного пожара. Для дополнительной безопасности это отделение оборудовалось пламянепроницаемыми дверями сверху и снизу, а заряды перемещались в него в специальных пеналах - полезная практика, спасшая от взрыва несколько крупных германских боевых кораблей еще в Ютланде и Доггер- банке.

Реклама
Вход
Поиск по сайту
Ищем:
Календарь