Онлайн книга «Легкие крейсера Японии. 1917-1945 гг.»
|
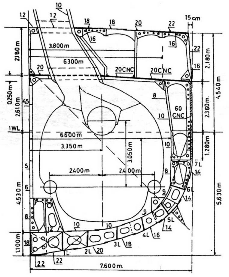
Корпус корабля спроектировали гладкопалубный с бульбообразным носом. Броневую защиту ограничили бортовым поясом 56 мм (у машинного отделения) и 50 мм (у погребов боезапаса). Горизонтальная броня имела толщину всего 18 мм, башни защитили только от осколков. Главная энергетическая установка включала в себя 4 турбины, работающие на 4 вала, и 6 котлов. Ее мощность при скорости хода 35 узлов достигала 100000 л.с. ![]() Легкие крейсера типа “Агано” (Конструктивный мидель-шпангоут) ![]() Легкие крейсера типа “Агано” (Теоретический чертеж корпуса) Как и “Юбари”, и в противоположность всем другим легким крейсерам, эти корабли имели по одной дымовой трубе. В процессе строительства на крейсера были поставлены 152-мм орудия с длиной ствола 50 калибров, спроектированные как вспомогательная артиллерия линейных крейсеров типа ‘'Конго”. Эти орудия системы Виккерса стреляли снарядами весом 45,4 кг на максимальную дистанцию 21000 м. Двухорудийные башни, из готовленные на заводе в Сасебо, обеспечивали возвышение ствола до 55° и ведение заградительного зенитного огня. Кроме того, крупнокалиберная зенитная артиллерия была представлена четырьмя 76-мм орудиями с длиной ствола 69 калибров, установленными на двух спаренных лафетах, которые стреляли снарядами весом 6 кг. В Императорском флоте Японии в качестве тяжелой зенитной артиллерии использовалась только эта модель. Легкая артиллерия каждого крейсера состояла из 32 25-мм автоматов — учитывался опыт войны, показавший, как велика была угроза с воздуха. Так же как, и на эсминцах, торпедные аппараты установили в диаметральной плоскости корабля. Они имели систему быстрой перезарядки, и на каждую торпедную трубу приходилось по 4 запасные торпеды. Единственная катапульта для самолетов располагалась у миделя, перед грот-мачтой, а два гидросамолета — на специальной платформе над торпедными аппаратами. Как и на эсминцах, на этих крейсерах имелись установки для сбрасывания глубинных бомб. В 1940 г. пересмотренная кораблестроительная программа включала строительство 4 кораблей этого типа, трех на верфи в Сасебо и одного в Йокосука. В установленные сроки был построен только головной корабль серии. Остальные три из-за усиливавшегося упадка экономики Япониии и блокады строились замедленными темпами. В начале 1944 г. легкая зенитная артиллерия каждого корабля была усилена 26 25-мм автоматами, а в июле 1944 г. два уцелевших крейсера имели уже 52, а позже и 61 ствол (10 3-х ств., 31 1-х ств.). За исключением “Агано”, корабли уже в процессе строительства получили радары. Головной корабль “Агано” оказался “невезучим”, вступив в строй 31 октября 1942 г., он, естественно, не мог участвовать в триумфальной экспансии японцев на юге Тихого океана. Всего через месяц у Рабаула “Агано” подвергся авианалету американцев и с повреждениями средней тяжести направлялся на буксире на остров Трук для ремонта. 12 ноября его обнаружила американская подлодка “Скэмп” (командир лейтенант-коммандер Эберт), поразивший крейсер торпедой, в результате чего “Агано” вышел из строя почти на год. После ремонта осенью 1943 г. он принял участие в бою у острова Бугенвиль, в заливе Императрицы Августы. В бою, произошедшем ![]() Легкий крейсер “Агано”. 1942 г. (Наружный вид и вид сверху) ![]() Легкие крейсера типа “Агано” (Теоретический чертеж корпуса) ![]() Легкие крейсера типа “Агано” (Планы палуб, продольный разрез и поперечные сечения корпуса с указанием бронирования) ![]() Легкий крейсер “Яхаги” (Продольный разрез корпуса) ![]() Легкие крейсера типа “Агано”. 1939 г. (Продольный разрез, вид сверху и планы палуб) ![]() Легкий крсиссу “Агано”. 1943 г. 2 ноября “Агано” с эсминцами "‘Наганами”, “Хацукадзе” и “Вакацуки” составлял охранение правого фланга, которым командовал контр- адмирал Осуги. Тактика, которой следовал Осуги, была позже осуждена японцами как ошибочная, слишком пассивная; он лишь автоматически и подчас неуверенно повторял действия центральной группы кораблей, в то время как на его колонну сыпались снаряды с четырех тяжелых крейсеров и восьми эсминцев американского контр-адмирала Меррила. Все японские корабли получили попадания, “Агано” отделался легкими повреждениями, но легкий крейсер “Сендай” и эсминец “Хацукадзе" были потоплены, а из американских кораблей ни один не был потоплен. Когда после боя “Агано” прибыл в роковой для себя Рабаул, порт 5 ноября 1943 г. подвергся налету американскими самолетами с авианосцев. Крейсер получил попадание авиаторпедой, которая оторвала часть его кормы. Но “Агано” остался на плаву, был снова отремонтирован и в начале 1944 г. вернулся в строй. Когда американцы произвели рейд на остров Трук, готовясь к его захвату, “Агано” находился в этом районе. 16 февраля 1944 г. его обнаружила американская подлодка “Скейт”. Все четыре выпущенные ею торпеды попали в цель, и “Агано” пошел на дно. Бои подводной лодки “Скэйт” с крейсером “Агано” (Из книги Т. Роско Боевые действия подводных лодок США во второй мировой войне. М., “Иностранная Литература”. 1957.) Легкий крейсер “Агано” был одним из наиболее активных крейсеров японского военно-морского флота. Это был новый, быстроходный корабль, который во время его крейсерства в 1943 году в южной части Тихого океана принимали иногда за “карманный” линкор, а иногда за тяжелый крейсер типа “Како”. И, когда в конце дня 16 февраля его надстройки показались на горизонте, командир подводной лодки “Скэйт” тоже решил, что перед ним тяжелый японский крейсер. Это был первый самостоятельный поход командира лодки. “Агано”, разумеется, был такой целью, которую ни один новичок не хотел бы упустить. |
![Иллюстрация к книге — Легкие крейсера Японии. 1917-1945 гг. [img_165.jpg] Иллюстрация к книге — Легкие крейсера Японии. 1917-1945 гг. [img_165.jpg]](img/book_covers/077/77632/img_165.jpg)
![Иллюстрация к книге — Легкие крейсера Японии. 1917-1945 гг. [img_166.jpg] Иллюстрация к книге — Легкие крейсера Японии. 1917-1945 гг. [img_166.jpg]](img/book_covers/077/77632/img_166.jpg)
![Иллюстрация к книге — Легкие крейсера Японии. 1917-1945 гг. [img_167.jpg] Иллюстрация к книге — Легкие крейсера Японии. 1917-1945 гг. [img_167.jpg]](img/book_covers/077/77632/img_167.jpg)
![Иллюстрация к книге — Легкие крейсера Японии. 1917-1945 гг. [img_168.jpg] Иллюстрация к книге — Легкие крейсера Японии. 1917-1945 гг. [img_168.jpg]](img/book_covers/077/77632/img_168.jpg)
![Иллюстрация к книге — Легкие крейсера Японии. 1917-1945 гг. [img_169.jpg] Иллюстрация к книге — Легкие крейсера Японии. 1917-1945 гг. [img_169.jpg]](img/book_covers/077/77632/img_169.jpg)
![Иллюстрация к книге — Легкие крейсера Японии. 1917-1945 гг. [img_170.jpg] Иллюстрация к книге — Легкие крейсера Японии. 1917-1945 гг. [img_170.jpg]](img/book_covers/077/77632/img_170.jpg)
![Иллюстрация к книге — Легкие крейсера Японии. 1917-1945 гг. [img_171.jpg] Иллюстрация к книге — Легкие крейсера Японии. 1917-1945 гг. [img_171.jpg]](img/book_covers/077/77632/img_171.jpg)
![Иллюстрация к книге — Легкие крейсера Японии. 1917-1945 гг. [img_172.jpg] Иллюстрация к книге — Легкие крейсера Японии. 1917-1945 гг. [img_172.jpg]](img/book_covers/077/77632/img_172.jpg)