Книга Японские тяжелые крейсера.Том 1: История создания, описание конструкции, предвоенные модернизации., страница 49 – Сергей Сулига

Авторы: А Б В Г Д Е Ж З И Й К Л М Н О П Р С Т У Ф Х Ч Ш Ы Э Ю Я
Книги: А Б В Г Д Е Ж З И Й К Л М Н О П Р С Т У Ф Х Ц Ч Ш Щ Ы Э Ю Я
Бесплатная онлайн библиотека LoveRead.ec

Онлайн книга «Японские тяжелые крейсера.Том 1: История создания, описание конструкции, предвоенные модернизации.»

📃 Cтраница 49
Могами” (1935 г.) “Кумано” (1937 г.)
Главные размерения, м 197x18x5,5 198x20,2x5,9
Коэффициент полноты водоизмещения 0,5587 0,5560
Цилиндрический коэффициент продольной полноты 0,6310 0,6325
Коэффициент полноты мидель-шпангоута 0,8855 0,8770
Коэффициент полноты ватерлинии 0,7340 0,7300
Максимальная погруженная площадь в средней части 88 м2 105 м2 ~1
Отношение длины к ширине 10,944 9,81
Отношение осадки к длине 0,0279 0,0298
Отношение ширины к осадке 3,2750 3,4250

Величина шпаций (от носового перпендикуляра к корме)

Размер шпации “Могами”/”Микума” “Судзуя”/”Кумано"
I 600 мм 29,4 м до шп.49 29,4 м шп. 49
j 900 мм (под погребами) 32,4 м от шп.49 до шп.85 36,32 м от шп.49 до шп.89
i 1120 и 1050 мм (под КО) 44,25 м от шп.85 до шп.125 40,32 м от шп.89 до шп.125
j 1200 и 1110 (под МО) 33,9 от шп.125 до шп.155 33,9 от шп.125 до шп.155
900 и 760 мм (под погребами) 21,46 ми от шп.155 до шп.179 21,46 ми от шп.155 до шп.179
600 мм 35,6 м от шп.179 до ахтерштевня 35,6 м от шп.179 до ахтерштевня

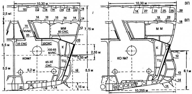
ПОПЕРЕЧНЫЕ СЕЧЕНИЯ “МОГАМИ” ПО 114-му ШПАНГОУТУ (КО №7, правый борт)

слева - после достройки в 1935 году;

справа - после второй модернизации 1937 года

Иллюстрация к книге — Японские тяжелые крейсера.Том 1: История создания, описание конструкции, предвоенные модернизации. [img_51.jpg]

ММ - механическая мастерская, К - коридор для кабелей, ТЦ - топливная цистерна; толщины плит брони и набора в мм


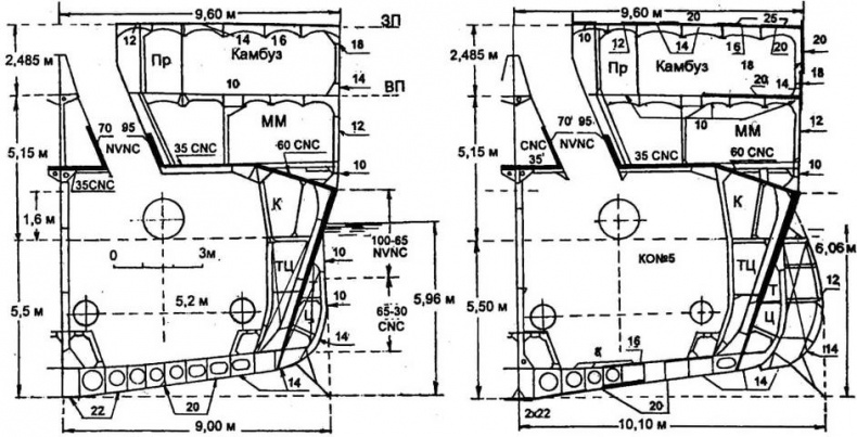
ПОПЕРЕЧНЫЕ СЕЧЕНИЯ “СУДЗУЯ” ПО 114-му ШПАНГОУТУ (КО №5, правый борт)

слева - после достройки в 1935 году;

справа - после второй модернизации 1937 года

Иллюстрация к книге — Японские тяжелые крейсера.Том 1: История создания, описание конструкции, предвоенные модернизации. [img_52.jpg]

ММ - механическая мастерская, Пр - проход, К - коридор для кабелей, ТЦ - топливная цистерна. Толщины плит брони CNC и NVNC и элементов набора из стали D даны в мм


Другие данные по корпусу были одинаковыдля всей четверки: килеватость 1,15 м, погибь бимса по ВП 0,25 м, шпация теоретических шпангоутов 9,85 м, шаг теоретических ватерлиний 1,10 м. Крейсера имели скуловые кили длиной 60,48 м и шириной 1,3 м.

Сначала планировалось установить на эти крейсера новые двойные реактивные рули. Ожидалось, что благодаря их форме и расположению точно в струе внутренних гребных валов, на крейсерских ходах удастся уменьшить диаметр циркуляции - за счет реакции струи на рули в направлении, противоположном по отношению к повороту носа корабля. Такие рули установили на “Могами”, но во время его испытаний в марте 1935 года никакого существенного уменьшения диаметра циркуляции не наблюдалось. Зато поворот на большой скорости вызывал сильную вибрацию корпуса. В результате все остальные крейсера достроили с балансирными рулями регулярного типа общей площадью 19,94 м2, а на “Могами” регулярные рули поставили в июле 1935 года.


7.3.2. Особенности конструкции корпуса.

Для проекта “С-37” в целом были приняты обводы, разработанные Ю.Хирагой для 7100-тонных крейсеров и примененные в проектах “Миоко” и “Такао”.

Корабли имели непрерывную верхнюю палубу с изгибом кромки по длине; высота борта в носу при осадке 5,5 м составляла 7,65 м, в корме 4,65 м, а между шп.43 и шп.202 - 5,5 м (на второй паре после модернизации 1934 года 5,15 м). Распределение броневых плит пояса и средней палубы увеличивало прочность корпуса в продольном направлении.

Но, по сравнению с проектами “Миоко” и “Такао”, структура корпуса была легче, с широким применением электросварки. На крейсерах типа “Такао” толщина плит платформы под КО и МО на уровне 6-й ватерлинии составляла 5,6-7,5 мм, а шпангоуты (z-образные профили толщиной 5,6 м) между 8-й ватерлинией и средней палубой на каждые 3-4 шпации подкреплялись дополнительными (полукруглый профиль толщиной 7,5 мм). В проекте “С-37” толщина плит платформы под уровнем 5-й ватерлинии была 5,5-7,0 мм, профили шпангоутов имели толщину 8 мм (снизу до средней палубы), но дополнительных шпангоутов не было. Настил платформы и ветви Шпангоутов напрямую приваривались к листам обшивки. Во всех сварных соединениях{16} использовалась сталь Дюколь, но для уменьшения искривления готовые сварные блоки корпуса соединялись друг с другом с помощью толстых обручей и заклепок. Частично это помогло, но во время испытаний “Могами” и во время осенних маневров 4-го Флота сварные швы обшивки во многих местах разрушились.

Вход
Поиск по сайту
Ищем:
Календарь