Онлайн книга «Тяжелый крейсер “Алжир" (1930-1942)»
|
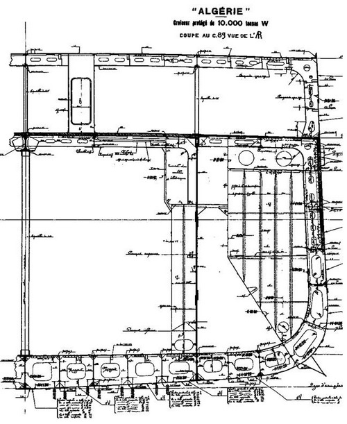
Днищевые стрингеры (по семь с каждого борта) проходили непрерывно по всей длине корабля. Для перекачки мазута в топливных цистернах второго дна была смонтирована система трубопроводов с отсечными клапанами. Отличительной особенностью крейсера “Алжир” стало наличие башнеподобной носовой надстройки. Надстройку установили в корму от боевой рубки, и она была высотой 25 м (от уровня 10-й ватерлинии). Башнеподобная конструкция надстройки обеспечивала ей прочность и отсутствие вибраций, препятствующих правильной работе дальномеров. На крыше находился командно-дальномерный пост артиллерии главного калибра, оборудованный дальномером с 5-метровой базой (вес конструкции 10,5 т). Уровнем ниже находились площадки двух дальномеров зенитной артиллерии с базой 3 м (весом по5,5 т каждый). На том же уровне, но в нос, был установлен циферблат указателя дистанции. Кормовее располагались реи для радиоантенн, ниже площадка прожектора диаметром 0,75 м. Адмиральский мостик и площадка дистанционного управления прожекторами находились палубой ниже. Сигнальный мостик также смонтировали в носовой части надстройки. Для облегчения конструкции площадки изготавливались с широким применением алюминия. ![]() Тяжелый крейсер "Алжир". 1934 г. (Конструктивный чертеж мидель-шпвнгоута) ![]() Тяжелый крейсер “Алжир". 1934 г. (Конструктивный чертеж форштевня) ![]() Тяжелый крейсер “Алжир". 1934 г. (Конструктивный чертеж носовых шпангоутов) Кормовая надстройка располагалась от 76 по 80 шпангоуты и имела высоту 15,6 м (от уровня 10-й ватерлинии) и служила одновременно опорой для шлюпочного и авиационного кранов. Надстройка служила опорой и для прожекторной площадки, на которой располагались три прожектора диаметром 1,2 м. Единственная дымовая труба была еще одним характерным отличительным признаком “Алжира”. Длина трубы составляла 4,76 м, ширина 3,6 м, площадь продольного сечения 14,35 кв.м. В ходе ремонта 1939-1940 годов на трубе установили новый колпак, обеспечивавший меньшее задымление постов и аппаратуры на носовой надстройке. Крейсер был оснащен рулем полубалансирного типа с основным электрическим приводом руля. Общая площадь руля составляла 24,76 кв. м, полезная площадь 24,0 кв.м. ![]() Тяжелый крейсер “Алжир". 1934 г. (Конструктивный чертеж вхтерштевня) На корабле была установлена четырех вал ьная паротурбинная установка, изготовленная фирмами Рато АЦБ (Rateau АСВ) и Браун-Бовери (Brown Boveri). Общая длина машинно-котельных отделений составляла 60 м. С носа в корму были последовательно расположены три котельных отделения (№ 1-3), затем располагалось носовое машинное отделение, в котором стояли главные турбозубчатые агрегаты, вращавшие бортовые гребные валы. Главные турбозубчатые агрегаты, работавшие на центральные гребные валы, располагались в кормовом машинном отделении. Каждый агрегат мог работать совершенно автономно, будучи снабжен полным комплексом обслуживающих механизмов и систем. Вес энергетической установки с конденсаторами, запасами котельной воды, мазута и масла составлял 1347,45 т, причем 10,5 т приходились на детали из легких сплавов. Эти детали должны были работать при температуре не выше 125°С. Общий выигрыш от применения легких сплавов составил примерно 21 т. Из них на 7 т уменьшился вес турбин, редукторов и упорных подшипников; на две тонны стал меньше вес линий валов; еще на две тонны уменьшился вес трубопроводов, арматуры и т.п.; на 1,8 т вес вкладышей и т.п., на 0,2 т вес поручней и ограждений и на 5 т уменьшился вес вентиляционных каналов. Турбины получали пар от шести котлов. В котельном отделении №1 стояли два котла (№11 и №12) с площадью нагрева по 885 кв.м (по другим данным, 770 кв. м). В отделении №2 котлы №21 и № 22) также с площадью нагрева по 885 кв.м. В кормовом котельном отделении (№3) стояли по правому борту котел №31 с площадью нагрева 1515 кв.м, а по левому борту вспомогательный котел № 32 с площадью нагрева 300 кв.м. Котлы с площадями нагрева 1515 и 885 кв.м были снабжены соответственно восемью и пятью форсунками системы Пеноэ (Penhoet), а вспомогательный котел – тремя форсунками системы Рато. ![]() Тяжелый крейсер ",Алжир”. 1934 г. (Продольный разрез, план, поперечные сечения и теоретический чертеж корпуса) Каждое котельное отделение обслуживалось четырьмя вентиляторами- нагнетателями (в кормовом отделении пятью), вспомогательным топливным насосом, двумя основными топливными насосами, двумя подогревателями мазута, одним топливным фильтром, одним сепаратором топлива, двумя счетчиками топлива, трюмным насосом, осушительным насосом производительностью 300 т/час и эжектором производительностью 100 т/час. В кормовом котельном отделении количество топливных фильтров, насосов и подогревателей было увеличено. В носовом котельном отделении стоял дополнительный насос для перекачки топлива. Котлы производили перегретый до 325° С пар с нормальным давлением 25 атм (максимальным 27 атм). Высота котлов была соответственно 3,612 м, 5,147 м, 5,860 м, ширина 3,670 м, 4,90 м, 6,124 м, длина 4,175м, 5,200м, 6,135 м. Каждый турбоагрегат состоял из трех турбин высокого, среднего и низкого давления, зубчатого редуктора, упорного подшипника и вспомогательных механизмов. Турбины высокого и среднего давления были системы Рато АЦБ (Rateau-Ateliers et Chantiers de Bretagne), изготавливались фирмой Индрет (Indret). Турбины низкого давления реактивного типа со ступенью заднего хода изготавливались по системе Браун- Бовери Парсонс электромеханической компанией Бурже (Compagnie electro-mecanique du Bourget). При выходе из турбины низкого давления пар попадал в конденсатор, охлаждавшийся морской водой. Вода прокачивалась циркуляционным турбонасосом производительностью 5000 куб.м в час. На четыре турбоагрегата приходились четыре главных и два вспомогательных конденсатора, четыре главных циркуляционных турбонасоса, шесть главных и два вспомогательных масляных насоса, два трюмных насоса, два главных очистных насоса, четыре деаэратора, восемь охладителей масла, четыре центробежных масляных фильтра, две группы бойлеров, восемь воздушных вентиляторов. Энергетическая установка развивала нормальную мощность 84000 л.с., максимальную 96000 л.с., на заднем ходу 27200 л.с., мощность при скорости 15 уз. – 7800 л.с., действительные давление и температура пара на входе турбины составляли 24 кг/кв.см и 290°. |
![Иллюстрация к книге — Тяжелый крейсер “Алжир" (1930-1942) [pic_12.jpg] Иллюстрация к книге — Тяжелый крейсер “Алжир" (1930-1942) [pic_12.jpg]](img/book_covers/077/77618/pic_12.jpg)
![Иллюстрация к книге — Тяжелый крейсер “Алжир" (1930-1942) [pic_13.jpg] Иллюстрация к книге — Тяжелый крейсер “Алжир" (1930-1942) [pic_13.jpg]](img/book_covers/077/77618/pic_13.jpg)
![Иллюстрация к книге — Тяжелый крейсер “Алжир" (1930-1942) [pic_14.jpg] Иллюстрация к книге — Тяжелый крейсер “Алжир" (1930-1942) [pic_14.jpg]](img/book_covers/077/77618/pic_14.jpg)
![Иллюстрация к книге — Тяжелый крейсер “Алжир" (1930-1942) [pic_15.jpg] Иллюстрация к книге — Тяжелый крейсер “Алжир" (1930-1942) [pic_15.jpg]](img/book_covers/077/77618/pic_15.jpg)
![Иллюстрация к книге — Тяжелый крейсер “Алжир" (1930-1942) [pic_16.jpg] Иллюстрация к книге — Тяжелый крейсер “Алжир" (1930-1942) [pic_16.jpg]](img/book_covers/077/77618/pic_16.jpg)