Книга Первые русские броненосцы, страница 14 – Владимир Грибовский

Авторы: А Б В Г Д Е Ж З И Й К Л М Н О П Р С Т У Ф Х Ч Ш Ы Э Ю Я
Книги: А Б В Г Д Е Ж З И Й К Л М Н О П Р С Т У Ф Х Ц Ч Ш Щ Ы Э Ю Я
Бесплатная онлайн библиотека LoveRead.ec

Онлайн книга «Первые русские броненосцы»

📃 Cтраница 14

"Times" 20 мая.

"6 (18) мая, пополудни, был спущен первый броненосный фрегат для русского флота с верфи темзенских железных заводов, построивших первые суда этого рода для флотов: английского, датского и пусского и строящих в настоящее время первые фрегаты такого же рода для флотов испанского и турецкого.

"Первенец", имя нового русского фрегата, можно по всей справедливости считать одним из безобразнейших судов, когда-либо спущенных с верфи темзенских заводов. Он не только безобразнее "Resistens" и "Defens", но и безобразнее превозносимого американского изобретения — плавучей батареи "Derrick", которой со дня спуска суждено только лишь держаться, а не действовать на воде. Глядя на "Первенец", с его неуклюжим, сильно выступающим вперед носом, над которым зияли, как глаза какого-нибудь чудовища, два клюза, выкрашенные суриком, его можно было скорее сравнить с безобразной китайской джонкой, нежели с европейским судном, когда-либо виданным на Темзе.

Этот русский фрегат, строившийся по чертежам, доставленным из России, как нельзя вернее представляет быстрые шаги, которыми подвигалась вперед постройка железных фрегатов в Англии в течение последних двух или трех лет. В то время, когда постройка "Первенца" была задумана, все морские нации, по-видимому, имели наклонность к постройке преимущественно броненосцев-таранов, и вследствие этого русский фрегат снабжен шпироном на чудовищном выступе стема, почти на высоте ватерлинии, достаточно длинным и крепким, чтобы пробить самый прочный кузов трехдечного корабля. В то же время большой уклон бортов внутрь судна считался положительной необходимостью для броненосцев, чтобы способствовать снарядам скользить по броне. Поэтому борта на "Первенце" имеют уклон не менее 27°, уклон, который во многих отношениях составляет большой недостаток и который, как доказывает опыт, даже если бы был увеличен до 45°, мало бы содействовал к уменьшению страшной силы такой артиллерии, над какою ежедневно производятся опыты в Шебуринессе. Эти недостатки, т. е. шпирон и уклон бортов окажутся самыми серьезными недостатками, когда судно будет находится в море: первый будет помехой его скорости, а последний его остойчивости.

Россия ни под каким видом не хотела подражать в постройке своего броненосца "Warrior", и потому толщина тиковой подкладки под броней сделана на "Первенце" в 9 дюймов, вместо 18, как на "Warrior", хотя эта невыгода, быть может, и вознаграждается уменьшением тяжести, доставляющем фрегату возможность нести броню в 4,5 дюйма от одной оконечности до другой, как равно и на выступах, которых два — на носу и в корме.

Длина судна между перпендикулярами, за исключением шпиронов, 220 ф., ширина 53 ф., глубина 26 ф. 6 д. Строевых тонн 3000.В полном вооружении углубление его будет 14 ф.; артиллерию предназначено носить: в батарейной палубе 28 орудий 68-фунтового калибра, а на верхней палубе 2 нарезных 100-фунтовых орудия на поворотных станках. При полном вооружении с артиллерией, нижние кромки портов будут отстоять от воды на 6 ф. 6 д., почти на 3 фута ниже, чем на "Warrior", и немного более, чем на фут выше портов когда-то знаменитого "Glore".

В действии при посредственной скорости и тихом состоянии моря "Первенец" был бы грозным судном, но грозным только лишь для парусных судов, застигнутых штилем, ибо вместо машины по крайней мере в 600 паровых сил он имеет ее только в 300. Машина эта при большом водоизмещении и тяжести его подводного местного выступа впереди и вредного сопротивления от струи воды за кормовым выступом, по всей вероятности, доставит ему на пробном рейсе высшую скорость не более 9 узлов. Но мы бы сильно ошиблись, если бы сказали, что в действительном плавании он может располагать даже и этой микроскоростью.

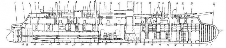
Иллюстрация к книге — Первые русские броненосцы [pic_19.jpg]

Броненосная батарея "Первенец" (продольный разрез)

1 — цепь привода руля; 2 — румпель; 3 — каюта командира; 4 — офицерские каюты; 5 — кают-компания; 6 — штурвал; 7 — вельбот; 8 — боевая рубка; 9 — грузовой люк; 10 — сходной люк; 11-баркас; 12-люк над машиной; 13-орудийный порт; 14-люк над котлами; 15-ванная; 16-шпиль; 17-битенг; 18-труба камбуза; 19-рундуки; 20-офицерский гальюн; 21-подъемный бушприт; 22-таранный отсек; 23-шлюп-балки; 24-коечные сетки; 25-угольная яма; 26-60-фунтовое орудие; 27-ванты; 28-продольная водонепроницаемая переборка.


Спуск фрегата, как и вообще все спуски на темзенских заводах, был совершен превосходно. При настоящем случае присутствовали: граф Сейтнес, граф Маклесфильд, лорд Венлок, лорд Ричард Гросвенор, члены парламента Эйртон и Линдсей, несколько русских офицеров, директоры темзенской компании и большое число приглашенных гостей.

В 2 часа мисс Юм окрестила фрегат, и "Первенец" казался невыразимо безобразным и, что еще хуже, заранее предсказывал, что будет тяжелым, самым неспокойным и мокрым судном в бурную погоду. При противном волнении на него всегда будет поддавать сносу, между тем как уклон его бортов будет донельзя увеличивать валкость судна во время большой зыби. Если взглянешь на этот русский фрегат и потом на чертежи испанского и турецкого фрегатов (строящихся) и потом перенесешь свой взор к изящным линиям колоссального "Минотавра", строящегося на той же верфи для английского флота, то невозможно не признать вполне неизмеримого превосходства в величине, силе и скорости, которыми обладают английские суда этого рода.

За исключением американских неудач и двух фрегатов, построенных для итальянского правительства во Франции, почти все остальные броненосные фрегаты или плавучие батареи для иностранных правительств строятся в Англии. Рассматривая беспристрастно различные планы и системы постройки этих броненосцев, получаешь самое убедительное доказательство, что по величине, скорости и силе английские броненосцы далеко превосходят суда подобного рода в иностранных флотах, так точно, как 20 лет назад английские винтовые линейные корабли превосходили старинные парусные 74-пушечные корабли.

Нет ни одного иностранного броненосного судна, на которое была бы употреблена хоть половина тех денег, которые при всей экономии принуждена была тратить Англия на свои броненосцы, чтобы достичь в них настоящего совершенства. И нет ни одного чужеземного броненосца, который бы в существенных своих достоинствах имел хотя бы одну десятую часть достоинств английских броненосных судов."

Еще о "Первенце"

(Из журнала "Морской сборник" № 7 за 1863 г.)


В прошедшей книжке "Морской сборник" (№ 6 за 1863 г.), в отделе заграничной хроники, мы привели отзыв газеты "Times" о спущенной на воду нашей плавучей броненосной батарее "Первенец". Между тем в "Illustrated London News" от 30 мая также появилась коротенькая статейка по поводу этого спуска на Темзе и при ней картинка, изображающая "Первенец" в момент спуска на воду. В статейке не заключается ничего особенного, чтобы заслуживало внимания, разве одно сравнение "Первенца" с носорогом, по конструкции судна и образованию его оконечностей, которое, впрочем, придает ему необычный и грозный вид, как замечают в статейке.

Реклама
Вход
Поиск по сайту
Ищем:
Календарь