Книга Образцовые броненосцы франции. Часть III. “Шарль Мартель”, страница 8 – Николай Пахомов

Авторы: А Б В Г Д Е Ж З И Й К Л М Н О П Р С Т У Ф Х Ч Ш Ы Э Ю Я
Книги: А Б В Г Д Е Ж З И Й К Л М Н О П Р С Т У Ф Х Ц Ч Ш Щ Ы Э Ю Я
Бесплатная онлайн библиотека LoveRead.ec

Онлайн книга «Образцовые броненосцы франции. Часть III. “Шарль Мартель”»

📃 Cтраница 8

Как можно видеть на публикуемых чертежах, корабль 2-го проекта имел такие же оригинальные очертания носовой оконечности.

Оба проекта, представленные всеми инженерами-участниками, будут рассмотрены Советом по Работам на заседании 12 июня 1890 года. Практическая польза 2-го проекта оказалась конечно ничтожной, зато теоретическая - неоценимой, поскольку именно 2-й проект натолкнул инженера Бьенэмэ на судьбоносное решение. Коль скоро 27-см калибр был признан недостаточным, а 34-см приводил к "гигантскому" водоизмещению, требуется создать промежуточный калибр. Предложение получило общее одобрение, в результате чего инженер Юэн должен был разработать новый проект броненосца, вооружённого на этот раз двумя 30-см орудиями по диаметральной плоскости и двумя 27-см боковыми.

Иллюстрация к книге — Образцовые броненосцы франции. Часть III. “Шарль Мартель” [img_6.jpg]

Броненосец "Шарль Мартель". Чертеж от 30 мая 1890 г. (Вид с борта и вид сверху с указанием расположения противоторпедных сетей )


В записке, составленной 4 июля 1890 года, "Совет по Работам высказал своё мнение по недавно разработанным проектам броненосцев. Он считает, что проекты господ Тибодье и Моншуази не могут служить основанием для новой разработки, тогда как №1 господ Юэн и Сальо могут быть одобрены после внесения изменений, на которые Совет укажет в общих чертах. Он отклоняет проект мсьё Лагань по разным причинам, которые я передам обзорно в другом рапорте, но которые, я должен сразу сказать, не являются мотивом для окончательного отклонения.

Проекты №1 господ Юэн и Сальо уже превышают 13000 тонн; изменения же, указанные Советом, будут вынуждать авторов ещё поднять водоизмещение, которое откровенно тогда приблизится к 14000 тоннам.

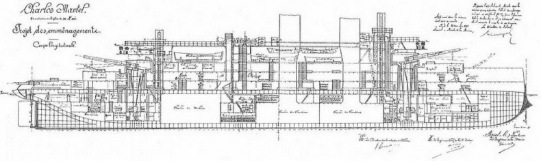
Иллюстрация к книге — Образцовые броненосцы франции. Часть III. “Шарль Мартель” [img_7.jpg]

Броненосец "Шарль Мартель". Чертеж от 7 ноября 1891 г. (Продольный разрез корпуса)


В проекты №2 тех же авторов, разработанные согласно министерской программе от 23 января 1890 г. кажется необходимо внести исправления того же типа, после чего они не могут оставаться в прежнем водоизмещении 11000 т.

Наконец, рассмотрев, является ли 27-см орудие достаточно мощным для броненосца, который я назову "линейный", Совет высказывается ещё раз отрицательно и настаивает на двух более тяжёлых орудий проектируемых броненосцев пробивной силы более значительной.

Если примем во внимание водоизмещение в 14000 тонн как слишком неподъёмное для наших финансов и не так уже необходимое для нашей боевой мощи, следует согласиться, что множество наших высших офицеров рассматривают пробивную силу 27-см орудий для кораблей "первого ранга" как недостаточную. Следовательно, требуется найти, по-моему, новую комбинацию, способную примирить разные существующие взгляды, которая может быть предложена Министру.

Эту новую комбинацию я полагаю, нашел с помощью мсьё генерала дю Пан (du Pan). Она основывается на применении нового орудия, калибром 30 см, пробивающего 45-см плиты на дистанции, вдвое большей требуемой для пробивания 27-см орудием. Это артиллерийское орудие будет изготавливаться не дольше, чем 34-см, которые требовалось заказать. Оно не сможет стать ошибочным из-за того, что займёт место среди типов 24, 27, 32 и 34 см.

Наши броненосцы, согласно этому предположению, могли бы иметь два 30-см орудия, одно из которых погонное, другое ретирадное и два бортовых 27-см орудия. С этим составом тяжёлой артиллерии и согласившись к тому же на некоторые жертвы в отношении защиты, на которые указал Министр в своей телеграмме от 23 января 1890 года, поставленная задача может быть решена в пределах водоизмещения 11800 т.

Если Министр сочтёт нужным принять эти новые основания, я предложил бы ему следующие меры выполнения:

1) чертежи 30-см орудия, незамедлительно, должны быть представлены на рассмотрение служб главной инспекции артиллерии,

2) господа Юэн и Сальо будут немедленно вызваны в Париж для получения указаний, необходимых для изменения их проектов.

Я считаю, что двух с половиной месяцев этим инженерам будет достаточно для того, чтобы привести к желаемому итогу свою работу, а приказ о строительстве Министром мог бы быть отдан к концу сентября".

В числе прочих замечаний проекта Юэн отмечалась преждевременность использования якорей Марэль. Для якорного устройства следует использовать якоря с классическими штоками. Эксперимент с якорями Марэль, который на тот момент проводился на "Брэнюс" и на некоторых других кораблях, не был признан достаточно обнадёживающим для того, чтобы устройство, воспроизведённое в таком виде, получило признание.

На заседании 12 июня 1890 года Совет по Работам по этому поводу высказывался следующим образом:

"В качестве якорей мсьё Юэн предлагает принять якоря Марэль, приложенные, горизонтальным веретеном, к бортам батареи в носовой оконечности. Третий якорь того же вида расположен плашмя на палубе полубака. Эта система до сих пор не была ещё опробована в военно-морском флоте, кроме как на маленьких кораблях, таких как канонерские лодки типа "Грёнад", [точнее на "Фюзэ", - прим, автора], на которых она, кажется, даёт хорошие результаты. Якоря Марэль были заказаны к тому же для того, чтобы быть испытанными на броненосце береговой обороны "Фюрьё". Необходимо дождаться результатов этих испытаний, прежде чем принимать якоря этой системы на проектируемом броненосце первого ранга".

"Брэнюс", заложенный на стапеле в 1882 году, должен был войти на окончательное вооружение 25 декабря 1895 г.; на этот момент постройка "Шарль- Мартэль" уже значительно продвинулась вперёд и не было признано целесообразным вновь возвращаться к вопросу его якорного устройства.

Таким образом, на протяжении всей своей карьеры броненосец останется верен якорям со штоком со всеми вытекающими отсюда неудобствами по их обслуживанию. Тем не менее, корабль получит, в качестве запасного, якорь Марэль, хранившийся горизонтально на баке.

Исправленный проект Юэн представил 12 августа. Записка, сопровождавшая этот проект, уточняла: "Главные башни будут иметь бронирование толщиной 35 см для неподвижной части и 40 см для подвижной части. Для этих башен, чертежи, разработанные мсьё Фарко (Farcot), были изменены таким образом, чтобы избежать случаев заклинивания от снаряда, который мог бы попасть между неподвижной частью и подвижной частью...

[Некоторые] главные характеристики корабля следующие: Водоизмещение 1 1882 т, длина от оси руля до [кормовой] оконечности корпуса 5,5 м, ширина по ватерлинии 21,64 м, осадка кормой максимальная 8,4 м, метацентрическая высота 1,28 м.

Мы дали удовлетворение просьбе Совета значительно увеличить первоначальную остойчивость. Что касается кривой динамической остойчивости, которую разрабатываем в настоящее время по образцу Лорьяна, мы можем сказать отныне, по сравнительном испытании форм нашего настоящего проекта с двумя предыдущими проектами, что эта кривая предстанет в удовлетворительном виде...".

Вход
Поиск по сайту
Ищем:
Календарь