Онлайн книга «Образцовые броненосцы франции. Часть III. “Шарль Мартель”»
|
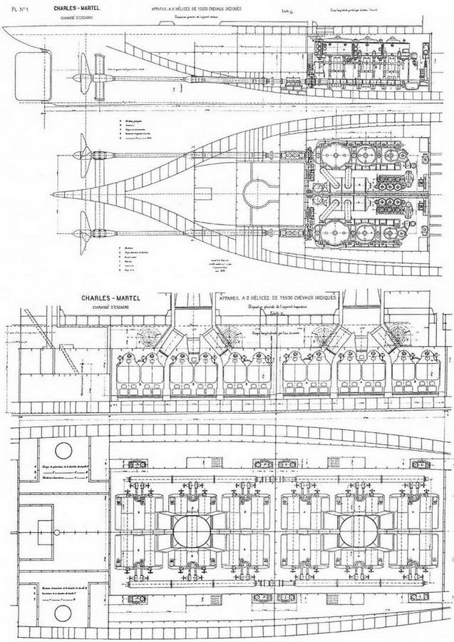
Четыре 65-мм скорострельных орудия Гочкиса модели 1891 располагались симметрично на носовой и кормовой оконечностях продольного мостика. Сектор горизонтального огня носовой пары 190° (30°+90° + 70°), кормовой - 175° (90° + 85°). Высота огня над ГВЛ 12,3 м. Углы вертикального наведения -30° +25°. Восемнадцать 47-мм орудий находились: восемь на станках "с кринолином" на большом продольном мостике, два того же типа на верхнем носовом мостике, ещё восемь, на специальных тумбах и станках с откатом, распределялись между средними марсами обеих мачт. Сектор горизонтального огня четырёх пар 47-мм орудий продольного мостика составлял 150° (считая с носа в корму: 75°+75°, 90°+60°, 60°+90°, 75°+75° и 75°+75°), орудий, стоящих на крыльях носового мостика - 190° (30°+90°+70°), восьми марсовых орудий - 110°. ![]() Чертеж казенной части, ствола и деталей 65-мм орудия принятого на вооружение французского флота в конце 19-го века. Что касается 37-мм пушек, установленных на тумбах со штырём, то они находились: две одноствольных побортно на продольном мостике в корму от носовой дымовой трубы (сектор огня 150° (75°+75°), три револьверных на верхнем марсе грот- мачты (сектор огня 110°). Верхний марс фок-мачты, напротив, был избавлен от всякой артиллерии. Торпедное вооружение. Броненосец был вооружён четырьмя торпедными аппаратами: двумя подводными неподвижными, установленными перпендикулярно диаметральной плоскости, и двумя надводными. Последние относились к модели с выдвижным совком и с шаровым шарниром и были подвешены под бимсами аналогично "Брэнюс". Заметим, что на этом типе трубы совок становился видимым только во время пуска торпеды; именно этот момент запечатлён на публикуемой фотографии, которая для нас крайне интересна, несмотря на её посредственное качество. Угол горизонтального наведения этих аппаратов 90- 62° в нос от траверза и 28° в корму. Торпеды были модели 1892 диаметром 450 мм при длине 5,05 м и весе заряда 75 кг. Прожекторы. В числе шести, они располагались: два на платформах мачт, один в носу на палубе батареи под полубаком за двухстворчатым люком, два на правом и левом борту над 274,4-мм башнями, один на юте. Все эти прожекторы были типа Манжен диаметром зеркала 60 см и лампами Сотэр-Арле горизонтального типа. Расположение и тип прожекторов не менялись на протяжении всей службы. 4. Главные механизмы Главные паровые машины имели следующие ТТД: проектное максимальное число оборотов в минуту 95, общая максимальная проектная мощность, л.с. 13070, общая максимальная достигнутая мощность, л.с. 14997, скорость хода проектная 17 уз, скорость хода максимальная, полученная на испытаниях 5 мая 1897 г., 18,128 уз при 14900 л.с., запас угля нормальный/полный, т 670/800, дальность плавания со скоростью 10 уз., миль 4000 ![]() Главные паровые машины изготовленные для броненосца "Шарль Мартель" на испытательном стенде на заводе Шнейдера ![]() Броненосец "Шарль Мартель". 1896 г. (Чертеж гребного винта левого борта с указанием повреждений полученных в декабре 1896 г.) Две главные паровые машины, изготовленные фирмой Шнейдер, мощностью каждая свыше 6500 л.с., были вероятно одними из самых мощных механизмов, построенных на то время во Франции. Вертикального типа с тройным расширением пара, с давлением на входе 12 кгс/кв.см, они имели по три цилиндра, диаметры которых составляли: 1,13 м для высокого давления, 1,7 м для среднего давления и 2,68 м для нижнего. Ход был одинаков для всех поршней, а именно 1,1 м. Золотники, цилиндрического типа, переводились кулисами Стефенсона. Скорость вращения составляла 95 оборотов в минуту, что соответствовало линейной скорости поршня 3,483 метра в секунду. Нельзя не восхищаться техническим мастерством инженеров того времени, которые не колеблясь отваживались на такие воплощения. Без труда представляются проблемы, не решив которые, невозможно придать возвратно-поступательное движение таким габаритным деталям, как поршень диаметром 2,68 м, особенно, если принять в расчёт проблемы расширения металла под воздействием температуры пара. Поршневые штоки диаметром 190 мм были изготовлены из кованой стали. Шатуны имели длину между осевыми линиями вращения 2,2 м. Расположение машин на корабле ясно видно на чертежах, которые мы публикуем. Они были довольно сходны с машинами "Брэнюс", хотя и были построены в другой мастерской. Относительно вспомогательных машин отметим, что воздушная помпа была вертикального типа простого действия, приводимая в действие вертикальной трёхцилиндровой паровой машиной. Эта машина обслуживала также циркуляционные помпы центробежного типа. Установка этого вида вспомогательных механизмов существовала для каждой из главных машин. Кроме того, восемь питательных помп Тириона №7 производительностью 108 куб.м в час работали от двухцилиндровых горизонтальных машин. Всё это вспомогательное оборудование, при максимальной производительности, вычитали 430 л.с. из общей мощности в 13500 л.с. Таким образом, для приведения в движение главных машин оставались в наличии 13070 л.с. Таким образом, вес одной лошадиной силы составлял 32,563 кг. Гребные винты. Винты диаметром 5,7 м и постоянным шагом 6,208 м для левого борта и 6,298 м для правого борта, имели три лопасти, отлитые из алюминиевой бронзы и привинченные к ступице. Классическая бронза состояла из меди с добавлением олова в количестве от 10 до 30%. Её главный недостаток при изготовлении винтов заключался в её недостаточной твёрдости. Итак, с увеличением скорости вращения и диаметра винта становились очень значительными скорости поступательного движения в воде на конце лопасти. В такой момент явление "кавитации" подвергало опасности создания эрозий в некоторых восприимчивых местах металла, и, в конце концов, приводило винт в негодность. Следовательно, пытались найти более твёрдые сплавы. ![]() Броненосец "Шарль Мартель ". 1896 г. (Схема расположения главных паровых машин, гребных валов и котлов) Испытание стальных винтов, осуществлённое на "Нептюн", не оправдало надежд: трудности их изготовления заставили отказаться от этой технологии. Металлургия в то время находилась в постоянном развитии и усовершенствование сплава меди, включающей 10% алюминия и 4% железа плюс немного марганца, принесло, наконец, требуемое решение. Получалась бронза большой твёрдости и малокоррозионная. Этот сплав используется ещё и в наши дни под названием бронза "морская" с улучшениями, состоящими в добавлении 1% никеля и других присадок, сохранявшихся изготовителями в секрете. |
![Иллюстрация к книге — Образцовые броненосцы франции. Часть III. “Шарль Мартель” [img_22.jpg] Иллюстрация к книге — Образцовые броненосцы франции. Часть III. “Шарль Мартель” [img_22.jpg]](img/book_covers/077/77604/img_22.jpg)
![Иллюстрация к книге — Образцовые броненосцы франции. Часть III. “Шарль Мартель” [img_23.jpg] Иллюстрация к книге — Образцовые броненосцы франции. Часть III. “Шарль Мартель” [img_23.jpg]](img/book_covers/077/77604/img_23.jpg)
![Иллюстрация к книге — Образцовые броненосцы франции. Часть III. “Шарль Мартель” [img_24.jpg] Иллюстрация к книге — Образцовые броненосцы франции. Часть III. “Шарль Мартель” [img_24.jpg]](img/book_covers/077/77604/img_24.jpg)
![Иллюстрация к книге — Образцовые броненосцы франции. Часть III. “Шарль Мартель” [img_25.jpg] Иллюстрация к книге — Образцовые броненосцы франции. Часть III. “Шарль Мартель” [img_25.jpg]](img/book_covers/077/77604/img_25.jpg)