Онлайн книга «Авианосец Третьего рейха Graf Zeppelin – история, конструкция, авиационное вооружение»
|
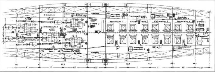
Мостики и посты управления получили противоосколочное бронирование, была удлинена дымовая труба и на ней установлен специальный козырек для лучшего отвода газов от полетной палубы. Для размещения антенн радиолокационных станций обнаружения FuMO- 21 и FuMO-25 была предусмотрена новая мощная мачта. Корабль получил носовую оконечность типа atlantic-bow, которая вводилась для всех крупных кораблей германского флота, учитывая суровые условия плавания в Северной Атлантике. ![]() Буксиры выводят авианосец к достроечной стенке Так как большинство модернизационных мероприятий проводилось на так называемом «острове» на правом борту корабля и сопровождалось увеличением его массы, это существенно ухудшило характеристики остойчивости. Для ее повышения конструкторы предложили снабдить корабль бортовыми булями шириной около 2,4 м, которые позволили бы также значительно улучшить подводную защиту, признанную по опыту боевых действий неудовлетворительной. Кроме того, в центральные отсеки булей перенесли часть вспомогательных механизмов, в них же разместили и дополнительный запас котельного топлива, а остальное пространство было заполнено бетонным балластом. Изменения, внесенные в проект авианосца, привели к тому, что его водоизмещение выросло на 2220 т, а длина увеличилась на 5,4 метра. Скорейшему переводу корабля из Готенхафена на судостроительную верфь в Киле для достройки и модернизации препятствовали налеты союзнической авиации. Так, например, в ночь с 27 на 28 августа 1942 года английским Бомбардировочным командованием была предпринята специальная операция по уничтожению авианосца Graf Zeppelin, который, как полагали британцы, был практически готов к выходу в море. В ней принимали участие девять бомбардировщиков Lancaster из 106 Squadron 5 Group, вооруженных специальными противокорабельными бомбами Capital Ship. Полагалось, что одного прямого попадания такой бомбы будет достаточно для потопления крупного корабля. Достичь Готенхафена, который располагался на расстоянии 1500 км от английской базы, удалось лишь семи бомбардировщикам Lancaster, но и тем не повезло — из-за тумана их экипажи не смогли обнаружить авианосец, и им пришлось сбросить свои «супербомбы» просто в район гавани. Правда, в этой акции не был потерян ни один Lancaster. 30 ноября 1942 года три буксира в обстановке повышенной секретности (на это время судну даже заменили название, обозначив его в переговорах как Zander вместо Graf Zeppeline) вывели авианосец в море. К этому времени немцы успели усилить его зенитное вооружение — на нем установили три спаренных 37-мм и два счетверенных 40-мм зенитных автомата, а также зенитные прожекторы. 5 декабря в сопровождении трех тральщиков и шести сторожевых катеров Graf Zeppelin благополучно прибыл в Киль, где был поставлен в плавучий док верфи Deutsche Werke грузоподъемностью 40 000 т. На корабле начались работы, но уже 30 января 1943 года Гитлер приказал прекратить достройку… Такое решение было связано с провалом операции Regenbogen, целью которой являлось уничтожение союзнического конвоя JW51B в Баренцевом море. После неудачного для немцев морского сражения 31 декабря 1942 года Гитлер, абсолютно разуверившийся в боевой эффективности тяжелых артиллерийских кораблей Kriegsmarine, приказал поставить их на прикол, предварительно демонтировав с них вооружение. Это решение повлияло и на судьбу авианосца, так как именно совместно с подобными боевыми кораблями и предполагалось его использование. 21 апреля 1943 года Graf Zeppelin в рамках операции Zugvogel снова переводят на восток. 23 апреля конвой с авианосцем достиг Свинемюнде, а спустя несколько часов вошел в Штеттин. Здесь корабль покинул экипаж, состоящий из военных моряков и работников судоверфи, и его заменил персонал из сорока гражданских работников. Первым делом они демонтировали валы гребных винтов и уложили их на палубе для уменьшения электрохимической коррозии корпуса. ![]() Буксировка авианосца ![]() Компоновка главной энергетической установки авианосца Graf Zeppelin Далее с корабля были демонтированы 150-мм орудия — их перевезли в Норвегию, где они использовались на батареях береговой артиллерии. В декабре 1943 года четыре орудия установили на батарее МКВ 6/514 под Альтафьордом, где они эксплуатировались до февраля 1944 года. В ноябре 1944 года их перевезли на батарею МКВ 5/512 в Карлсоу и установили там в январе 1945 года. После войны эти орудия были смонтированы в форте Гротоя под Харстадом, где использовались норвежской армией до начала 1990-х годов. Четыре других орудия были перевезены в Кап Романов и введены в эксплуатацию в сентябре 1942 года — они вели огонь по позициям советской береговой артиллерии в Фискерихалвоя и были взорваны в октябре 1944 года. ![]() АВИАНОСЕЦ Graf Zeppelin Внешний вид авианосца Graf Zeppelin Вид с правого борта ![]() ![]() Вид с левого борта Когда в апреле 1945 года к Штеттину приблизились наступающие советские войска, увести недостроенный авианосец в другое, более безопасное место немцы были уже не в состоянии, поэтому корабль был подготовлен к уничтожению. На тот момент Graf Zeppelin имел комплектную механическую установку, на корабле функционировали бортовые генераторы электроэнергии. Правда, остальное электрооборудование не было полностью смонтировано, отсутствовали авиационно-технические устройства, артиллерийское вооружение, не хватало приборов и оборудования постов управления стрельбой. Взрывные заряды (10 глубинных бомб) были заложены под главные турбины, электрогенераторы и самолетоподъемники. 24 апреля в 18.00 по приказу старшего морского начальника Штеттина капитана цур зее В.Калера специальная команда взрывников подорвала заряды. Механизмы корабля были уничтожены, а через образовавшиеся пробоины и трещины внутрь авианосца начала поступать забортная вода. Однако благодаря тому, что корабль находился в недостаточно глубокой протоке Монне реки Одер, он просто лег на грунт на глубине семи метров с креном 0,5 градуса на правый борт. Уровень воды в машинном отделении составил 4 м. В таком притопленном состоянии в тот же день авианосец был захвачен советскими войсками. |
![Иллюстрация к книге — Авианосец Третьего рейха Graf Zeppelin – история, конструкция, авиационное вооружение [pic_26.jpg] Иллюстрация к книге — Авианосец Третьего рейха Graf Zeppelin – история, конструкция, авиационное вооружение [pic_26.jpg]](img/book_covers/077/77576/pic_26.jpg)
![Иллюстрация к книге — Авианосец Третьего рейха Graf Zeppelin – история, конструкция, авиационное вооружение [pic_27.jpg] Иллюстрация к книге — Авианосец Третьего рейха Graf Zeppelin – история, конструкция, авиационное вооружение [pic_27.jpg]](img/book_covers/077/77576/pic_27.jpg)
![Иллюстрация к книге — Авианосец Третьего рейха Graf Zeppelin – история, конструкция, авиационное вооружение [pic_28.jpg] Иллюстрация к книге — Авианосец Третьего рейха Graf Zeppelin – история, конструкция, авиационное вооружение [pic_28.jpg]](img/book_covers/077/77576/pic_28.jpg)
![Иллюстрация к книге — Авианосец Третьего рейха Graf Zeppelin – история, конструкция, авиационное вооружение [pic_29.jpg] Иллюстрация к книге — Авианосец Третьего рейха Graf Zeppelin – история, конструкция, авиационное вооружение [pic_29.jpg]](img/book_covers/077/77576/pic_29.jpg)
![Иллюстрация к книге — Авианосец Третьего рейха Graf Zeppelin – история, конструкция, авиационное вооружение [pic_30.jpg] Иллюстрация к книге — Авианосец Третьего рейха Graf Zeppelin – история, конструкция, авиационное вооружение [pic_30.jpg]](img/book_covers/077/77576/pic_30.jpg)
![Иллюстрация к книге — Авианосец Третьего рейха Graf Zeppelin – история, конструкция, авиационное вооружение [pic_31.jpg] Иллюстрация к книге — Авианосец Третьего рейха Graf Zeppelin – история, конструкция, авиационное вооружение [pic_31.jpg]](img/book_covers/077/77576/pic_31.jpg)