Онлайн книга «Советский тяжелый танк Т-35. "Сталинский монстр"»
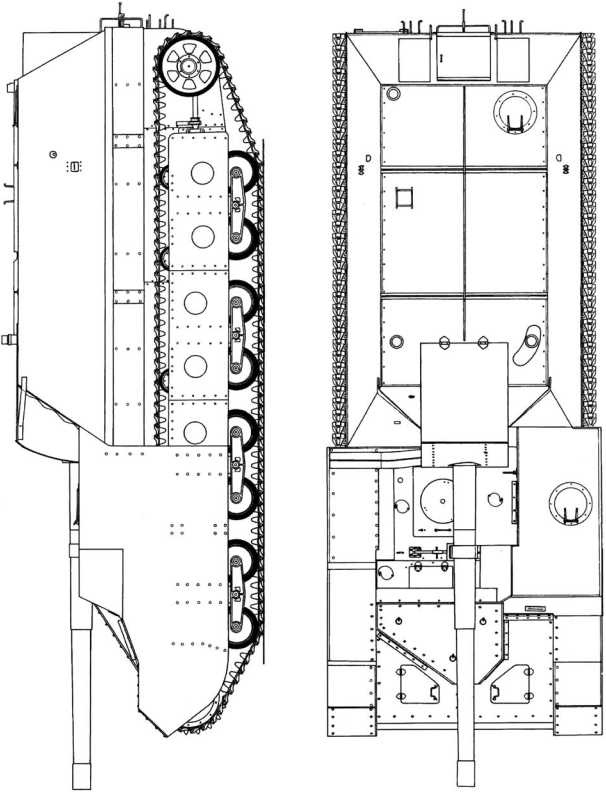
![]() Самоходная установка СУ-14-1 во дворе завода № 185 (бывший завод опытного машиностроения имени Кирова), вид сверху. 1936 год (АСКМ). С 5 апреля по 24 августа 1935 года испытательно-сборочным цехом Опытного завода проводились специальные заводские испытания модернизированного образца СУ-14. Машина прошла более 500 км в различных условиях, продемонстрировав неплохие боевые и ходовые качества. Во время испытаний гаубицы выстрелы производили не только вдоль направления движения под большим углом возвышения, но и горизонтально, при крайних углах горизонтального наведения и даже при поднятых сошниках. Однако скорострельность оставляла желать лучшего, механизмы и агрегаты часто выходили из строя. Вместе с тем, отмечались и значительные недостатки. В частности выяснилось, что через шаровые амбразуры, предназначенные для пулеметов ДТ, вести огонь невозможно, также как невозможно быстро воспользоваться возимым боекомплектом (восемь выстрелов), который находился под съемными крышками настила, блокированными в походном положении телом орудия. Используя опыт, полученный при работе над СУ-14, конструкторский отдел Опытного завода разработал чертежи для постройки эталонного образца самоходной установки СУ-14-1, который был изготовлен в начале 1936 года. Он имел улучшенную конструкцию коробки передач, главного фрикциона, тормозов и бортовых передач. К тому же на СУ-14-1 были перенесены в стороны от кабины водителя выхлопные трубы, усовершенствованы опорные сошники, убран механизм выключения подвески при стрельбе, испытания которого на СУ-14 выявили его ненужность. Машина получила форсированный до 700 л.с. двигатель М-17Ф, который позволял самоходу массой 48 т развивать скорость 30 км/ч. ![]() Эталонный образец самоходной установки СУ-14-1 со 152-мм орудием Бр-2. ![]() Опытный образец самоходной установки СУ-14 с 203-мм орудием Б-4. ![]() Модернизированный и образец СУ-14 со 152-мм орудием большой мощности У-30, вид слева. 1936 год (РГАЭ). Эталонный образец СУ-14-1 испытывался пробегом с апреля по сентябрь 1936 года (пройдено около 800 км) и с 28 апреля по 29 ноября 1936 года стрельбой на НИАПе. В конце ноября 1936 года для испытания самохода в пушечном варианте, с Уралмашзавода и завода «Баррикады» доставил 152-мм длинноствольные орудия У-30 и Бр-2. По сравнению с Б-4 последние имели большую дальность стрельбы и лучшую баллистику. Перевооружение и кратковременные испытания состоялось в ноябре — декабре 1936 года. Пушечный вариант самоходов понравился всем, так как давал Красной Армии мобильные артсистемы, равных которым по дальнобойности у нее не было. Согласно отчету АБТУ КА, датированному началом 1937 года, испытания СУ-14 считались завершенными, и «опытный образец передан заводу № 183 для изготовления серии». Планом на 1937 год предусматривалось изготовление установочной серии из пяти машин СУ-14-Бр-2 (со 152-мм орудием Бр-2), на заводе № 183 в Харькове, а с 1938 года предполагалось наладить их серийный выпуск общим количеством не менее 100 штук. ![]() СУ-14-1 во время полигонных испытаний. Весна 1936 года. На фото хорошо видна бортовая установка пулемета ДТ и крепление ЗИП на борту машины. ![]() Самоходная установка СУ-14-1 во время полигонных испытаний. Весна 1936 года. На фото расчет производит заряжание 203-мм гаубицы Б-4. Однако вскоре от этих планов отказались. Одной из причин называют репрессии среди конструкторов — к этому времени были арестованы один из создателей 203-мм гаубицы Б-4 Н. Магдесиев, а также руководитель работ по СУ-14. П. Сячинтов. Однако, по мнению автора, наиболее вероятной причиной отказа от выпуска СУ-14, являлись проблемы с производством Т-35. Как уже говорилось выше, изготовление «тридцать пятых» шло с большим трудом, да и по надежность эти машины были не на высоте. А так как в конструкции СУ-14 использовалось значительное количество узлов и агрегатов Т-35, было понятно, что при постановке на производство у СУ-14 будут те же проблемы. Кроме того, харьковский завод № 183 явно не смог бы «потянуть» вместе с Т-35 аналогичную машину. Поэтому все работы по подготовке серийного производства САУ были остановлены, а два построенных образца передали на хранение военному складу № 37 в Москве. Вспомнили о них только в декабре 1939 года при штурме «Линии Маннергейма». Красная Армия, столкнувшись с мощными современными укреплениями, ощутила острую потребность в бронированных артиллерийских установках крупных калибров. Постановлением Комитета Обороны СССР от 17 января 1940 года «О спецзаданиях для нужд Действующей Армии» заводу № 185 имени С. Кирова (бывший Опытный завод Спецмаштреста) поручалось «отремонтировать и экранировать броневыми листами две СУ-14». По результатам заседания Комитета Обороны нарком К. Ворошилов докладывал: «Доношу, что для борьбы с ДОТ заводу № 185 даны следующие предложения. Сделать экран и дополнительно забронировать место орудийного расчета СУ-14 с морской пушкой Б-30 калибра 152-мм с таким расчетом, чтобы этот забронированный самоход мог свободно подходить к ДОТ на 1,5–2 км, и прямой наводкой расстреливать их. Для этой цели заводу присланы две машины СУ-14, которые завод обязан был отремонтировать и провести дополнительное бронирование». ![]() ![]() Самоходная установка СУ-14-1 (с пушкой Бр-2) с дополнительной бронировкой. |
![Иллюстрация к книге — Советский тяжелый танк Т-35. "Сталинский монстр" [i_190.jpg] Иллюстрация к книге — Советский тяжелый танк Т-35. "Сталинский монстр" [i_190.jpg]](img/book_covers/077/77483/i_190.jpg)
![Иллюстрация к книге — Советский тяжелый танк Т-35. "Сталинский монстр" [i_191.jpg] Иллюстрация к книге — Советский тяжелый танк Т-35. "Сталинский монстр" [i_191.jpg]](img/book_covers/077/77483/i_191.jpg)
![Иллюстрация к книге — Советский тяжелый танк Т-35. "Сталинский монстр" [i_192.jpg] Иллюстрация к книге — Советский тяжелый танк Т-35. "Сталинский монстр" [i_192.jpg]](img/book_covers/077/77483/i_192.jpg)
![Иллюстрация к книге — Советский тяжелый танк Т-35. "Сталинский монстр" [i_193.jpg] Иллюстрация к книге — Советский тяжелый танк Т-35. "Сталинский монстр" [i_193.jpg]](img/book_covers/077/77483/i_193.jpg)
![Иллюстрация к книге — Советский тяжелый танк Т-35. "Сталинский монстр" [i_194.jpg] Иллюстрация к книге — Советский тяжелый танк Т-35. "Сталинский монстр" [i_194.jpg]](img/book_covers/077/77483/i_194.jpg)
![Иллюстрация к книге — Советский тяжелый танк Т-35. "Сталинский монстр" [i_195.jpg] Иллюстрация к книге — Советский тяжелый танк Т-35. "Сталинский монстр" [i_195.jpg]](img/book_covers/077/77483/i_195.jpg)
![Иллюстрация к книге — Советский тяжелый танк Т-35. "Сталинский монстр" [i_196.jpg] Иллюстрация к книге — Советский тяжелый танк Т-35. "Сталинский монстр" [i_196.jpg]](img/book_covers/077/77483/i_196.jpg)
![Иллюстрация к книге — Советский тяжелый танк Т-35. "Сталинский монстр" [i_197.jpg] Иллюстрация к книге — Советский тяжелый танк Т-35. "Сталинский монстр" [i_197.jpg]](img/book_covers/077/77483/i_197.jpg)