Книга Артиллерийские тягачи Советской Армии, страница 5 – Евгений Прочко

Авторы: А Б В Г Д Е Ж З И Й К Л М Н О П Р С Т У Ф Х Ч Ш Ы Э Ю Я
Книги: А Б В Г Д Е Ж З И Й К Л М Н О П Р С Т У Ф Х Ц Ч Ш Щ Ы Э Ю Я
Бесплатная онлайн библиотека LoveRead.ec

Онлайн книга «Артиллерийские тягачи Советской Армии»

📃 Cтраница 5

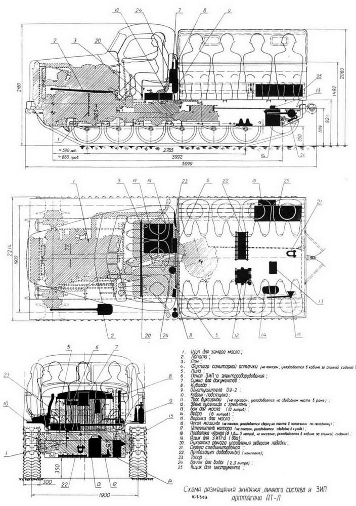
АТ-Л
Иллюстрация к книге — Артиллерийские тягачи Советской Армии [img_19.jpg]

На Красной площади — тягачи АТ-Л (изделие 5) с 57-мм зенитными пушками С-60 на буксире. 1 мая 1956 года


Опыт Великой Отечественной войны подтвердил целесообразность и эффективность использования легких быстроходных гусеничных артиллерийских тягачей.

Последовательно выпускавшиеся, начиная с сентября 1943 года, тягачи типов Я-12, Я-13, а после войны — М-12А, М-1 ЗА и М-2, созданные с использованием основных узлов трансмиссии и ходовой части самоходной установки СУ-76М, позволили тогда решить проблему мехтяги артиллерии соответствующей массы. Считалось, что и в послевоенное время их развитие должно быть продолжено в связи с перспективой появления новых буксируемых артсистем такой же весовой категории. Однако по своей компоновке и традиционным для машин такого класса агрегатам они к тому времени уже достаточно устарели и не в полной мере отвечали армейским требованиям к легким артиллерийским тягачам нового поколения. В первую очередь — из-за низких скоростей движения по пересеченной местности и бездорожью, из-за недостаточных маневренности, плавности хода, выносливости при работе в тяжелых условиях, вместимости, удобству управления и обслуживания. В частности, на таких тягачах отсутствовали остро необходимые тяговые лебедки, даже простейшие.

Учитывая все это, инженеры по спецтехнике Харьковского тракторного завода по инициативе главного конструктора члена-корреспондента Академии артиллерийских наук Н.Г.Зубарева в конце 1946 года начали проработку принципиально нового легкого артиллерийского тягача для буксировки прицепов массой до 6 т с грузом на платформе 2 т с тем же двигателем, но с более эффективными и совершенными агрегатами трансмиссии и ходовой части, который бы полностью соответствовал возросшим требованиям армии. В этом начинании их активно поддержало ГАУ. Официальное решение в мае 1947 года об организации специальной конструкторской группы (с 1954 года — ГСКБ) из 14 человек по быстроходным тягачам на ХТЗ, где этим раньше не занимались, застало компоновщиков в разгар работы, уже за чертежными досками. Ряд сотрудников ранее участвовали в создании танков и тяжелых тягачей в отделах «100» и «200» Харьковского паровозостроительного завода и поэтому были знакомы с их спецификой.

Поскольку единственный подходящий и доступный для решения данной задачи двигатель ЯАЗ-204И (110 л.с.) имел ограниченную мощность , главным звеном концепции нового тягача определили применение многорадиусного механизма поворота с двойным подводом и рекуперацией мощности, значительно снижающего ее потери, по сравнению с бортовым фрикционом, облегчающим управление и повышающим средние скорости движения в тяжелых условиях.

Такие механизмы имели немецкие танки «Пантера» и английские «Черчилль», на которых они себя вполне оправдали. Для создания более плотной компоновки, увеличения полезной площади кузова, снижения его погрузочной высоты и улучшения развесовки двигатель впервые для этого класса машин был развернут маховиком вперед с максимальным сдвигом к носовой части и соединен в едином компактном блоке с передней трансмиссией. Была использована, хотя и не полностью, удивительная способность к гибкой конвертации двухтактного дизеля типа GMC (до 12 вариантов расположения агрегатов при любом направлении вращения), а также последующая возможность значительного увеличения его мощности, правда, в ущерб экономичности.

Для повышения надежности все вспомогательные агрегаты двигателя, кроме генератора (500 Вт), получили шестеренные приводы (расположенный далеко впереди вентилятор — через упругий торсион от распредвала), а для облегчения холодного запуска был предусмотрен форсуночный водо-масляный котел- подогреватель (кроме штатного электрофакельного подогрева воздуха). Запуск осуществлялся только электростартером. Маслосистему модернизировали с целью обеспечения нормальной работы двигателя при продольных уклонах до 35°, чего нелегко было достигнуть при «мокром» картере. Питание силового агрегата производилось из двух топливных баков по 130 л, имевших все необходимое оборудование и приборы, а также широкие горловины для скоростной заправки.

Иллюстрация к книге — Артиллерийские тягачи Советской Армии [img_20.jpg]

Фотокопия из альбома НАТИ


Впоследствии (с июля 1962 года) разместили еще два дополнительных бака по 100 л, что увеличило запас хода по шоссе до 500 км. Перед двигателем, за однодисковым главным фрикционом (усиленная автомобильная муфта сцепления ЯАЗ), располагалась поперечная пятиступенчатая коробка передач, переключаемая с помощью зубчатых муфт (без синхронизаторов), и планетарнофрикционные механизмы передач и поворота (МПП) на параллельных силовых потоках. В итоге получалось девять передач для движения вперед с благоприятными, то есть небольшими отношениями между ними (в том числе четыре замедленных, с плавным переходом на них без разрыва потока мощности) с общим силовым диапазоном 9,295 (у М-2 — 7,918), а также пять расчетных радиусов поворота (без потерь мощности во фрикционах), убывающих от 17,66 м до 1,9 м с уменьшением номера передачи. В принципе, возможен был и разворот на месте путем вращения гусениц в разные стороны (на новом тягаче использовался редко), немыслимый в случае применения при БФ. Лучше, чем на М-2, получалось и маневрирование с прицепом. Такие МПП — более сложные, но и более эффективные — применялись на наших гусеничных машинах впервые. Они оказались конструктивно рациональными, поэтому впоследствии использовались на легких транспортерах и тягачах второго послевоенного поколения: МТ-П, МТ-ПБ, ГТ-Т.

Передние ведущие звездочки приводились от МПП через соосные, очень компактные планетарные бортовые передачи с приличным передаточным числом — 5,5. Их съемные двойные зубчатые венцы, отлитые из износостойкой стали, подвергнутой термообработке, с толкающим цевочным зацеплением повышали работоспособность и долговечность гусеничного движителя и уже не являлись его слабым звеном.

Мелкозвенчатые (шаг 123 мм) гусеничные цепи с открытыми шарнирами, изготовленные из высокомарганцовистой, очень стойкой к абразивному износу и ударным нагрузкам стали Гадфильда, имели траки шириной 300 мм (половина из них — без гребней) с развитыми грунтозацепами. Они обеспечивали высокие сцепные качества — коэффициент сцепления на задерненном грунте достигал 0,7 — 0,8. Для улучшения сцепления гусениц со скользким основанием (например, обледенелой зимней дорогой) на траки могли надеваться (через один) дополнительные грунтозацепы (шпоры) и уширители, обеспечивавшие тягачу без прицепа движение с боковым креном до 25°. Обычно их ставили 10 штук на гусеницу. Малый диаметр соединительных пальцев (20 мм) сравнительно легких траков и их большое количество (82 на борт) способствовали снижению сопротивления качения, особенно на больших скоростях, и улучшению динамических качеств тягача. Впоследствии, учитывая быстроходность и широкое применение тягача, были проведены большие работы по снижению износов шарниров гусениц и, что важно, — механических потерь в них. Были отработаны соединительные пальцы с химическим упрочнением, закрытые (с помощью резиновых сайлент-блочных уплотнений) шарниры с сухими металлическими и пластмассовыми парами трения. Последние настолько снижали потери в шарнирах (к тому же шаг траков был уменьшен до 107 мм), что путь свободного выбега от максимальной скорости (42 км/ч) до полной остановки увеличивался на 47,4% (до 261 м).

Вход
Поиск по сайту
Ищем:
Календарь