Онлайн книга «Бронетранспортеры Вермахта»
|
На этих же предприятиях строилась и машина командиров взводов и батарей штурмовых орудий— leichter gepanzerter Beobachtungskraftwagen Sd.Kfz.253. Она также имела полностью закрытый корпус, правда, несколько другой формы. В кормовом листе была предусмотрена посадочная дверь, а в горизонтальной крыше корпуса—люк. Кроме того, в передней части крыши располагался круглый люк для наблюдения за местностью, в крышке которого имелся лючок для размещения стереотрубы. На машине устанавливались радиостанции F.Sp.H и Fu 7. Боевая масса составляла 5,73 т, экипаж—3 человека, габариты 4700x1950x1800 мм. С июня 1940 по сентябрь 1941 года было изготовлено 285 машин этого типа. ![]() Бронетранспортер для перевозки боеприпасов Sd.Kfz.252 ![]() Sd.Kfz.252 (вид сверху) ![]() Sd.Kfz.253 (вид сверху) ![]() Машина командиров взводов и батарей штурмовой артиллерии Sd.Kfz.253 Производство легких бронетранспортеров
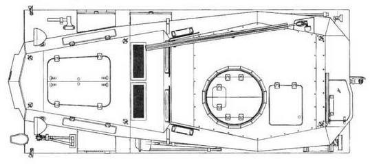
Так как производство Sd.Kfz.252 и Sd.Kfz.253 началось раньше Sd.Kfz.250, то и в войска они поступили первыми. На 1 сентября 1939 года в штат батареи штурмовых орудий входили четыре Sd.Kfz.253 и три Sd.Kfz.252. Их боевое применение ограничилось Балканской кампанией и начальным периодом войны с СССР. К тому времени в качестве командирских машин стали использовать штурмовые орудия StuG III, а перевозчики боеприпасов изготавливать на танковых шасси. Кроме того, производство двух специальных машин на том же шасси, что и Sd.Kfz.250, но с другими корпусами посчитали нецелесообразным. Серийное производство бронетранспортера, получившего обозначение Sd.Kfz.250, началось в июне 1941 года, когда была выпущена первая партия из 39 машин. С октября 1943 года приступили к выпуску модернизированной модели, так называемой neue Ausfuhrung, отличавшейся упрощенной конструкцией корпуса. Серийное производство Sd.Kfz.250 осуществлялось на заводах Biissing-NAG, Weserhutte, Wumag, Wegmann, Ritscher и Deutsche Werke с июня 1941 no 1945 год в двух вариантах: так называемом старом (Alt) и новом (Neu). ![]() Sd.Kfz.250/1 Alt ![]() Вид спереди ![]() Вид сзади Базовая серийная модификация бронетранспортера получила обозначение Sd.Kfz.250/1. С точки зрения компоновки бронетранспортер состоял из моторного отделения и находившегося за ним отделения управления, совмещенного с боевым. В последних размещался экипаж в составе водителя и командира машины, перевозимые пехотинцы или вооружение. Корпус был сварен из прямых катаных броневых листов, расположенных под большими углами наклона. В качестве элементов жесткости использовались уголки и балки таврового профиля. Толщина бортовых, лобовых и кормовых листов не превышала 14,5 мм. Крыша и днище корпуса имели толщину 8 мм. Корпус устанавливался на раму шасси, которая выполнялась из стальных коробчатых балок, сваренных из стальных уголков и усиленных поперечинами. У варианта пей корпус отличался упрощенной конструкцией (9 частей вместо 19) и по внешнему виду был близок к корпусу бронетранспортера Sd.Kfz.251. В передней части корпуса размещалось моторное отделение, где были смонтированы двигатель и топливный бак. За противопожарной перегородкой находились места водителя и командира бронетранспортера. В распоряжении водителя имелись приборы контроля работы двигателя (датчики температуры, давления масла, тахометр, указатель количества топлива), спидометр и контрольные индикаторы электрооборудования. Управлялась машина с помощью автомобильного руля и педалей сцепления, тормоза и акселератора. Справа от сиденья водителя находился рычаг переключения скоростей КП и рычаг ручного тормоза. ![]() Бронетранспортер Sd.Kfz.253 из 5-й батареи 73-го моторизованного артиллерийского полка 1-й танковой дивизии. Восточный фронт, 1941 год ![]() Бронетранспортер Sd.Kfz.250/1 ведет бой на окраине русской деревни. Восточный фронт, 1943 год По обе стороны боевого отделения устанавливались скамьи пехотинцев-десантников. Первоначально они были обтянуты дерматином, позже его заменили простым брезентом, закрепленным на каркасе из стальных трубок. Устанавливались также и деревянные скамейки. На бортах имелись держатели для крепления внутри машины вооружения десанта, состоявшего из четырех человек, — 7,92-мм карабинов 98К и 9-мм пистолетов-пулеметов МР38 и МР40. |
![Иллюстрация к книге — Бронетранспортеры Вермахта [img_6.jpg] Иллюстрация к книге — Бронетранспортеры Вермахта [img_6.jpg]](img/book_covers/077/77221/img_6.jpg)
![Иллюстрация к книге — Бронетранспортеры Вермахта [img_7.jpg] Иллюстрация к книге — Бронетранспортеры Вермахта [img_7.jpg]](img/book_covers/077/77221/img_7.jpg)
![Иллюстрация к книге — Бронетранспортеры Вермахта [img_8.jpg] Иллюстрация к книге — Бронетранспортеры Вермахта [img_8.jpg]](img/book_covers/077/77221/img_8.jpg)
![Иллюстрация к книге — Бронетранспортеры Вермахта [img_9.jpg] Иллюстрация к книге — Бронетранспортеры Вермахта [img_9.jpg]](img/book_covers/077/77221/img_9.jpg)
![Иллюстрация к книге — Бронетранспортеры Вермахта [img_10.jpg] Иллюстрация к книге — Бронетранспортеры Вермахта [img_10.jpg]](img/book_covers/077/77221/img_10.jpg)
![Иллюстрация к книге — Бронетранспортеры Вермахта [img_11.jpg] Иллюстрация к книге — Бронетранспортеры Вермахта [img_11.jpg]](img/book_covers/077/77221/img_11.jpg)
![Иллюстрация к книге — Бронетранспортеры Вермахта [img_12.jpg] Иллюстрация к книге — Бронетранспортеры Вермахта [img_12.jpg]](img/book_covers/077/77221/img_12.jpg)
![Иллюстрация к книге — Бронетранспортеры Вермахта [img_13.jpg] Иллюстрация к книге — Бронетранспортеры Вермахта [img_13.jpg]](img/book_covers/077/77221/img_13.jpg)
![Иллюстрация к книге — Бронетранспортеры Вермахта [img_14.jpg] Иллюстрация к книге — Бронетранспортеры Вермахта [img_14.jpg]](img/book_covers/077/77221/img_14.jpg)