Онлайн книга «История Древней Греции»
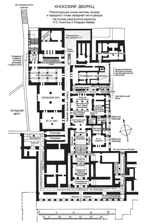
![]() а) Критский дом 2-го среднеминойского периода. С фаянсовой плитки (фасад) ![]() б) Богатый дом в Кноссе. Ок. 1600 г. ![]() в) Храмовая гробница в Кноссе. Ок. 1600 г. ![]() г) Дом в Тсангли (Фессалия). Средненеолитический период ![]() д) Дом мегаронского типа в Димини (Фессалия). Средненеолитический период Рис. 5 (а-д) ![]() е) Большой дом в Лерне (Арголида). Раннебронзовый период ![]() ж) Дом мегаронского типа в Эвтресисе (Беотия). Начало среднебронзового периода ![]() з) Тронный зал, вестибюль и крыльцо в центре дворца Пилоса. Ок. 1200 г. Рис. 5 (е-з) Мужчины обычно носили набедренную повязку, узкий пояс, а иногда короткую юбку, женщины – юбку, узкий пояс и порой корсаж с глубоким вырезом, обнажающим грудь. Мужчины брили бороды. Представители обоих полов были гибкими и худощавыми, отращивали длинные волосы и вместе присутствовали на спортивных состязаниях и публичных церемониях. На фресках мы видим акробатов: мужчины и женщины, одетые в одинаковые набедренные повязки и пояса, кувыркаются на спинах бегущих длиннорогих быков. О мирной и веселой жизни на открытом воздухе свидетельствуют сценки, изображающие боксеров в перчатках, пирующих сборщиков урожая, танцующих девушек, пьющих юношей и зрителей обоих полов, следящих за состязаниями и танцами. В великолепных изображениях цветов, деревьев, животных и рыб, выполненных нежными красками разнообразных оттенков, проявляется жизнерадостное отношение минойцев к окружающей их природе. Это самая распространенная тема живописи; военные сцены и даже изображения людей встречаются сравнительно редко. То, что минойцы были очень религиозным народом, подтверждается частотой изображения культовых предметов – двойных топоров, двойных рогов для освящения и трехногих алтарей-столиков для жертвоприношений. Сами эти предметы были найдены в многочисленных святилищах, расположенных как внутри домов, так и под открытым небом. Главной фигурой минойского культа была женщина-богиня. Известно несколько изящных статуэток, изображающих ее в человеческом облике, не нагую, а в минойском платье. Главный ее атрибут – змеи, но также и деревья, птицы и животные, причем в первую очередь бык и голубка. Ее прислужницами обычно выступают жрицы и звероголовые люди, возможно представляющие зверей, связанных с культом богини, на какой-то церемонии. Акцент делается на природе и красоте, а не на вычурности и гротеске. Мужское божество обычно изображается в виде юноши. Кроме этой главной богини и юного бога, встречаются изображения других богинь и богов, последние часто держат копье или щит, но во многих случаях трудно определить, кто именно изображен – бог, жрец или верующий. Любая попытка реконструировать внутренний смысл и значение минойской религии неизбежно опирается на более поздние аналогии и предположения, возможно уводящие нас от истины. Даже теории о том, что главная богиня этого культа является богиней-матерью, повелительницей животных и богиней деторождения и что бог-юноша – ее сын и возлюбленный, основаны в основном на хорошо известных малоазиатских культах исторического периода. С большей или меньшей уверенностью можно сказать лишь, что минойская религия была антропоморфной по своей концепции и связывала физическую красоту окружающего мира скорее с женским, а не с мужским началом, а также, что минойские верующие, изображенные с воздетыми руками или ладонями, прижатыми к вискам, испытывали скорее благоговение и восторг, а не страх перед сверхъестественным. Нет никаких серьезных доказательств и в поддержку мнения, что минойцы поклонялись умершим; напротив, простота общих погребений, при которых труп связывали и запихивали в большой сосуд или в глиняный гроб, говорит об обратном. Видимо, лишь более зажиточных людей хоронили в высеченных в скале склепах, простых шахтных могилах или в гробницах, устроенных рядом с подножием шахты. В годы расцвета минойской цивилизации на острове главенствовал Кносс. О его процветании выразительнее всего свидетельствует громадный Кносский дворец с величественными входами и залами, широкими лестницами и обширными кладовыми, изысканными росписями и превосходной кладкой. О значении религиозного культа свидетельствует святилище с колоннами на центральном дворе. Расположенная к югу от дворца изящная храмовая гробница (рис. 5, б), где из склепа с колоннами можно попасть в погребальную камеру, дает основания предположить, что в каком-то виде практиковался и культ умерших правителей Кносса. Согласно более поздней греческой традиции, правителя Кносса звали Минос, он был сыном Зевса и Европы, раз в девять лет советовался с Зевсом, а его супругой была Пасифая, дочь Солнца. Вполне вероятно, что правящие царь и царица Кносса брали себе такие имена в качестве династических титулов и обожествлялись, подобно современным им египетским фараонам. Возможно, на так называемом барельефе царь-жрец (с. 31) изображен Минос, царствовавший в XV в. О богатстве Кносса можно судить по широкому использованию минойскими ремесленниками драгоценных металлов и камней и по сокровищам из хранилищ дворца. Эти сокровища инвентаризированы на глиняных табличках по разновидностям и по стоимости. В хранилищах найдены и медные слитки, которые часто встречаются на острове. Эти слитки, без сомнения, были важны для торговли и, возможно, служили для обмена; однако никаких мелких денег не найдено. Процветание Кносса нельзя приписать исключительно эксплуатации природных ресурсов острова. Скорее всего, его источником являлась заморская торговля. ![]() Рис. 6. Реконструкция плана парадных залов дворца. Ок. 1550–1400 гг. В период 1600–1400 гг. Крит поддерживал очень тесные связи с Египтом. На фреске в могиле Сеннемут в египетских Фивах изображены послы, несущие золотые и серебряные сосуды минойской работы. На фреске в гробнице Рехмир показан прием чужеземных послов с дарами, и некоторые из них, судя по их платью и подношениям, возможно минойцы. Надпись на фреске гласит: «Мирное прибытие великих людей Кефтиу и островов посреди моря». Где находилась страна Кефтиу, неизвестно. Возможно, это был Крит, так как он главенствовал среди морских островов и, конечно, имел дипломатические отношения с Египтом. Кроме того, критские художники на свой лад перерабатывали мотивы, обычные для египетского искусства, такие, как обезьяны и кошки на фресках и папирус на глиняных сосудах. На фреске в Кноссе изображены чернокожие солдаты, возможно наемники из Ливии или Египта. Главный торговый путь в Египет шел из Комо около Феста в дельту Нила, либо прямо, либо через Ливию, где вдоль берега проходит восточное течение. В самом Египте найдено мало произведений критского искусства этого периода, в частности, только несколько предметов минойской или микенской посуды. Поэтому считается, что основными статьями критского экспорта в Египет были шкуры, мясо, фрукты, лес и металлы, а не масло и вино, которое перевозили в кувшинах. Возможно, торговый путь шел через Кипр, так как кипрское линейное письмо на табличке приблизительно 1500 г., найденной в Энкоми на Кипре, вероятно, восходит к минойскому линейному письму. В этот период минойское влияние на Угарит и Библ в Сирии было гораздо слабее, чем в 1700–1600 гг. |
![Иллюстрация к книге — История Древней Греции [i_008.jpg] Иллюстрация к книге — История Древней Греции [i_008.jpg]](img/book_covers/075/75969/i_008.jpg)
![Иллюстрация к книге — История Древней Греции [i_009.jpg] Иллюстрация к книге — История Древней Греции [i_009.jpg]](img/book_covers/075/75969/i_009.jpg)
![Иллюстрация к книге — История Древней Греции [i_010.jpg] Иллюстрация к книге — История Древней Греции [i_010.jpg]](img/book_covers/075/75969/i_010.jpg)
![Иллюстрация к книге — История Древней Греции [i_011.jpg] Иллюстрация к книге — История Древней Греции [i_011.jpg]](img/book_covers/075/75969/i_011.jpg)
![Иллюстрация к книге — История Древней Греции [i_012.jpg] Иллюстрация к книге — История Древней Греции [i_012.jpg]](img/book_covers/075/75969/i_012.jpg)
![Иллюстрация к книге — История Древней Греции [i_013.jpg] Иллюстрация к книге — История Древней Греции [i_013.jpg]](img/book_covers/075/75969/i_013.jpg)
![Иллюстрация к книге — История Древней Греции [i_014.jpg] Иллюстрация к книге — История Древней Греции [i_014.jpg]](img/book_covers/075/75969/i_014.jpg)
![Иллюстрация к книге — История Древней Греции [i_015.jpg] Иллюстрация к книге — История Древней Греции [i_015.jpg]](img/book_covers/075/75969/i_015.jpg)
![Иллюстрация к книге — История Древней Греции [i_016.jpg] Иллюстрация к книге — История Древней Греции [i_016.jpg]](img/book_covers/075/75969/i_016.jpg)