Онлайн книга «Самоходки Сталина. История советской САУ 1919 - 1945»
|
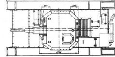
По окончании исследований и испытаний, в декабре 1931 г., вышло постановление следующего содержания: "СУ-1 испытания выдержала и может быть допущена для проведения дальнейших работ по след. направлениям: 1. Угол вертикального обстрела увеличить до 20 гр, для чего повысить высоту цапф на 40 мм. 2. Горизонтальный обстрел довести до +/- 20. В рубке иметь два открывающихся окна для наблюдения цели. Высоту рубки – увеличить, чтобы не мешалась наводчику. 3. Расположение маховиков должно быть удобно для наводчика и не отрывать его от прицела. 4. Предусмотреть возможность проведения спуска как рукой со шнура, так и ногой – педалью. 5. В бортах рубки предусмотреть шаровые яблоки для пулеметов Дегтярева. Заднее яблоко установить с расчетом пропуска через него троса для отката орудия. 6. Амбразура орудия должна прикрываться дополнительным щитком для защиты от пуль и осколков 7. Трубку-визир прямой наводки заменить прицелом-телескопом с полем зрения 10 гр. и с резиновым наглазником… Наводчик также должен иметь собственное окно или люк для обзора поля боя… 8. Для предохранения номеров орудия от отката предусмотреть откидные щитки или иное ограждение. 9. Должны быть предусмотрены специальные места для заряжающего и рации. 10. Боекомплект разместить в гнездах. 11. Предусмотреть перевозимый пулемет Дегтярева и 10 магазинов к нему для обороны машины от пехоты. 12. Необходимо наличие переговорного устройства самолетного типа. 13. Противооткатное приспособление прикрыть бронекожухом. Переделанных таким образом самоходов необходима партия в количестве 100 шт. Подписи: председатель 4 секции УММ Павлов Зам. Нач. 5 секции УММ Сакс Член НТК ГАУ Анисимов" Штурмовая самоходная пушка СУ-1, 1932 г. Фото из акта испытаний. ![]() Проект улучшенной САУ был принят летом 1932 г., но изготовление машины отменено ввиду принятия решения о вооружении аналогичной артсистемой танка Т-26 с большой вращающейся башней. Самоходный дебют Кировского завода В том же году КБ завода "Красный путиловец" (с 1933 г. "Кировский завод") предложил свой вариант проекта 76,2-мм самоходной установки на базе легкого танка Т-26. Проектирование СУ, названной "Путиловец", велось ведущим инженером В.И. Ульяновым под руководством Маханова. Артиллерийская часть проекта имела индекс А-39. Проект СУ "Путиловец" с башенной установкой А-39, 1932 г. ![]() ![]() ![]() ![]() От СУ-1 проект выгодно отличался наличием вращающейся пушечной платформы (башни), установленной на подбашенной коробке на шариковой опоре морского типа. Вооружение САУ должно было состоять из 76,2-мм пушки Л-5 с клиновым вертикальным полуавтоматическим затвором, гидравлическим тормозом отката и пружинным телескопическим накатником. Работы над Л-5 велись по ТТТ, аналогичным требованиям, выдвинутым при создании пушки ПС-3. Экипаж САУ состоял из трех человек – командира, наводчика и замкового (заряжающего), причем замковый совмещал свои обязанности с обязанностями механика-водителя. Посадка экипажа в машину производилась через входную двухстворчатую дверь в корме башни. Наводчик располагался слева от орудия и имел прицелы РМ – раздельной наводки для стрельбы с закрытых позиций и телескоп для стрельбы прямой наводкой. Подъемный механизм имел две рукоятки управления – по горизонтали у наводчика, а по вертикали у замкового, так как орудие Л-6 имело раздельную наводку. Углы наведения орудия по вертикали составляли от -7° до +43°, расчетная дальность стрельбы – 11000 м. Поворот башни можно было осуществлять как вручную, так и с помощью электромотора двухскоростным механизмом поворота. Замковый (заряжающий) располагался справа от орудия и обслуживал 7,62-мм пулемет ДТ в шаровой установке лобового листа. Поскольку он совмещал обязанности с обязанностями механика-водителя, вести огонь САУ могла только на остановках. Командир размещался в кормовой части боевого отделения позади наводчика. Для лучшего обзора он имел наблюдательный бронеколпак с откидными дверцами и смотровыми щелями на крыше башни. Командир мог управлять прибором установки дистанционных трубок шрапнелей. Боекомплект машины в количестве 68 выстрелов к пушке и 1134 патронов к пулемету ДТ (18 дисков) размещался под полом поворотной платформы. Однако машина получилась очень высокой и недостаточно устойчивой. Шариковая опора башни, механизм поворота, прибор установки шрапнельных трубок, приборы наблюдения, в том числе стробоскопический, делали машину очень сложной и дорогой. Кроме того, 76,2-мм пушка Л-6 так и не вышла из стадии чертежей. Несмотря на большую привлекательность, рассмотренная САУ завода "Красный Путиловец" так и не вышла из стадии эскизного проектирования. 2.3. Самоходки вторых эшелонов Самоходная артиллерия поддержки пехоты считалась в то время оружием "второго эшелона", и потому для его создания предписывалось использовать шасси сельскохозяйственных и строительных гусеничных тракторов, а броневую защиту ограничить противоосколочным щитом. Задачи этих САУ определялись следующим образом: "Назначение – сопровождение и поддержка аттаки танков вторых эшелонов и огневая поддержка пехоты. Шасси – трактора типа "Коммунар", "Сталинец", масса 9-10 тонн, скорость 12-15 км/ч. Вооружение – 76 мм полковая пушка (горизонтальный обстрел, не менее 300 град, и вертикальный в 30 град.) и 76мм зенитная пушка кругового обстрела". Ориентир на использование "гражданских" тракторов был особо привлекательным с точки зрения двойного использования матчасти (в мирное время для вспашки полей и строительства, в военное – для базы САУ и транспортеров пехоты) и простого освоения боевых машин гражданскими специалистами. К тому же "гражданские" тракторы были много дешевле боевых машин специальной постройки. |
![Иллюстрация к книге — Самоходки Сталина. История советской САУ 1919 - 1945 [pic_31.jpg] Иллюстрация к книге — Самоходки Сталина. История советской САУ 1919 - 1945 [pic_31.jpg]](img/book_covers/075/75586/pic_31.jpg)
![Иллюстрация к книге — Самоходки Сталина. История советской САУ 1919 - 1945 [pic_32.jpg] Иллюстрация к книге — Самоходки Сталина. История советской САУ 1919 - 1945 [pic_32.jpg]](img/book_covers/075/75586/pic_32.jpg)
![Иллюстрация к книге — Самоходки Сталина. История советской САУ 1919 - 1945 [pic_33.jpg] Иллюстрация к книге — Самоходки Сталина. История советской САУ 1919 - 1945 [pic_33.jpg]](img/book_covers/075/75586/pic_33.jpg)
![Иллюстрация к книге — Самоходки Сталина. История советской САУ 1919 - 1945 [pic_34.jpg] Иллюстрация к книге — Самоходки Сталина. История советской САУ 1919 - 1945 [pic_34.jpg]](img/book_covers/075/75586/pic_34.jpg)
![Иллюстрация к книге — Самоходки Сталина. История советской САУ 1919 - 1945 [pic_35.jpg] Иллюстрация к книге — Самоходки Сталина. История советской САУ 1919 - 1945 [pic_35.jpg]](img/book_covers/075/75586/pic_35.jpg)