Онлайн книга «Самоходки Сталина. История советской САУ 1919 - 1945»
|
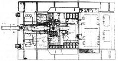
Согласно имеющемуся описанию опытного образца, СГ-122А была переделана из штурмового орудия StuG III Ausf С, или Ausf D. Боевая рубка штурмового орудия с демонтированной крышей была несколько обрезана по высоте. На оставшемся поясе была наварена простая призматическая коробка из 45-мм (лоб) и 35-25-мм (борта и корма) броневых листов. Для необходимой прочности горизонтального стыка он был усилен снаружи и изнутри накладками толщиной 5-8 мм. Внутри боевого отделения на месте станка 75-мм орудия был смонтирован новый станок гаубицы М-30, изготовленный по типу немецкого. Боекомплект гаубицы размещался по бортам САУ, а несколько снарядов "оперативного использования" – на дне позади гаубичного станка. Экипаж СГ-122(А) состоял из пяти человек: механика-водителя (который занимал место слева-впереди боевой рубки); командира САУ, он же наводчик по горизонтали (располагался позади механика-водителя левым боком вперед); позади него также боком по ходу машины располагался первый заряжающий (он же радист); напротив командира САУ правым плечом по ходу машины располагался наводчик по вертикали (гаубица М-30 имела раздельную наводку); позади него также правым плечом вперед стоял второй заряжающий. Для входа-выхода экипажа машина имела два люка. Основной размещался в корме рубки (и частично в крыше). Второй, резервный, находился в наклонной части лобовой брони рубки перед наводчиком по вертикали. Для связи с себе подобными в машине была оставлена немецкая радиостанция. О средствах связи внутри СГ- 122(А) сведений нет. Интерьер штурмовой самоходной гаубицы СГ-122(А). 1942 г. ![]() ![]() ![]() Гаубица была испытана пробегом по гравийному шоссе и пересеченной местности (общий пробег составил 480 км), а также стрельбой с открытых и закрытых позиций (66 выстрелов). Испытания подтвердили высокие боевые возможности СГ-122(А), однако комиссия из представителей техотдела НКВ и отдела главного конструктора НКТП отметила большое количество недостатков, главными среди которых были: 1. Недостаточная проходимость СГ-122(А) на мягком грунте и большая нагрузка на передние опорные катки. 2. Большая нагрузка на командира САУ, который должен был осуществлять наблюдение за местностью, наводить орудие, командовать расчетом и т.д. 3. Недостаточный запас хода. 4. Невозможность ведения огня из личного оружия через бортовые амбразуры из-за неудачного их расположения (мешал боекомплект). 5. Недостаточная прочность стыков бортовых и кормовых листов рубки. 6. Быстрая загазованность боевого отделения из-за отсутствия вентилятора. Вскоре заводу было отдано распоряжение об изготовлении нового варианта самоходной гаубицы с учетом устранения отмеченных недостатков. Рекомендовалось также провести разработку боевой рубки для установки ее на танк PzKpfw III, которого в наличии имелось больше, чем ходовых частей штурмовых орудий. После рассмотрения недостатков и доработки проекта завод № 592 изготовил два улучшенных варианта СГ-122, отличавшихся типом примененного шасси (штурмового орудия и танка PzKpfw III), которые имели следующие отличия от прототипа: 1. Изготовлена рубка из более тонких 35-мм (лоб) и 25-мм (борта и корма) листов. Это позволило снизить массу машины и несколько поднять ее проходимость, тем более что второй вариант испытывался с "зимней" гусеницей. 2. Было изменено штатное расписание экипажа СГ-122. Теперь командиром САУ стал наводчик по вертикали, который получил собственный люк в крыше рубки (люк в лобовом листе был аннулирован для увеличения снарядостойкости). Для обзора местности командир получил артиллерийский разведывательный перископ, который мог выдвигаться в специальном стакане. Кроме того, командирский люк СГ-122 "улучшенной" оборудовался креплением для перископической панорамы. 3. Из-за того, что раздвижной лючок панорамного прицела заедало при испытаниях, на "улучшенной" машине он был заменен на распашной. 4. Бортовые амбразуры для стрельбы из личного оружия немецкого типа были аннулированы. Вместо них приняли бортовые амбразуры ОГК НКТП, разработанные для "76-мм штурмового орудия поддержки" завода № 37, которые были к тому же более удачно размещены. Через них можно было вести огонь не только из "нагана", но даже из ТТ и ППШ, поскольку диаметр отверстия амбразуры был значительно больше прежних. 5. Орудийная установка была облегчена. Для упрощения заряжания орудие было дополнено откидным лотком. Над казенной частью орудия на крыше разместили электрический вытяжной вентилятор. 6. Для увеличения запаса хода в задней части САУ разместили коробчатые топливные баки от танков БТ и Т-34. Нормализовали возимый ЗИП и шанцевый инструмент, максимально использовав в нем отечественные компоненты. 7. Радиостанция была перенесена с левого борта на правый и размешена внутри рубки, а бортовую коробку ликвидировали для упрощения производства. Специально по заказу завода № 592 для СГ-122 "улучшенной" Уралмашзавод (УЗТМ) разработал и отлил бронемаску орудия, которая была приспособлена для серийного выпуска, а также лучше защищала от пуль и осколков. В конце сентября 1942 г. завод получил заказ на 10 машин улучшенной конструкции, который до декабря 1942 г. не выполнялся ввиду непоставки шасси немецких танков. Интересно отметить, что сотрудники заводов № 37 и № 592, ведущих изготовление САУ утверждают, что отгрузка СГ-122 началась в марте 1942 г., и при этом говорят, что заводиться немецкие моторы на мартовских морозах отказывались и механикам приходилось заливать прямо в карбюраторы горящий бензин, чтобы реанимировать их. Автор же считает, что этот эпизод относится, скорее к весне 1943 г., когда на фронт начали отгружать уже СУ-С-1, более известные под именем СУ-76(И). Заказ же на СГ-122 выполнен в полном объеме не был, так как уже в конце января последовало распоряжение об остановке работ по САУ на трофейном шасси ввиду начала работ над опытным образцом СГ-122 на шасси танка Т-34. Сегодня нет точных данных об общем количестве изготовленных СГ-122, но вместе с StuG III, перевооруженными 76-мм пушками, до конца 1942 г. заводом их было сдано 8 шт., а также 2 опытные машины были изготовлены на шасси среднего танка Т-34. К 15 ноября 1942 г. на артиллерийском полигоне под Свердловском имелось три СГ-122 на шасси трофейных танков и две на шасси штурмовых орудий. Кроме того 5 декабря на Гороховецкий полигон для сравнительных Государственных испытаний с У-35 (будущей СУ-122) конструкции Уралмашзавода была доставлена первая СГ-122 завода № 592 на шасси Т-34. А 11 февраля 1943 г. в виду принятия на вооружение У-35, все изготовленные САУ (в том числе и опытные), хранившиеся на территории завода № 592, приказом по НКВ были переданы для формирования учебных самоходных частей и подразделений. |
![Иллюстрация к книге — Самоходки Сталина. История советской САУ 1919 - 1945 [pic_135.jpg] Иллюстрация к книге — Самоходки Сталина. История советской САУ 1919 - 1945 [pic_135.jpg]](img/book_covers/075/75586/pic_135.jpg)
![Иллюстрация к книге — Самоходки Сталина. История советской САУ 1919 - 1945 [pic_136.jpg] Иллюстрация к книге — Самоходки Сталина. История советской САУ 1919 - 1945 [pic_136.jpg]](img/book_covers/075/75586/pic_136.jpg)
![Иллюстрация к книге — Самоходки Сталина. История советской САУ 1919 - 1945 [pic_137.jpg] Иллюстрация к книге — Самоходки Сталина. История советской САУ 1919 - 1945 [pic_137.jpg]](img/book_covers/075/75586/pic_137.jpg)