Онлайн книга «Строительство и архитектура в Древнем Египте»
|
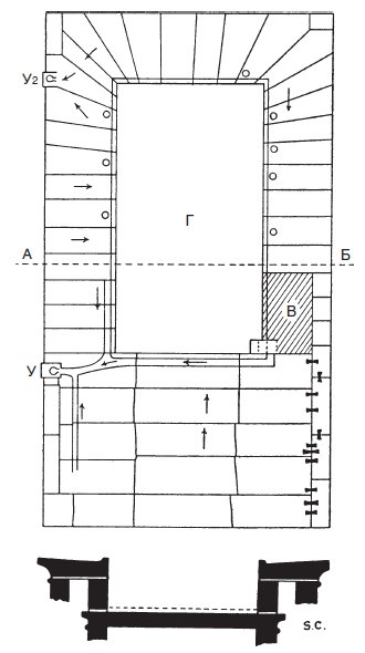
В храмах эпохи Древнего царства боковые швы между плитами крыши заполнялись строительным раствором (возможно, что и сама крыша покрывалась толстым слоем такового). Другого способа защиты швов от проникновения воды в ту пору не знали. К Новому царству, а может быть, и раньше, в швах плит стали прорубать квадратные каналы – половину в одной плите, половину – в другой. В этот канал укладывали каменный брус. С таким каналом мы встречаемся в храме Сети I в Курне, в Рамессеуме, в храме Рамсеса III в Карнаке и во многих других, где плиты крыши остались более или менее неповрежденными. Другой способ был таким: по обе стороны канала, проходившего поверх прямого шва между плитами (рис. 89), оставляли выступы и заполняли этот канал длинным каменным брусом, который сверху имел закругленные края. Таким образом создавался скат, по которому дождевая вода стекала и не попадала в шов. ![]() Рис. 90. Разрез каменного бруса, вставлявшегося в углубление в шве между плитами крыши храма Рамсеса III в Мединет-Абу В этом случае не надо было полагаться на строительный раствор. В храме Сети I в Абидосе, где был применен именно такой способ защиты от дождя, каналы, проложенные в швах, немного не доходят до фасада храма. Вероятно, это было сделано для того, чтобы не были видны каменные брусья, проложенные в них. В храме Рамсеса III в Мединет-Абу высота скатов меньше, чем в Абидосе, а по краям канала нет выступов (рис. 90). Такая конструкция была менее эффективной, чем предыдущая, но она меньше мешала процессиям, которые проходили по крыше храма. На восточной крыше первого двора храма в Мединет-Абу скаты, почти все отличающиеся превосходным качеством, состоят из четырех каменных брусьев, располагавшихся между каждой парой плит крыши. Они имели длину около 4,27 м. В храме Рамсеса III в Карнаке и некоторых других сооружениях Нового царства углубления в швах заполнены квадратным бруском из камня, который не возвышается над плитами. Единственное достоинство этой конструкции заключалось в том, что дождевой воде приходилось преодолевать большее расстояние, чем в тех случаях, когда швы делали прямыми. Впрочем, вполне возможно, что во многих случаях защитные скаты были стесаны в более поздние времена, чтобы крыша стала гладкой. ![]() Рис. 91. Каналы, пробитые в плите крыши, по которым стекала дождевая вода. Храм Сети I в Курне Для того чтобы вода удалялась быстрее, один из участков крыши часто делали наклонным, стараясь при этом снять как можно меньше камня и направить воду в такое место, откуда она могла стечь на землю (рис. 91). Места стока не всегда располагались в конце блока, их устраивали сбоку и даже в середине, в зависимости от того, где проходил главный желоб, по которому вода попадала в водосток. Устройство этих желобов в разных храмах разное. Самые лучшие образцы находятся в храмах Сети I в Курне (рис. 92) и Абидосе (рис. 93). В последнем, где углубление в швах пересекает желоб, в камне вырублено квадратное отверстие со стороной около 20 см, которое, вне всякого сомнения, было заполнено камнем, а желоб проходил через него. Скаты, естественно, не доходили до этих пересечений. ![]() Рис. 92. План участка нижней части крыши храма Сети I в Курне. На нем стрелками показано направление потока воды, стекавшего с плит по желобам (А и Б – более высокие участки крыши) Другой способ избавления от дождевой воды заключался в том, что крышу делали наклонной, чтобы вода стекала в нужном направлении. Этот способ использовался в сочетании с мозаикой из мелких блоков, уложенных поверх плит (рис. 94). Хотя он применялся чаще всего в храмах более позднего времени, таких как Дендера, система покрытия крыши мозаикой из многоугольных блоков была известна еще в начале Нового царства. ![]() Рис. 93. План участка крыши храма Сети I в Абидосе, на котором показано направление стока воды с каждой плиты в водостоки (Ж). На участке Б крыша разрушена. Т – каменные брусья со скатами, заполнявшие углубления в швах между плитами, М – отверстия для света или вентиляции В небольшом храме Тутмеса III в Мединет-Абу на одном участке плиты крыши покрыты мозаикой. С краю имеется небольшой выступ, который не позволяет воде стекать вниз и направляет ее туда, где оборудован слив. На другом участке этой же крыши защитные скаты были убраны, а поверх них уложена мозаика (рис. 90). ![]() Рис. 94. Мозаика из многоугольных блоков, уложенных поверх плит крыши. Храм Дендеры, римский период В некоторых храмах, например в Праздничном зале Тутмеса III в Карнаке, не видно никакой системы слива воды. В швах между блоками плит нет желобов, а сама поверхность плиты не имеет наклона. Вероятно, вся крыша этого зала была покрыта толстым слоем строительного раствора или штукатурки. В храме Исиды на острове Филэ крыша была покрыта мозаикой из небольших блоков, но большая часть их исчезла. Для стока воды здесь не было прорублено каналов, а блоки мозаики имели общий наклон. Вода благодаря этому наклону направлялась в водостоки и сливалась сначала в небольшие открытые дворики, а потом – за пределы храма. ![]() Рис. 95. Система водостоков на крыше маммизи на острове Филэ. Ниже изображено сечение этой крыши по линии АБ, при этом углубление в верхней части карниза сильно преувеличено. В – обвалившийся участок крыши; Г – нижняя крыша, покрытая мозаикой из многоугольных блоков; У и У2 – водостоки. Стрелками показано направление течения воды Маммизи, или «Дом рождения», на острове Филэ имеет почти такую же систему водостоков, что и Большой храм. Вода с верхней крыши (рис. 95) направлялась к двум водостокам. Около главного водостока скорость потока увеличивалась за счет каналов, высеченных в плитах. На крыше этого храма не было мозаики из мелких блоков. Нижняя крыша (Г) имела свои собственные водостоки, по которым вода сливалась на колоннаду, располагавшуюся внизу. На ее крыше некоторые плиты установлены почти радиально и отличаются разнообразием форм. Такое устройство крыши можно увидеть в святилищах XXV династии в Мединет-Абу. |
![Иллюстрация к книге — Строительство и архитектура в Древнем Египте [i_095.jpg] Иллюстрация к книге — Строительство и архитектура в Древнем Египте [i_095.jpg]](img/book_covers/074/74587/i_095.jpg)
![Иллюстрация к книге — Строительство и архитектура в Древнем Египте [i_096.jpg] Иллюстрация к книге — Строительство и архитектура в Древнем Египте [i_096.jpg]](img/book_covers/074/74587/i_096.jpg)
![Иллюстрация к книге — Строительство и архитектура в Древнем Египте [i_097.jpg] Иллюстрация к книге — Строительство и архитектура в Древнем Египте [i_097.jpg]](img/book_covers/074/74587/i_097.jpg)
![Иллюстрация к книге — Строительство и архитектура в Древнем Египте [i_098.jpg] Иллюстрация к книге — Строительство и архитектура в Древнем Египте [i_098.jpg]](img/book_covers/074/74587/i_098.jpg)
![Иллюстрация к книге — Строительство и архитектура в Древнем Египте [i_099.jpg] Иллюстрация к книге — Строительство и архитектура в Древнем Египте [i_099.jpg]](img/book_covers/074/74587/i_099.jpg)
![Иллюстрация к книге — Строительство и архитектура в Древнем Египте [i_100.jpg] Иллюстрация к книге — Строительство и архитектура в Древнем Египте [i_100.jpg]](img/book_covers/074/74587/i_100.jpg)