Книга Алексеевы, страница 57 – Степан Балашов

Авторы: А Б В Г Д Е Ж З И Й К Л М Н О П Р С Т У Ф Х Ч Ш Ы Э Ю Я
Книги: А Б В Г Д Е Ж З И Й К Л М Н О П Р С Т У Ф Х Ц Ч Ш Щ Ы Э Ю Я
Бесплатная онлайн библиотека LoveRead.ec

Онлайн книга «Алексеевы»

📃 Cтраница 57

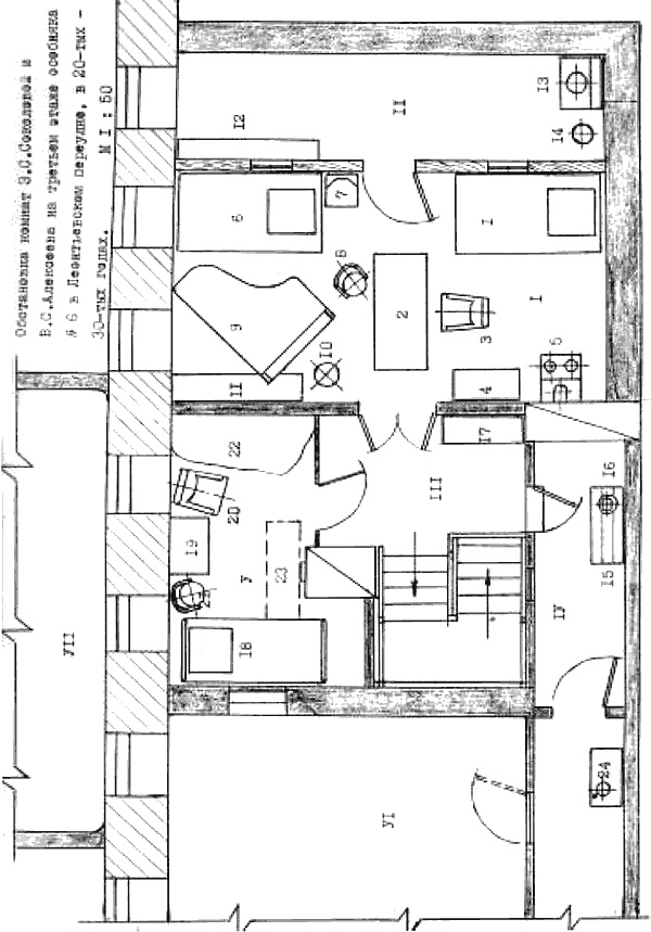
13. Умывальник;

14. Грязное ведро;

15. Простой, сколоченный из досок стол;

16. Керосинка;

17. Мягкая скамейка (банкетка), обитая зеленой тканью, для учеников, ожидавших занятий с З. С. Соколовой или приёма у нее;

18. Металлическая кровать;

19. Стол;

20. Кресло;

21. Венский стул;

22. Какие-то складированные вещи, прикрытые большим куском серой или серо-голубой ткани;

23. Банкетка, временно приносимая для устройства постели второго человека;

24. Кухонный стол с примусом С. А. Спиридонова.

Иллюстрация к книге — Алексеевы [i_004.jpg]

Примечание.(По воспоминаниям живших в комнатах З. С. Соколовой и В. С. Алексеева их племянницы А. В. Севастьяновой и племянника С. С. Балашова.)

Единственным украшением этой комнатки была висевшая на стенке около кровати фотография композитора Джакомо Пуччини с его дарственной надписью (как мне запомнилось), с которым B. C. Алексеев дружил, оперы которого очень любил и ценил за их музыкальную эмоциональность и широту музыкальных фраз. По просьбе Пуччини Владимир Сергеевич знакомит его с творчеством современных, в тот период, русских композиторов – Скрябина, Рахманинова, Стравинского, высылая в Италию нотные издания.


Но вернемся на третий этаж Леонтьевского особняка. По рассказам Виктора Петровича Мирского, солиста (тенора) Оперного театра имени К. С. Станиславского, который сам жил некоторое время в разных помещениях Леонтьевского особняка, в том числе на сцене репетиционного зала Оперной студии (на сцене же одно время проживал и другой солист, баритон Юрий Павлович Юницкий), на третьем этаже особняка в 1931—1935 годах жили певицы Оперной студии-театра Лидия Вениаминовна Воздвиженская – одна из ведущих сопрано и Нина Сергеевна Аверкиева – меццосопрано.

В этой обстановке коммунальной жизни, которую даже нельзя назвать коммунальной квартирой, а вернее всего коммунальным коридором, не было никаких элементарных жизненно необходимых удобств – ни водопровода, ни туалета, ни кухни. Конечно, все это имело место в особняке, но не на третьем этаже, а только на втором (у Алексеевых-Станиславских, и маленький туалет с раковиной в гардеробной Оперной студии, о которой ранее уже было сказано) и на первом этаже. Таким образом, проживавшие на третьем этаже оказались, если можно так сказать, на положении парий! К примеру, чтобы набрать в чайник, бидон или ведро воды, требовалось спуститься на второй этаж в помещение Оперной студии, где всегда толпился народ, либо, что, казалось бы, проще, по винтовой, со скрипящими ступенями лестнице – в квартиру Станиславских, где, конечно, разрешат набрать воды из кухонной раковины, но винтовая лестница кончается как раз против двери в спальню Константина Сергеевича, который очень часто болел в тридцатые годы и беспокоить его было неудобно. Жильцы третьего этажа умывались и мыли посуду у себя в комнатах, а потом нужно было выносить ведра с грязной водой все в тот же туалет Оперной студии или, кружным путем, на первый этаж, что было далеко и неудобно, так как опять приходилось беспокоить соседей по третьему этажу, у которых имелся выход на черную лестницу, или же опять – Станиславских, проходя туда через их квартиру.

Ванна была только у Станиславских, и капитально мыться ходили в бани, впрочем, в те годы так поступали все.

Ближайшим соседом Зинаиды Сергеевны был Сергей Александрович Спиридонов, человек незаурядный, и о нем стоит немного рассказать. Говорили, что Спиридоновы были купцами (судя по сохранившимся фотографиям обстановки их дома и купленным у них вещам, довольно состоятельными); Сергей Александрович Спиридонов родился в 1870 году, до конца своих дней прожил в Леонтьевском особняке и скончался 8 марта 1945 года, в возрасте 75 лет, не дожив два месяца до окончания войны. Юрист по образованию, Сергей Александрович был высококультурным, хорошо воспитанным человеком, владел шестью или семью языками, в том числе латинским и греческим; после Октябрьской революции работал в Наркомпросе, откуда перешел в Отдел комплектования тогда еще Румянцевского музея, а затем – в Публичную библиотеку имени В. И. Ленина. Был он среднего роста, плотный по сложению человек, с седеющими (в середине 30-х годов) подстриженными «ежиком» волосами на круглой голове; всегда предупредительный и безукоризненно вежливый, несмотря на проскальзывающую раздражительность, когда он полагал, что его не видят. В длинном коридоре третьего этажа, как говорят, «на самом ходу», где-то близ двери в комнату Сергея Александровича, стоял его кухонный, ничем не примечательный стол с примусом и какой-то кухонной посудой. Примус был мучителем всегда корректного, подчеркнуто вежливого и выдержанного Сергея Александровича – примус плохо держал давление, спускал воздух, заставляя своего хозяина непрестанно следить за ним во время приготовления еды и кипячения чайника. Примус особенно нервировал по утрам, когда приходилось спешить на работу – опаздывать в те времена было опасно, это грозило выговором, а в конце тридцатых годов опоздание более чем на двадцать минут грозило отдачей виновного под суд! Бедный Сергей Александрович непрестанно бегал из комнаты в коридор, подкачивал злополучный примус, раздраженно тихо приговаривая: «Черт, черт, черт!!!»

Сергей Александрович был женат на милой интеллигентной приветливой женщине (с ней, при наездах в Москву, дружила моя мама), которую звали Ниной Николаевной; она не жила постоянно в Леонтьевском особняке, в Москве у нее где-то была своя комната. За С. А. Спиридоновым она была вторым браком; от первого брака у нее имелась дочь Елизавета Викторовна, занимавшаяся частным образом с Зинаидой Сергеевной и работавшая статисткой в Оперном театре имени К. С. Станиславского. В 1935 году Елизавета Викторовна вышла замуж за солиста этого театра Виктора Петровича Мирского, о котором уже ранее говорилось и который рассказал мне о кончине Сергея Александровича Спиридонова.

Зинаида Сергеевна готовила свою немудрёную еду или на керосинке, располагавшейся на простом дощатом столе, поставленном в коридоре третьего этажа, сразу за дверью с лестничной площадки, или в своей комнате – на специально выложенной, небольшой (ныне уже не существующей) печке-плите, обогревавшей комнату в зимнее время. Само собой разумеется, что в летнее время топить печку было невозможно, и приготовление пищи целиком переносилось на керосинку.

Теперь мало кто представляет себе, что значит готовить на керосинке! Чайник на ней закипал (проверено по часам) в течение 45 минут; нужно было непрерывно следить за поведением керосинки, фитили которой, быстро разгораясь, начинали так коптить, что черные, жирные, пахнущие керосином хлопья копоти, разносимые токами теплого и холодного окружающего воздуха начинали летать по коридору и всей лестничной площадке, всё пачкая и вызывая естественное недовольство соседей. Можно себе представить, как приготовление себе еды на керосинке мешало всегда напряженной работе Зинаиды Сергеевны, которая очень часто часами писала у себя в комнате.

Когда в Леонтьевском особняке появлялась мама, одна или со мной, мы жили в комнатке, предназначенной для отдыха Владимира Сергеевича, о которой уже было рассказано, и керосинка Зинаиды Сергеевны начинала работать в усиленном режиме, обеспечивая питание хозяйке и её гостям, то есть нам. Но первейшей обязанностью гостей являлось следить за злополучной керосинкой, к которой приходилось подходить и подкручивать ее фитили через каждые 3-5 минут.

Реклама
Вход
Поиск по сайту
Ищем:
Календарь