Книга Германские субмарины Тип XVII Крупным планом, страница 5 – Сергей В. Иванов

Авторы: А Б В Г Д Е Ж З И Й К Л М Н О П Р С Т У Ф Х Ч Ш Ы Э Ю Я
Книги: А Б В Г Д Е Ж З И Й К Л М Н О П Р С Т У Ф Х Ц Ч Ш Щ Ы Э Ю Я
Бесплатная онлайн библиотека LoveRead.ec

Онлайн книга «Германские субмарины Тип XVII Крупным планом»

📃 Cтраница 5

удельный расход топлива 0,287 кг/лс-ч

мощность турбины 2595 лс при 13689 об/мин

Иллюстрация к книге — Германские субмарины Тип XVII Крупным планом [pic_22.jpg]

Схема расположения шпангоутов к конструкции подлодки И'К 202.

Иллюстрация к книге — Германские субмарины Тип XVII Крупным планом [pic_23.jpg]

Стенд для наземных испытаний турбин Вальтера, устанавливаемых на подлодки XIII серии, был расположен на территории его завода, находившегося на улице Пройендорф к Танненберге.


Из-за задержки в поставках оборудования, затянувшихся подготовительных работ и испытаний закладка подлодки Wa 201 смогла состояться только I декабря 1942 г. Сборка подлодки состоялась на монтажной площадке под большим краном у прибрежной стенки, выложенной камнем. В феврале-марте 1943 г. были готовы прочные корпуса U 792 и U 793 и испытаны на сжатие. В марте-апреле должны были поставить дизельные и электрические моторы и в мае-июне – силовые установки Вальтера. Сборка двигательной установки последовала в смежном турбинном цехе верфи Блом и Фосс. В середине 1943 г. первая построенная подлодка U 792 была спущена на воду 250-т краном, спуск со стапеля U 793 предусматривался в середине августа. Передача подлодок па испытания планировалась в начале сентября или октября 1943 г. Задержки с поставками и, главным образом, постоянно вносимые изменения в конструкцию турбинного отсека (его размер увеличился почти на 2 м) привели к тому, что обе лодки долгое время оставались на верфи. 24 июля 1943 г. внезапно над Гамбургом раскрылись ворота ада – союзная авиация нанесла массированный удар. Хотя строящиеся подлодки в ангарах верфи пострадали незначительно, однако машинный завод и район достроечной стенки были серьезно повреждены. Из-за близкого разрыва бомбы были повреждены обе подлодки Wa 201. Одна из подлодок была перевёрнута взрывом, другая была опрокинута со стапеля. Повезло и рабочим, убитых среди них не было, они успели убежать от огненного смерча. Одну лодку подняли на стапель 28 сентября 1943 г. Работы на U 792 были начаты 16 ноября 1943 г. под руководством командира лодки лейтенанта Хайтца, который с июня 1942 г командовал почти год дизельной подлодкой U 664.

Иллюстрация к книге — Германские субмарины Тип XVII Крупным планом [pic_24.jpg]

Чертёж подлодки проекта верфи Блом и Фосс Wa 201.

Иллюстрация к книге — Германские субмарины Тип XVII Крупным планом [pic_25.jpg]

Чертёж подлодки проекта «Гёрмапия-Верфт» WK 202

Иллюстрация к книге — Германские субмарины Тип XVII Крупным планом [pic_26.jpg]
Иллюстрация к книге — Германские субмарины Тип XVII Крупным планом [pic_27.jpg]

Модели подлодок Вальтера Wa 201 и WK 202 (вверху) перед аэродинамической трубой научно-исследовательского авиационного института в Брауншвейге. Там изучалось действие рулевого управления при использовании различных моделей руля. Полученные измерения моментов на балере руля показали, что лучше управляемость на высоких скоростях у подлодки проекта верфи Блом и Фосс. При небольших скоростях были получены неожиданные экспериментальные результаты, опубликованные уже после войны Вальтером (13.7.45) и Гиблером (14.12.46).

Иллюстрация к книге — Германские субмарины Тип XVII Крупным планом [pic_28.jpg]

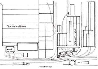
Место постройки подлодок V 792/793 на верфи Блом и Фосс.


7 августа 1942 г. фирма «Германия-Верфт» получила заказ на две подлодки U 794 и U 795 проекта WK 202 после того как отдел К аннулировал проект V 300. По предложению Дёница фирма Вальтер создала проект атлантической скоростной подлодки (проект Р 476 – Wa 401- обозначение кригсмарине тип XVIII), основой которой стала новая подлодка Вальтера (проект 477). В этих условиях продолжать работу над устаревшим проектом V 300 не имело смысла.

В начале февраля 1943 г. на фирме «Германия-Верфт» была заложена подлодка Вальтера, которая располагалась слева от переднего входа в эллинг № VII рядом со строящейся подлодкой U 249. Именно гам она была сфотографирована британским воздушным разведчиком 31 июля 1943 г. и классифицирована как малая 110-ти фуговая подлодка. К большому удивлению британских дешифровальщиков аэрофотоснимков она исчезла со снимков у эллинга в начале сентября 1943 г. и нигде в окрестностях Киля больше не обнаруживалась. Фактически же это был готовый прочный корпус, который был перенесён плавучим краном в машинный цех для установки оборудования. Гам были установлены основные механизмы и остальные приборы и устройства.

К сожалению, и на фирме «Германия-Верфт» не удалось выдержать установленные сроки готовности подлодок: 7 сентября и 5 октября 1943 г. Первая подлодка U 794 была спущена на воду 7 октября 1943 г. Она была готова к испытаниям 14 ноября. Командиром U 794 был назначен оберлейтепант Вернер Клюг, опытный офицер-подводник. Прежде он служил на дизельной U 69 под командой капитан-лейтенанта Мельцера и на U 552 под командой капитан-лейтенанта Тонна.

Иллюстрация к книге — Германские субмарины Тип XVII Крупным планом [pic_29.jpg]

14 ноября 1943 г. первая подлодка Вальтера U 794 была сдана кригсмарине фирмой «Германия-Верфт» в Киле. Здесь групповой снимок офицеров и унтер-офицеров экипажа, а также представителей фирмы Вальтера и верфи. В середине в нервом ряду в шляпе и пальто Гельмут Вальтер, который беседует с командиром подлодки оберлейтенантом Вернером Клюге. Позади этих двух персон во втором ряду виден начальник испытательного отдела фирмы Вальтера инженер-капитан Хеллер, который из-за своего небольшого роста получил прозвище «Фипс». Крайний слева сидит командир 5-й флотилии подлодок капитан Моле. Позади него стоит (у левой кромки снимка) директор фирмы «Германия-Верфт» Санден.

Проблемы рулевого управлении

Хотя подлодка U 792 была спущена на воду на 10 дней раньше, чем U 794 , её приёмка задержалась из-за плохой работы рулевого управления, недостатки которого были обнаружены еще при испытаниях на верфи. Впервые после многократного увеличения площади руля (на 68%) на скорости 8 узлов подлодка совершила под водой замкнутый круг диаметром 300 м. Приёмка обеих лодок 10 и II ноября ограничилась подводными маневрами при работе дизельных и электрических двигателей. На обеих лодках отсутствовали измерители глубины системы Папенберга для малых глубин погружения. Установленный внутри измеритель глубины фирмы Fa.Stein amp;Sohn был малопригоден, т.к. его показания запаздывали. Поэтому опытные погружения смогли начаться в бухте Киля только после 20 ноября 1943 г., когда были установлены измерители глубины Папснберга. При плавании на глубине 9 м с различными скоростями оказалось очень трудным удержать подлодку на требуемой глубине. Сначала на скорости 5 узлов (при движении на электромоторах, работающих на полную мощность) обе подлодки погружались движениями руля глубины. При небольшой скорости изменение глубины погружения было невозможным. В этом случае лодки при отклоненных вниз рулях глубины хоть и продвигались вперед, но при этом поднимались из-за повышенной плавучести и падения эффективности задних рулей. Соответственно они вели себя и при отклоненных вверх рулях. Для устранения затруднений 22 ноября были проведены следующие мероприятия:

Реклама
Вход
Поиск по сайту
Ищем:
Календарь