Онлайн книга «Германские субмарины Тип XVII Крупным планом»
|
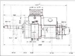
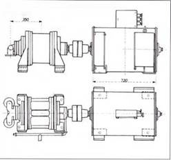
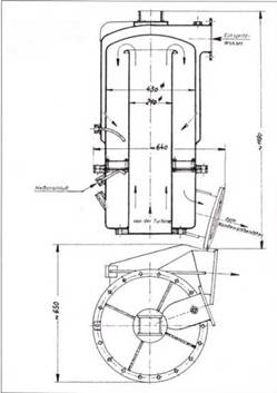
Затем парогазовая смесь поступала на турбину. На подлодках верфи Блом и Фосс была установлена одновальная многоступенчатая турбина производства турбинной фабрики Брюкнер, Капис и Ко (БКС) из Дрездена. На подлодке WK 202 была установлена 4- х ступеначатая турбина с шестерней Кертиса фирмы Крупп-Гсрмания Верфт. Коэффициент полезною действия 14-ступенчатой БКС-турбины был 77%, что было па 14% больше КПД турбины фирмы Крупп-Германия Верфт. Кроме того, она быстрее выходила на полную нагрузку (33 секунды против I минуты). ![]() Ротор турбины мощностью 2500лс. фирмы Брюкнер, Кание и Ко. ![]() Чертёж турбины фирмы Брюкнер, Кание и Ко в разрезе. ![]() Вид на кормовой отсек подлодки U 1409 с демонтированной турбинной установкой. Справа корпус турбины мощностью 2500.л.с., далее редуктор турбины а планетарный редуктор, над ними па потолке механизм маслорадиатора. Обе турбины имели выходную мощность 2500 л.с. при 14000 об/мин. Турбина фирмы Крупп-Германия Верфт весила 1200 кг. Данные БКС-турбины: Статор: Первая крыльчатка 104 лопатки размером 17 мм Последняя крыльчатка 112 лопаток размером 37 мм Ротор (максимальный диаметр 210 мм): Первая крыльчатка 104 лопатки размером 19 мм Последняя крыльчатка 99 лопаток размером 39 мм Высокое число оборотов турбины дважды снижалось по пути в винту. Сначала это был турбинный редуктор фирмы Канис-Родер с соотношением 3,85:1 и затем – планетарный редуктор фирмы Штокихт с соотношением 6.54:1. Прибор блокировки воды должен был с помощью сальника герметизировать турбину от излишков воды. Она охлаждалась, очищалась и вновь использовалась в камере сгорания. Цен тробежный насос фирмы Кляйн-Шанцпин мощностью 60 л.с. имел мощность 18-20 м³ в час. Он приводился в действие электродвигателем AEG-AWV 85 мощностью 2,7 квт при 1000 об/мин и напряжении 110 в или 8.8 квт при 2000 об/мин и напряжением 320 в. Позднее было предусмотрено использование ручного вспомогательного насоса для этих целей. ![]() Оригинальный чертёж турбинной установки с редуктором подлодки WK 202. ![]() Чертеж планетарного редуктора в разрезе. ![]() Планетарный редуктор со снятой крышкой. ![]() Размерный эскиз откачивающего насоса тина XVII. ![]() Размерный эскиз насоса для откачки конденсата. ![]() Чертёж конденсатора типа XVII в разрезе. Конденсатор устанавливался на корпусе турбины, в нем собирался отработанный водяной нар выходящий из турбины. Температура на выходе опускалась до 95о С и вода откачивалась насосом и затем охлаждалась до 35о С и возвращалась по трубопроводу как чистая вода для камеры сгорания. Холодильники морской воды на Wa 201 состояли из 1100 трубок диаметром 11/14 мм м длиной 3500 мм. Его мощность составляла 900 м³ морской воды в час и 150 м³ конденсата в час. На XVII В входящая и вытекающая морская вода отбиралась и удалялась 3 соплами на корпусе, находящимися в районе турбинного отсека. При скорости 26 узлов скорость протока воды составляла 2850 м³ в час. Насос для отбора конденсата фирмы Кляйне-Шанцлин при 3500 об/мин имел мощность 185 м³ в час. Он приводился в действие электродвигателем AEG-AWV 59 мощностью 15,3 л.с. Газовый сепаратор по давлением 6,8 м³ собирал остатки конденсата из С02 и водяного пара и удалял их за борт. С02 за бортом относительно быстро растворялся в морской воде, не оставляя заметного слсда на поверхности воды. След мог появиться однако при использовании топлива, содержащего свободный азот, например декалина. Перекись водорода на подлодках Вальтера хранилась в специальных ёмкостях из пластмассы. Этот пластик получали путем прибавки пластификатора в поливинилхлорид (НВХ). Ёмкости изготавливали, используя листы IIBX толщиной 5 мм. Толщина полученного пластика марки «Миполам» составляла 3 мм. Емкости имели горловины для заливки и опоражнивания, их закрепляли с помощью петель на трубчатых тягах. «Миполам» выпускала фирма «Динамит-АГ» (прежде принадлежавшая Альфреду Нобелю и Ко) в Тройсдорфе под Кёльном. На подлодках серии XVII В было установлено четыре труппы ёмкостей: 9 в передней части корпуса и 8 – в задней, всего 6 т перекиси водорода в легком корпусе лодки. Они были отделены от прочного корпуса съёмными пластинами. Подача перекиси осуществлялась благодаря наружному давлению воды, которая сжимала мягкие пластиковые ёмкости до опустошения. ![]() Чертёж электродвигателя АТ 98 подлодки XVII В. ![]() Пульт управления турбины в подлодке XVII серии. Он располагался на боковой стороне водонепроницаемой переборки турбинного отсеки. Под панелью с измерительными приборами находилась консоль с 5 штурвалами ручного привода. Самый большой штурвал (слева) относился к трёхпозиционному переключателю. Три малых штурвала в центре служили для управления клапанами турбины на входе в каталитическую камеру. Правый из них – штурвал 4-х позиционного регулятора подачи смеси, переключатели, расположенные над ним, служили для управления клапанами впрыска топлива в камере сгорания. Два штурвала справа ни стенке водонепроницаемой переборки с контрольными стеклянными трубками относились к прибору блокировки воды. Над ними – консоль (на фото плохо заметная) с 7 вентилями для быстрого запуска турбины и 5 вентилями для осушения турбины, каталитической камеры и сепаратора. |
![Иллюстрация к книге — Германские субмарины Тип XVII Крупным планом [pic_101.jpg] Иллюстрация к книге — Германские субмарины Тип XVII Крупным планом [pic_101.jpg]](img/book_covers/073/73822/pic_101.jpg)
![Иллюстрация к книге — Германские субмарины Тип XVII Крупным планом [pic_102.jpg] Иллюстрация к книге — Германские субмарины Тип XVII Крупным планом [pic_102.jpg]](img/book_covers/073/73822/pic_102.jpg)
![Иллюстрация к книге — Германские субмарины Тип XVII Крупным планом [pic_103.jpg] Иллюстрация к книге — Германские субмарины Тип XVII Крупным планом [pic_103.jpg]](img/book_covers/073/73822/pic_103.jpg)
![Иллюстрация к книге — Германские субмарины Тип XVII Крупным планом [pic_104.jpg] Иллюстрация к книге — Германские субмарины Тип XVII Крупным планом [pic_104.jpg]](img/book_covers/073/73822/pic_104.jpg)
![Иллюстрация к книге — Германские субмарины Тип XVII Крупным планом [pic_105.jpg] Иллюстрация к книге — Германские субмарины Тип XVII Крупным планом [pic_105.jpg]](img/book_covers/073/73822/pic_105.jpg)
![Иллюстрация к книге — Германские субмарины Тип XVII Крупным планом [pic_106.jpg] Иллюстрация к книге — Германские субмарины Тип XVII Крупным планом [pic_106.jpg]](img/book_covers/073/73822/pic_106.jpg)
![Иллюстрация к книге — Германские субмарины Тип XVII Крупным планом [pic_107.jpg] Иллюстрация к книге — Германские субмарины Тип XVII Крупным планом [pic_107.jpg]](img/book_covers/073/73822/pic_107.jpg)
![Иллюстрация к книге — Германские субмарины Тип XVII Крупным планом [pic_108.jpg] Иллюстрация к книге — Германские субмарины Тип XVII Крупным планом [pic_108.jpg]](img/book_covers/073/73822/pic_108.jpg)
![Иллюстрация к книге — Германские субмарины Тип XVII Крупным планом [pic_109.jpg] Иллюстрация к книге — Германские субмарины Тип XVII Крупным планом [pic_109.jpg]](img/book_covers/073/73822/pic_109.jpg)
![Иллюстрация к книге — Германские субмарины Тип XVII Крупным планом [pic_110.jpg] Иллюстрация к книге — Германские субмарины Тип XVII Крупным планом [pic_110.jpg]](img/book_covers/073/73822/pic_110.jpg)
![Иллюстрация к книге — Германские субмарины Тип XVII Крупным планом [pic_111.jpg] Иллюстрация к книге — Германские субмарины Тип XVII Крупным планом [pic_111.jpg]](img/book_covers/073/73822/pic_111.jpg)