Онлайн книга «Германские субмарины Тип IXC крупным планом»
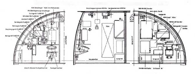
![]() Приборы н оборудование радиоотсека 43 подлодок серии IXС ![]() Модернизация верхней палубы носовой части серии IXС-40 ![]() Теоретический чертёж подлодки U 190 серии IXС (модернизация верхней палубы в носовой части) ![]() Варианты камуфляжа U 507 ![]() U 154 ![]() Мачта шнорхеля (откидная мачта с приводным механизмом) ![]() Мачта шнорхеля (откидная мачта с приводным механизмом) ![]() Мачта шнорхеля на верхней палубе ![]() Основной перископ ![]() Перископ для наблюдения за ночными воздушными целями ![]() Рамка радиолокатора FuMO 30 ![]() Рамки радиолокаторов (FuMB-Ant.5 «Samoa» и FuMB- Ant.3 «Bali 1») ![]() Рамка радиолокатора (тип Н, FuMB 26 «Tunis» – приёмная часть) ![]() Зенитная установка калибра 3,7-см ![]() ![]() 3,7-см зенитный полуавтомат М 42/LM 43U ![]() 2-см счетверённый зенитный автомат 38.43 U ![]() 2-см зенитный автомат МК S5/106 с прицелом типа I ![]() 2-см счетверённый зенитный автомат 38.43 U (карта смазки) ![]() Головки шнорхелей (варианты) ![]() Задняя часть носового отсека подлодки U190 с видом на водонепроницаемую переборку жилого отсека унтер- офицеров. Слева перед дверью туалета находятся два умывальника с откидной деревянной крышкой, под ними сточные трубы и емкость для грязной воды. Каждый из умывальников имел подсоединение к баку с холодной водой (вода для умывания), который находился в кормовой части обшивки рубки. Справа рядом с дверью туалета батарея парового отопления. У левого борта вспомогательный трюмный насос. ![]() Двухъярусные койки в жилом офицерском отсеке подлодки U 505 с дубовыми шкафами для белья и личных вещей слева. Справа перегородка кают-компании. Койки шириной 62,5 см и длиной 180 см имели снизу спиральные пружины, они были снабжены подушками в наволочках и матрасами. Деревянная мебель и и шкаф со стеклянными дверцами сохранились оригинальными после реставрации. ![]() Справа: вид на заднюю часть жилого отсека унтер-офицеров подлодки U 505 после её захвата американцами в июне 1944 г. Слева двухъярусные койки, в середине приводная рукоятка для открытия и закрытия заливного клапана балластной цистерны № 7. Позади – шкаф для рабочей одежды. ![]() Справа: передняя часть командирского отсека на подлодке U 505 со следами обыска после захвата 4 июня 1944 г. Рядом с диван-кроватью письменный стол с аптечкой на стене. В ящиках над столом находились навигационные инструменты и книги. Над кроватью за открытой деревянной дверью стальная дверь сейфа. |
![Иллюстрация к книге — Германские субмарины Тип IXC крупным планом [pic_55.jpg] Иллюстрация к книге — Германские субмарины Тип IXC крупным планом [pic_55.jpg]](img/book_covers/073/73821/pic_55.jpg)
![Иллюстрация к книге — Германские субмарины Тип IXC крупным планом [pic_56.jpg] Иллюстрация к книге — Германские субмарины Тип IXC крупным планом [pic_56.jpg]](img/book_covers/073/73821/pic_56.jpg)
![Иллюстрация к книге — Германские субмарины Тип IXC крупным планом [pic_57.jpg] Иллюстрация к книге — Германские субмарины Тип IXC крупным планом [pic_57.jpg]](img/book_covers/073/73821/pic_57.jpg)
![Иллюстрация к книге — Германские субмарины Тип IXC крупным планом [pic_58.jpg] Иллюстрация к книге — Германские субмарины Тип IXC крупным планом [pic_58.jpg]](img/book_covers/073/73821/pic_58.jpg)
![Иллюстрация к книге — Германские субмарины Тип IXC крупным планом [pic_59.jpg] Иллюстрация к книге — Германские субмарины Тип IXC крупным планом [pic_59.jpg]](img/book_covers/073/73821/pic_59.jpg)
![Иллюстрация к книге — Германские субмарины Тип IXC крупным планом [pic_60.jpg] Иллюстрация к книге — Германские субмарины Тип IXC крупным планом [pic_60.jpg]](img/book_covers/073/73821/pic_60.jpg)
![Иллюстрация к книге — Германские субмарины Тип IXC крупным планом [pic_61.jpg] Иллюстрация к книге — Германские субмарины Тип IXC крупным планом [pic_61.jpg]](img/book_covers/073/73821/pic_61.jpg)
![Иллюстрация к книге — Германские субмарины Тип IXC крупным планом [pic_62.jpg] Иллюстрация к книге — Германские субмарины Тип IXC крупным планом [pic_62.jpg]](img/book_covers/073/73821/pic_62.jpg)
![Иллюстрация к книге — Германские субмарины Тип IXC крупным планом [pic_63.jpg] Иллюстрация к книге — Германские субмарины Тип IXC крупным планом [pic_63.jpg]](img/book_covers/073/73821/pic_63.jpg)
![Иллюстрация к книге — Германские субмарины Тип IXC крупным планом [pic_64.jpg] Иллюстрация к книге — Германские субмарины Тип IXC крупным планом [pic_64.jpg]](img/book_covers/073/73821/pic_64.jpg)
![Иллюстрация к книге — Германские субмарины Тип IXC крупным планом [pic_65.jpg] Иллюстрация к книге — Германские субмарины Тип IXC крупным планом [pic_65.jpg]](img/book_covers/073/73821/pic_65.jpg)
![Иллюстрация к книге — Германские субмарины Тип IXC крупным планом [pic_66.jpg] Иллюстрация к книге — Германские субмарины Тип IXC крупным планом [pic_66.jpg]](img/book_covers/073/73821/pic_66.jpg)
![Иллюстрация к книге — Германские субмарины Тип IXC крупным планом [pic_67.jpg] Иллюстрация к книге — Германские субмарины Тип IXC крупным планом [pic_67.jpg]](img/book_covers/073/73821/pic_67.jpg)
![Иллюстрация к книге — Германские субмарины Тип IXC крупным планом [pic_68.jpg] Иллюстрация к книге — Германские субмарины Тип IXC крупным планом [pic_68.jpg]](img/book_covers/073/73821/pic_68.jpg)
![Иллюстрация к книге — Германские субмарины Тип IXC крупным планом [pic_69.jpg] Иллюстрация к книге — Германские субмарины Тип IXC крупным планом [pic_69.jpg]](img/book_covers/073/73821/pic_69.jpg)
![Иллюстрация к книге — Германские субмарины Тип IXC крупным планом [pic_70.jpg] Иллюстрация к книге — Германские субмарины Тип IXC крупным планом [pic_70.jpg]](img/book_covers/073/73821/pic_70.jpg)
![Иллюстрация к книге — Германские субмарины Тип IXC крупным планом [pic_71.jpg] Иллюстрация к книге — Германские субмарины Тип IXC крупным планом [pic_71.jpg]](img/book_covers/073/73821/pic_71.jpg)
![Иллюстрация к книге — Германские субмарины Тип IXC крупным планом [pic_72.jpg] Иллюстрация к книге — Германские субмарины Тип IXC крупным планом [pic_72.jpg]](img/book_covers/073/73821/pic_72.jpg)
![Иллюстрация к книге — Германские субмарины Тип IXC крупным планом [pic_73.jpg] Иллюстрация к книге — Германские субмарины Тип IXC крупным планом [pic_73.jpg]](img/book_covers/073/73821/pic_73.jpg)
![Иллюстрация к книге — Германские субмарины Тип IXC крупным планом [pic_74.jpg] Иллюстрация к книге — Германские субмарины Тип IXC крупным планом [pic_74.jpg]](img/book_covers/073/73821/pic_74.jpg)
![Иллюстрация к книге — Германские субмарины Тип IXC крупным планом [pic_75.jpg] Иллюстрация к книге — Германские субмарины Тип IXC крупным планом [pic_75.jpg]](img/book_covers/073/73821/pic_75.jpg)
![Иллюстрация к книге — Германские субмарины Тип IXC крупным планом [pic_76.jpg] Иллюстрация к книге — Германские субмарины Тип IXC крупным планом [pic_76.jpg]](img/book_covers/073/73821/pic_76.jpg)
![Иллюстрация к книге — Германские субмарины Тип IXC крупным планом [pic_77.jpg] Иллюстрация к книге — Германские субмарины Тип IXC крупным планом [pic_77.jpg]](img/book_covers/073/73821/pic_77.jpg)
![Иллюстрация к книге — Германские субмарины Тип IXC крупным планом [pic_78.jpg] Иллюстрация к книге — Германские субмарины Тип IXC крупным планом [pic_78.jpg]](img/book_covers/073/73821/pic_78.jpg)