Книга Линкоры Британской империи. Часть 4. Его Величество Стандарт, страница 19 – Оскар Паркс

Авторы: А Б В Г Д Е Ж З И Й К Л М Н О П Р С Т У Ф Х Ч Ш Ы Э Ю Я
Книги: А Б В Г Д Е Ж З И Й К Л М Н О П Р С Т У Ф Х Ц Ч Ш Щ Ы Э Ю Я
Бесплатная онлайн библиотека LoveRead.ec

Онлайн книга «Линкоры Британской империи. Часть 4. Его Величество Стандарт»

📃 Cтраница 19

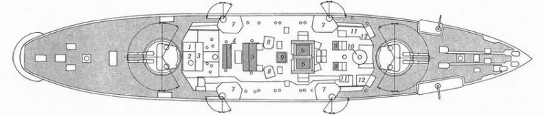
1 – котельные отделения; 2-машинныеотделения; 3-бомбовые погреба; 4-брюйткамеры; 5-барбеты 10"установок; 6-дымоходы; 7 – вентиляторы машинных отделений; 8 – рулевые приводы; 9 – торпедные аппараты; 10 – боевая рубка.

Иллюстрация к книге — Линкоры Британской империи. Часть 4. Его Величество Стандарт [pic_31.jpg]

План верхней палубы:

1 – капитанская рубка; 2 – капитанская походная рубка; 3- вентилятор; 4 – проем в МО; 5-вентилятор МО; 6-дымоходы; 7- казематы 6" орудий; 8 – вьюшки; 9 – сходы в КО; 10 – боевая рубка; 11 – помещения вахтенных; 12 – умывальники вахтенных.


Скорострельные орудия к тому времени приобрели значение, степень важности которого далеко не соответствовала их умеренному калибру – и это лишь по причине наличия больших не забронированных поверхностей на многих только что вступивших в строй тяжёлых кораблях. Исходя из этого, следовало обеспечить приемлемую защиту орудийных расчётов, а мнение против устройства угловых казематов на верхней палубе, как стесняющих действие остальных орудий, было Советом отвергнуто. Следовало также усовершенствовать систему защиты, перераспределив броню – и Уайт разработал для «Ринауна» новую схему бронирования, которая была затем воспроизведена во всех линкорах Акта о морской обороне. В итоге в этих двух важнейших составляющих его конструкции – системе броневой защиты и размещении вспомогательного калибра – «Ринаун» на долгие годы послужил образцом для многих серий как британских, так и зарубежных линкоров, что было существенно более ценным, нежели он сам, как полновесная боевая единица. По прошествии первых пяти лет службы его боевое значение сильно упало, и в дальнейшем корабль использовался гораздо больше для несения церемониальных обязанностей, нежели по прямому назначению, и стал фактически скорее яхтой, нежели боевым кораблём.

Обладатель приметного подъёма палубы в носу и корме, «Ринаун» имел красивый силуэт и во флоте всегда котировался как один из самых грациозных кораблей, а закрытая батарея 76-мм орудий и тяжёлая фок-мачта придавали ему более «увесистый» облик по сравнению с «Центурионом».

Вооружение

10" орудия в 32 калибра длиной имели угол вертикального наведения в 35° и оснащались гидроприводами наведения, что избавило от проблем, характерных для паровых приводов «Центуриона». Конструкция боевого отделения башен была практически такой же, но тыльная сторона была уже защищена бронёй. Заряжание орудий, однако, производилось лишь при развороте башен по диаметральной плоскости.

Из 10 6" орудий четыре помещались на верхней палубе в казематах из 102-мм брони по углам батареи 76-мм орудий и могли вести огонь, как по оконечностям, так и на траверз. Казематы этих 6" орудий служили в данном случае траверзами для 76-мм батареи. Остальные шесть 6" орудий помещались под верхней палубой и защищались с бортов 152-мм бронёй – так что по сравнению с «Ройал Совереном» вспомогательное вооружение «Ринауна» было как бы перевёрнуто, боевая эффективность 6" пушек в результате подобной рокировки, как следствие, заметно снизилась. Посредством применения небольших выдающихся за борт спонсо-нов сектора горизонтальной наводки этих нижних 6" орудий удалось раздвинуть до 90° – по 45° от траверза в нос и корму. Скорострельность составляла 6 выстрелов в 50 секунд, или, уже на службе, 16 выстрелов за три минуты.

Интереснейшей особенностью этого корабля стала центральная батарея 76-мм орудий – и эта деталь стала непременным атрибутом всех последующих линкоров на целое десятилетие. Эти пушки вели огонь через бортовые порты, а не стояли открыто, как прежде, однако тонкая стальная обшивка не обещала никакой реальной защиты для от снарядов самого мелкого калибра. Ещё четыре таких же орудия поначалу размещались в носу и корме в бортовых вырезах, а со временем их попарно перенесли на крышу обеих башен.

Бронирование

Проект включал два важнейших нововведения в части броневой защиты:

1) защитная палуба получила скосы к нижней кромке пояса по ватерлинии вместо того, чтобы просто перекрывать его по верхней кромке, как до этого;

2) бронирование по ватерлинии было уменьшено по толщине для устройства более надёжной защиты оконечностей.

Иллюстрация к книге — Линкоры Британской империи. Часть 4. Его Величество Стандарт [pic_32.jpg]

«Ринаун». Схема распределения броневой защиты


Комбинация защитной палубы «Бленхейма» с поясным бронированием линкора привела к решению, которое утвердилось в Королевском флоте на последующие 20 лет и было заимствовано всеми флотами. Снаряду, пробившему поясную плиту, предстояло ещё иметь дело с наклоненными под углом 45° тремя дюймами стали, выше и ниже которых располагались угольные ямы – номинально подобная комбинация признавалась эквивалентной 150 мм вертикальной броки. Как показали опыты, попадания в район ватерлинии были маловероятны, в то время как шансы поражения надводного борта возрастали по мере увеличения его высоты, так что соображения относительно сосредоточения бортовой защиты в виде узкого толстого пояса по ватерлинии оказалась под большим вопросом. При обсуждении проекта «Ройал Соверена» Уайт указывал, что от защиты остойчивости корабля посредством обширного бронирования борта отказались во всех флотах по причине уменьшившегося риска вследствие большого рассеивания орудий, а также повысившейся эффективности вспомогательного вооружения, вследствие чего он сводил бортовую защиту к толстому поясу по ватерлинии с узкой полосой 102-мм брони над ним в качестве защиты от снарядов, попавших в надводный борт. В проекте «Ринауна» эта концепция была развита далее – пояс по ватерлинии уменьшен по толщине до 203 мм, а высвободившийся вес использован на устройство толстого скоса нижней палубы позади него и утолщение верхнего пояса до 152 мм. Поскольку новая гарвеевская броня в 152 мм считалась в 2,5 раза устойчивее, чем 102-мм броня «Ройал Соверена», «Ринаун» являлся более крепким орешком, нежели можно было полагать, исходя из его табличных характеристик.

Различия между новой британской системой защиты и зарубежными аналогами можно видеть из сравнения схем поперечного сечения тогдашних типичных линкоров – «Ринауна», французского «Шарля Мартеля» и русского «Синопа». Как можно видеть, на британском броненосце скос нижней палубы к нижней кромке бортового бронирования обеспечивает дополнительную защиту внутренним отсекам.

На французских «Массена», «Карно» и «Шарле Мартеле» имелся узкий пояс из 460-мм брони, который возвышался над проектной ватерлинией корабля в нормальном грузу лишь на 0,5 м; он перекрывался 70-мм стальной палубой. Над этим поясом имелась только полоса 100-мм брони шириной 1 м, выше которой не было никакой вертикальной защиты. В итоге получалось, что весь надводный борт выше отметки 1,7 м от ватерлинии мог быть превращен огнём современных скорострельных орудий в решето, сквозь которое уже на углах крена 9° вода могла свободно вливаться внутрь, распространяясь поверх броневой палубы. В противоположность этому 152-мм бортовая броня «Ринауна» доводила высоту защищённого борта до 2,8 м – до уровня средней палубы – так что опасность от поступления воды поверх защитной палубы существенно уменьшалась.

Реклама
Вход
Поиск по сайту
Ищем:
Календарь