Онлайн книга «Пчеловодство. Первые шаги к прибыльному хозяйству»
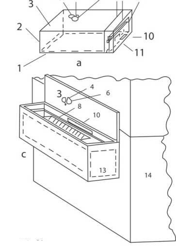
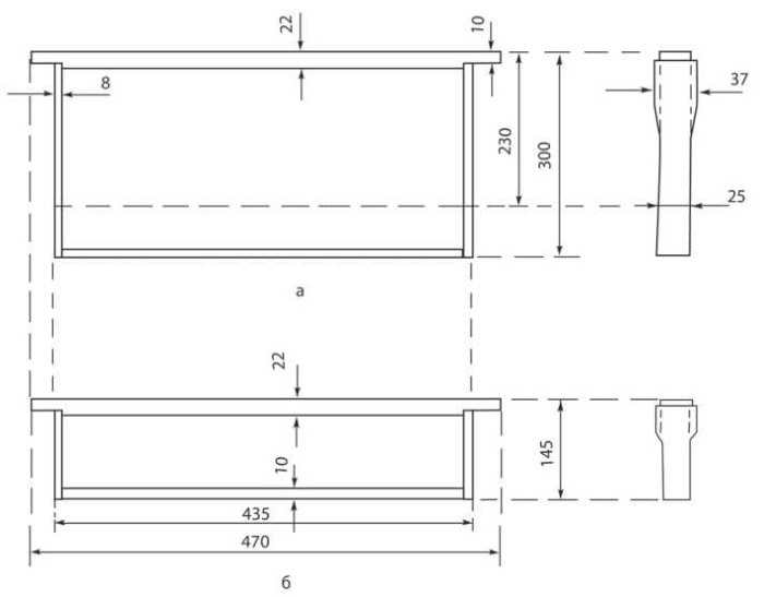
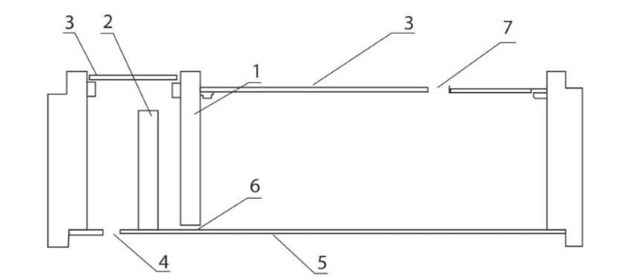
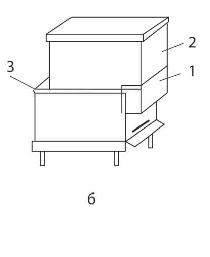
![]() Рис 21. Ульевые рамки: а – гнездовая, магазинная (полурамка), размеры – в мм ![]() Рис 22. Шкаф для хранения рамок ![]() Рис 23. Дымарь (к стр. 217) ![]() Рис 24. Стамеска пасечная (к стр. 218) ![]() Рис 25. Щетки и гусиное перо (к стр. 218) ![]() Рис 26. Скребки (к стр. 218) ![]() Рис 27. Ящики переносные (к стр. 219) ![]() Рис 28. Рабочий ящик пчеловода (к стр. 219) ![]() Рис 29. Роевни (к стр. 219) ![]() Рис 30. Решетки разделительные (к стр. 220) ![]() Рис 31. Пчеловодные щипцы для рамок (к стр. 221) ![]() Рис 32. Разновысотная опора (к стр. 221) ![]() ![]() Рис 33. Кормушки: 1 – наклонное дно, 2 – корпус, 3 – крышка, 4 – заливное отверстие, 5 – ось заслонки, 6 – заслонка, 7 – перегородка для пчел, 8 – поплавок, 9 – перегородка для сиропа, 10 – кормовая щель, 11 – щель для сиропа, 12 – плечики, 13 – ванночка для корма, 14 – корупус улья; а – надрамочная, в – рамочная, с – внешняя кормушка (к стр. 221) ![]() Рис 33а. Разрез надрамочной кормушки: 1 – перегородка, 2 – глухая перегородка, 3 – крышка из плексигласа, 4 – выходное кормовое отверстие, 5 – дно кормушки, 6 – промежуток 2 мм, 7 – заливное отверстие (к стр. 221) ![]() ![]() Рис 34. Удалители: а – пластинчатый, б – лотковый (к стр. 222–223) ![]() Рис 35. Пасечные ножи и вилка: а – нож, б – электрический нож, в – вилка (к стр. 224) ![]() Рис 36. Слева – стол для распечатывания сотов: 1 – медовые рамки, 2 – двухскатная металлическая рама, 3 – распечатываемый сот, 4 – дно, 5 – решетка, 6 – кран для слива меда. Справа – деревянная рама (к стр. 224) ![]() ![]() Рис 37. Расположение рамок в медогонках 1, 2 и 3 – вид сверху, в медогонке универсальной (4) – вид сбоку (к стр. 225) ![]() Рис 38. Медогонки: хордиальная, с мотором – (слева), 1 – радиальная, 2 – универсальная. (к стр. 225) ![]() Рис 39. Фильтры: а – двухсекционный, б – трехсекционный погружной (к стр. 226) |
![Иллюстрация к книге — Пчеловодство. Первые шаги к прибыльному хозяйству [i_037.jpg] Иллюстрация к книге — Пчеловодство. Первые шаги к прибыльному хозяйству [i_037.jpg]](img/book_covers/072/72552/i_037.jpg)
![Иллюстрация к книге — Пчеловодство. Первые шаги к прибыльному хозяйству [i_038.jpg] Иллюстрация к книге — Пчеловодство. Первые шаги к прибыльному хозяйству [i_038.jpg]](img/book_covers/072/72552/i_038.jpg)
![Иллюстрация к книге — Пчеловодство. Первые шаги к прибыльному хозяйству [i_039.jpg] Иллюстрация к книге — Пчеловодство. Первые шаги к прибыльному хозяйству [i_039.jpg]](img/book_covers/072/72552/i_039.jpg)
![Иллюстрация к книге — Пчеловодство. Первые шаги к прибыльному хозяйству [i_040.jpg] Иллюстрация к книге — Пчеловодство. Первые шаги к прибыльному хозяйству [i_040.jpg]](img/book_covers/072/72552/i_040.jpg)
![Иллюстрация к книге — Пчеловодство. Первые шаги к прибыльному хозяйству [i_041.jpg] Иллюстрация к книге — Пчеловодство. Первые шаги к прибыльному хозяйству [i_041.jpg]](img/book_covers/072/72552/i_041.jpg)
![Иллюстрация к книге — Пчеловодство. Первые шаги к прибыльному хозяйству [i_042.jpg] Иллюстрация к книге — Пчеловодство. Первые шаги к прибыльному хозяйству [i_042.jpg]](img/book_covers/072/72552/i_042.jpg)
![Иллюстрация к книге — Пчеловодство. Первые шаги к прибыльному хозяйству [i_043.jpg] Иллюстрация к книге — Пчеловодство. Первые шаги к прибыльному хозяйству [i_043.jpg]](img/book_covers/072/72552/i_043.jpg)
![Иллюстрация к книге — Пчеловодство. Первые шаги к прибыльному хозяйству [i_044.jpg] Иллюстрация к книге — Пчеловодство. Первые шаги к прибыльному хозяйству [i_044.jpg]](img/book_covers/072/72552/i_044.jpg)
![Иллюстрация к книге — Пчеловодство. Первые шаги к прибыльному хозяйству [i_045.jpg] Иллюстрация к книге — Пчеловодство. Первые шаги к прибыльному хозяйству [i_045.jpg]](img/book_covers/072/72552/i_045.jpg)
![Иллюстрация к книге — Пчеловодство. Первые шаги к прибыльному хозяйству [i_046.jpg] Иллюстрация к книге — Пчеловодство. Первые шаги к прибыльному хозяйству [i_046.jpg]](img/book_covers/072/72552/i_046.jpg)
![Иллюстрация к книге — Пчеловодство. Первые шаги к прибыльному хозяйству [i_047.jpg] Иллюстрация к книге — Пчеловодство. Первые шаги к прибыльному хозяйству [i_047.jpg]](img/book_covers/072/72552/i_047.jpg)
![Иллюстрация к книге — Пчеловодство. Первые шаги к прибыльному хозяйству [i_048.jpg] Иллюстрация к книге — Пчеловодство. Первые шаги к прибыльному хозяйству [i_048.jpg]](img/book_covers/072/72552/i_048.jpg)
![Иллюстрация к книге — Пчеловодство. Первые шаги к прибыльному хозяйству [i_049.jpg] Иллюстрация к книге — Пчеловодство. Первые шаги к прибыльному хозяйству [i_049.jpg]](img/book_covers/072/72552/i_049.jpg)
![Иллюстрация к книге — Пчеловодство. Первые шаги к прибыльному хозяйству [i_050.jpg] Иллюстрация к книге — Пчеловодство. Первые шаги к прибыльному хозяйству [i_050.jpg]](img/book_covers/072/72552/i_050.jpg)
![Иллюстрация к книге — Пчеловодство. Первые шаги к прибыльному хозяйству [i_051.jpg] Иллюстрация к книге — Пчеловодство. Первые шаги к прибыльному хозяйству [i_051.jpg]](img/book_covers/072/72552/i_051.jpg)
![Иллюстрация к книге — Пчеловодство. Первые шаги к прибыльному хозяйству [i_052.jpg] Иллюстрация к книге — Пчеловодство. Первые шаги к прибыльному хозяйству [i_052.jpg]](img/book_covers/072/72552/i_052.jpg)
![Иллюстрация к книге — Пчеловодство. Первые шаги к прибыльному хозяйству [i_053.jpg] Иллюстрация к книге — Пчеловодство. Первые шаги к прибыльному хозяйству [i_053.jpg]](img/book_covers/072/72552/i_053.jpg)
![Иллюстрация к книге — Пчеловодство. Первые шаги к прибыльному хозяйству [i_054.jpg] Иллюстрация к книге — Пчеловодство. Первые шаги к прибыльному хозяйству [i_054.jpg]](img/book_covers/072/72552/i_054.jpg)
![Иллюстрация к книге — Пчеловодство. Первые шаги к прибыльному хозяйству [i_055.jpg] Иллюстрация к книге — Пчеловодство. Первые шаги к прибыльному хозяйству [i_055.jpg]](img/book_covers/072/72552/i_055.jpg)
![Иллюстрация к книге — Пчеловодство. Первые шаги к прибыльному хозяйству [i_056.jpg] Иллюстрация к книге — Пчеловодство. Первые шаги к прибыльному хозяйству [i_056.jpg]](img/book_covers/072/72552/i_056.jpg)
![Иллюстрация к книге — Пчеловодство. Первые шаги к прибыльному хозяйству [i_057.jpg] Иллюстрация к книге — Пчеловодство. Первые шаги к прибыльному хозяйству [i_057.jpg]](img/book_covers/072/72552/i_057.jpg)
![Иллюстрация к книге — Пчеловодство. Первые шаги к прибыльному хозяйству [i_058.jpg] Иллюстрация к книге — Пчеловодство. Первые шаги к прибыльному хозяйству [i_058.jpg]](img/book_covers/072/72552/i_058.jpg)
![Иллюстрация к книге — Пчеловодство. Первые шаги к прибыльному хозяйству [i_059.jpg] Иллюстрация к книге — Пчеловодство. Первые шаги к прибыльному хозяйству [i_059.jpg]](img/book_covers/072/72552/i_059.jpg)