Книга Строительство дома быстро и дешево, страница 6 – Евгений Симонов

Авторы: А Б В Г Д Е Ж З И Й К Л М Н О П Р С Т У Ф Х Ч Ш Ы Э Ю Я
Книги: А Б В Г Д Е Ж З И Й К Л М Н О П Р С Т У Ф Х Ц Ч Ш Щ Ы Э Ю Я
Бесплатная онлайн библиотека LoveRead.ec

Онлайн книга «Строительство дома быстро и дешево»

📃 Cтраница 6
Когда и как планировать участок

Приступая к строительству собственного дома, многие забывают об участке. Точнее, помнят, но заняться его планировкой собираются в отдаленном будущем: «Сначала построим дом, а ландшафтный дизайн подождет». Такое рассуждение, логичное на первый взгляд, в корне неверно. В результате оказывается, что великолепное плодовое дерево, отлично прижившееся и уже дающее плоды, нужно пересаживать в другое место, потому что оно мешает постройке гаража. Или выясняется, что дом затеняет идеальное место для клумбы. Или вы построили баню там, где лучше было бы разместить площадку для пикников, а теперь ее приходится устраивать у забора вдоль улицы и жарить шашлык на глазах у всего поселка.

Чтобы подобных казусов не возникало, стоит заняться планированием участка заранее. Ведь на нем разместится не только жилой дом, но и различные хозяйственные постройки (начиная от гаража и заканчивая сарайчиком для сельхозинвентаря), баня, парники, бассейн, декоративные водоемы, сад, клумбы и др. В конечном итоге все элементы должны составить гармоничный ансамбль, чего невозможно добиться без точного плана.

Конечно, если вы приобрели участок площадью 1 гектар, то можете не беспокоиться: места хватит для воплощения любых ваших фантазий. Но если участок относительно невелик (20–30 соток), то нужно как следует постараться, чтобы на нем поместилось все, о чем мечтаете вы и члены вашей семьи, и чтобы он при этом не выглядел нагромождением различных элементов, а был красивым и удобным для жизни.

Процесс планирования земельного участка принято разделять на три стадии:

♠ разделение всей территории на фрагменты;

♠ определение местоположения дома;

♠ определение местоположения других построек и сооружений: хозяйственных построек, гаража, бани, парников и теплиц, сада и огорода, бассейна, декоративных водоемов и т. п.

На первой стадии следует определить размеры, форму и местоположение участка. Оптимально, если удастся свести к минимуму протяженность участка вдоль улицы. В таком случае затраты на устройство дорог и пешеходных дорожек, сетей водоснабжения, канализации, электроснабжения и т. д. будут снижены.

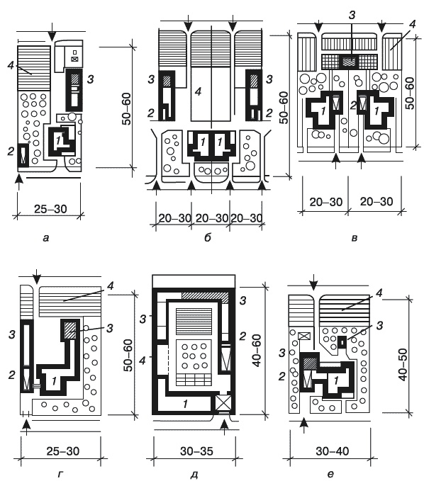
Варианты планировки земельных участков представлены на рис. 2.1.

Иллюстрация к книге — Строительство дома быстро и дешево [_027.jpg]

Рис. 2.1 Рациональная планировка земельных участков для индивидуальных жилых домов (размеры указаны в метрах): а — хозсооружения сблокированы в разных зданиях; б — все хозсооружения сблокированы в одном здании; в — гараж сблокирован с домом, хозсооружения отделены; г — хозсооружения образуют двор; д — хозсооружения образуют периметр; е — единое комплексное здание: 1 — дом; 2 — гараж; 3 — хозсооружения; 4 — сад, огород


Как видите, возможно использование двух способов:

♠ дома располагаются отдельно от хозяйственных построек (см. рис. 2.1, а — в);

♠ хозяйственные постройки примыкают к жилым домам (см. рис. 2.1, г — е).

Первый способ можно применять в любых климатических условиях независимо от типа жилого дома. Второй способ в основном используется либо в суровых климатических условиях (варианты д и е), либо в жарком климате (варианты г и д).

С точки зрения планирования участка особенно важно определиться с этажностью дома. Часто, если участок невелик, а семья большая, приходится идти по пути увеличения количества этажей. Так, дом общей площадью 250–300 м2 может иметь четыре этажа. В результате получается этакая Эйфелева башня, устремляющаяся к облакам. Замечу, что собственный многоэтажный дом — не лучший выход из положения. Во-первых, он обходится дороже, чем одно-двухэтажное строение. Во-вторых, лестницы отнимают немало драгоценного места. В-третьих, не всем легко подниматься по лестницам, и если в семье есть пожилые люди, то им нужно отводить комнаты на первом этаже. Но если дом узкий и высокий, то комнат может попросту не хватить: обычно на первом этаже размещаются кухня, санузел, кладовки, прихожая, и в лучшем случае остается место лишь для одной комнаты. Установка лифта стоит дорого. Кроме того, такой дом неудобно убирать. Либо придется носить по многочисленным лестницам пылесос, ведро с водой и т. д., либо на каждом этаже держать по пылесосу. Так что лучше сразу приобрести участок попросторнее.

Еще один не самый удачный вариант — совмещение дома и хозяйственных построек. Конечно, на плане такое здание выглядит довольно привлекательно. Оно компактно, занимает на участке минимум места, из дома обычно запланированы проходы в гаражи, мастерские, кладовые. Однако есть и минусы. Постройка подобного комплекса обходится дороже, чем размещение хозяйственных построек отдельно от дома. Кроме того, при раздельном строительстве есть возможность производить работы поэтапно. То есть сегодня вы строите дом, завтра — гараж, послезавтра — сарай, затем — баню и др.

Не так давно было модно совмещать под одной крышей все, что только можно. Особенно это касалось гаражей, бассейнов, бань и саун. В частности, вместо того, чтобы построить отдельное здание для бассейна, его размещали в цокольном этаже. Мотивация проста: так получается дешевле, да и место экономится. Однако практика показала, что дешевизной тут и не пахнет. Ведь в бассейне или бане всегда повышенная влажность. А следовательно, для этих помещений требуется усиленная гидро- и пароизоляция. Ну а ремонт обходится раза в три дороже, чем в случаях, когда бассейн, баня или сауна располагаются отдельно.

Что касается гаража, то удобно, когда из него можно попасть прямо в дом. Особенно это хорошо дождливыми осенними или морозными зимними днями. Но есть один нюанс. Запахи автомобильного топлива, масел, различной автокосметики, выхлопных газов неизбежно просачиваются в жилые комнаты. Кроме того, в холодное время года нежелательно держать автомобиль в непосредственной близости от отапливаемых помещений. Наконец, гараж относится к числу помещений повышенной пожарной опасности и требует соответствующих мер предосторожности.

Однако если нет возможности расположить гараж отдельно от дома, то приходится прибегать к совмещению (рис. 2.2–2.4). При этом важно помнить об устройстве хорошей вентиляции.

Иллюстрация к книге — Строительство дома быстро и дешево [_029_1.jpg]

Рис. 2.2. Гараж, примыкающий к дому

Иллюстрация к книге — Строительство дома быстро и дешево [_029_2.jpg]

Рис. 2.3. Гараж, расположенный непосредственно под жилыми помещениями

Иллюстрация к книге — Строительство дома быстро и дешево [_030.jpg]

Рис. 2.4. Гараж, стоящий отдельно от дома

Реклама
Вход
Поиск по сайту
Ищем:
Календарь