Книга Современный экономичный ремонт, страница 2 – Максим Жмакин

Авторы: А Б В Г Д Е Ж З И Й К Л М Н О П Р С Т У Ф Х Ч Ш Ы Э Ю Я
Книги: А Б В Г Д Е Ж З И Й К Л М Н О П Р С Т У Ф Х Ц Ч Ш Щ Ы Э Ю Я
Бесплатная онлайн библиотека LoveRead.ec

Онлайн книга «Современный экономичный ремонт»

📃 Cтраница 2

После выбора вида ремонта нужно изобразить общий план квартиры или дома, с помощью которого можно определить фактические размеры всей жилой площади. Визуальное восприятие в оценке комнат не поможет, поскольку легко ошибиться, а план составляют по точным данным, которые получают, сделав соответствующие замеры в каждом помещении. План незаменим при подсчете финансовых ресурсов, которые уйдут на ремонт.

Для начала следует начертить примерную схему квартиры или дома, причем каждому этажу должен соответствовать свой план, в котором отмечают примерные размеры и формы имеющихся помещений.

Непременно нужно указать местонахождение лестниц, входных, межкомнатных, балконных дверей, окон, иных элементов обстановки (встроенных шкафов, каминов, батарей центрального отопления, антресолей).

Далее составляют подробный план каждого помещения, для чего выполняют тщательные измерения посредством рулетки, деревянного или портновского метра. Необходимо измерить все, что есть в помещениях (ниши и выступы), учесть толщину стен и перегородок, ширину оконных и дверных проемов, установить точные размеры встроенных элементов обстановки. Все результаты измерений отмечают на плане.

Чтобы сделать подробный план, потребуются калькулятор, линейка, миллиметровая бумага и карандаш, также необходимо определиться с масштабом плана (например, реальный 1 см принять за гипотетический 1 м), после чего полученные путем измерений цифры перенести на схему согласно выбранному масштабу.

В принципе, можно ограничиться общим планом помещения, но иногда приходится делать подробный план каждой комнаты, который представляет собой отдельную схему с увеличенным масштабом. Ее выполняют для помещений, которые оснащены различными элементами интерьера, предметами сантехники (речь идет о ванной, кухне), а также с целью проработки нескольких вариантов планировки одной и той же комнаты.

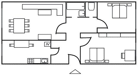
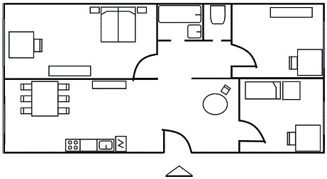
Ниже (рис. 1) продемонстрирован масштабный план квартиры, состоящей из трех комнат, на котором указаны планируемое размещение мебели и варианты перепланировки (рис. 2). Следует заметить, что при составлении плана были использованы стандартные обозначения, с помощью которых отмечают окна, балконы или лоджии, направление открывания дверей, сантехнику.

Иллюстрация к книге — Современный экономичный ремонт [_013.jpg]

Рис. 1. Масштабный план квартиры (исходный план)

Иллюстрация к книге — Современный экономичный ремонт [_014_1.jpg]

а)

Иллюстрация к книге — Современный экономичный ремонт [_014_2.jpg]

б)

Рис. 2. Предполагаемые варианты перепланировки: а) вариант 1; б) вариант 2


План можно начертить самостоятельно вручную или используя специальные компьютерные программы, которые позволяют создать трехмерное изображение помещения в соответствии с введенными результатами реальных измерений; также можно прибегнуть к услугам профессиональных архитекторов и дизайнеров.

Когда план квартиры или дома готов, имеет смысл перейти к калькуляции собственно ремонтных работ. На данном этапе объем доступных финансовых средств обычно является определяющим фактором, поскольку при их нехватке можно ожидать затягивания ремонта на неопределенное время. Конечно же учитывают и время, которое можно отвести на ремонт, и технические трудности, связанные с его реализацией.

Бюджет

Не секрет, что на любое улучшение в доме требуются деньги, и порой немалые, в связи с чем обычно финансы выступают наиболее значительным и неумолимым фактором, с которым нельзя не считаться. Ведь какими бы прекрасными ни были мечты по благоустройству квартиры, они так и останутся фантазиями без материальных возможностей их осуществления. Поэтому лучше планировать ремонт, имея в виду только те средства, которые есть в наличии. Чтобы упростить задачу, необходимо составить бюджет всех предполагаемых финансовых вложений.

В определении бюджета немалую помощь может оказать человек с соответствующим образованием (бухгалтер или финансовый советник), в роли которого может выступить друг или специально приглашенный (естественно, за отдельную плату) специалист.

Если ремонт предполагается не очень масштабным, можно рассчитать необходимые ресурсы и самостоятельно, воспользовавшись калькулятором и каталогом строительных и отделочных материалов.

Сравнивая цены материалов в различных магазинах, нужно установить примерный объем денежных средств, которые будет потрачены на ремонт, причем необходимо учесть, что расчетная сумма, как правило, меньше той, которая понадобится в итоге.

Во время ремонта вполне закономерно появляется желание сэкономить. Но это не всегда удается без серьезных изменений в плане и снижения качества работ. Выходом в этой ситуации может быть поэтапное выполнение ремонта: самые трудоемкие и сложные мероприятия проводят в первую очередь, а мелкие усовершенствования делают позднее, когда появляются ресурсы.

Как известно, стоимость ремонта в немалой степени определяется сложностью предполагаемых изменений. Соответственно при нахождении более простого способа осуществления той или иной ремонтной операции есть возможность уменьшить затраты. Для этого не нужно отказываться от каких-либо действий, в любой ситуации можно найти компромиссный вариант выполнения работ. Стоит посоветоваться со специалистами, и они, скорее всего, смогут указать пути снижения стоимости ремонта.

Обычные методы осуществления ремонта и традиционные комплекты оборудования стоят меньше, чем какие-либо нестандартные, индивидуальные, выполняемые на заказ согласно эскизам хозяина. Так, установка обычного оконного блока с деревянной коробкой и распашными рамами будет стоить значительно дешевле окон нестандартной формы (например, мансардной, круглой, французской и т. д.). Стандартный проект обладает рядом неоспоримых достоинств, среди которых – простота и дешевизна его выполнения.

Не рекомендуется экономить на качестве материалов или специалистах, при этом нужно всячески избегать переоценки собственных возможностей как в плане финансов, так и в профессиональном смысле. Нужно хорошо представлять его то, что можно сделать своими силами, и не пытаться прыгнуть выше головы, поскольку некачественно сделанную работу придется переделывать, что, безусловно, отразится на кошельке и времени.

Расходы на материалы составляют львиную долю всех финансовых затрат. Однако, если решение снизить стоимость ремонта за счет качества материалов принято, то делать это нужно обдуманно, сначала посоветовавшись со специалистами, предварительно оговорив ту планку качества, ниже которой опускаться нельзя.

Сроки

Установить примерные сроки окончания ремонтных работ важно прежде всего с точки зрения психологии, поскольку хозяин помещения будет вынужден жить практически на строительной площадке, которая возникнет на территории квартиры или дома. К тому же, имея в виду примерные сроки выполнения работ по перепланировке, отделке и иному, можно спрогнозировать время ремонта с учетом других планов на будущее.

Вход
Поиск по сайту
Ищем:
Календарь