Книга Благоустройство территории вокруг коттеджа, страница 21 – Юрий Казаков

Авторы: А Б В Г Д Е Ж З И Й К Л М Н О П Р С Т У Ф Х Ч Ш Ы Э Ю Я
Книги: А Б В Г Д Е Ж З И Й К Л М Н О П Р С Т У Ф Х Ц Ч Ш Щ Ы Э Ю Я
Бесплатная онлайн библиотека LoveRead.ec

Онлайн книга «Благоустройство территории вокруг коттеджа»

📃 Cтраница 21

Днище и стенки ямы делают из водонепроницаемых материалов: железобетона, бетона, кирпича или камня. Для полной герметизации поверхности следует покрывать цементной штукатуркой. Если в изготовлении выгребной ямы используются бревна или брус, необходимо проследить за тем, чтобы древесина была сухой. Вокруг деревянных стен также делают глиняный замок толщиной 25-30 см, а места стыков тщательно проконопачивают просмоленной паклей. Поверхности обрабатывают двумя-тремя слоями битума для обеспечения гидроизоляции.

Сверху выгребную яму покрывают отдельными балками или панелью, в которой должно быть предусмотрено технологическое отверстие размером 70×70 см, закрывающееся двумя плотно подогнанными крышками с ручками. На перекрытие устанавливают стульчак или приемную воронку и стенки будки. Вокруг выгребной ямы устраивают отмостку из глины. Почву укрепляют дерном.

Плотность стен люфт-клозета, размещенного внутри жилого дома, должна быть достаточно высокой. Для дезинфекции пола и санитарного оборудования используют специальные средства или раствор хлорки (1 кг на 10 л воды). В жаркое время года примерно раз в неделю нечистоты в выгребной яме также нужно посыпать хлоркой.

Люфт-клозеты подходят для эксплуатации в условиях умеренного климата и на достаточно сухих почвах, с уровнем грунтовых вод не выше 2 м от поверхности.

Как уже говорилось, особенностью пудр-клозета является отсутствие выгребной ямы, что делает его установку менее трудоемкой и не зависящей от влажности почв. Домик пудр-клозета может быть отдельно стоящим или пристроенным к любому из надворных сооружений. Иногда туалет такого типа устраивают и в отдельном помещении жилого дома, обычно – с затененной стороны.

Для сбора нечистот применяют обычное ведро или металлический ящик, установленный в стульчаке. После каждого посещения туалета в емкость засыпают небольшое количество торфа, золы или песка. Содержимое емкости можно сбрасывать в компостную яму. Частота опорожнения емкости с нечистотами зависит от интенсивности пользования туалетом; обычно это делают каждый день.

Засыпку для пудр-клозета можно хранить в любом сухом месте под укрытием, по мере необходимости набирая небольшие порции для запаса внутри кабинки.

Если вы не стеснены в средствах и не хотите тратить время на установку традиционного надворного туалета, можете приобрести готовую туалетную кабинку. Пользуются популярностью так называемые компостные туалеты. Производители обещают, что такой туалет не будет распространять неприятные запахи и привлекать насекомых.

Основная часть компостного туалета – контейнер для сбора нечистот, состоящий из 4 секций с торфом и опилками. Свободного объема одной секции хватает на сезон, затем на протяжении нескольких лет в заполненной секции созревает компост – удобрение для сада и огорода. Такие туалеты оборудованы вентиляционной системой и дренажным шлангом для удаления влаги. Наружные поверхности контейнеров выполнены из полиэтилена, а внутренняя часть – из стали, обработанной антикоррозионными составами.

Пожалуй, единственный недостаток компостного туалета – очень высокая стоимость.

Сооружение простейшего летнего душа, совмещенного с туалетом, не займет у вас много времени. Можно купить заводской комплект оборудования, состоящий из несущего трубчатого каркаса, емкости для воды с вентилем и разбрызгивателем и непрозрачного полиэтиленового материала, которым обтягивают каркас. Можно смастерить самодельный каркас из деревянных жердей или металлического профиля, а систему подачи воды – из трубок небольшого диаметра. В качестве бака сгодится любая бочка, в нее только нужно врезать патрубок с вентилем и разбрызгивателем.

На землю под душем уложите на некотором расстоянии друг от друга кирпичи или камни, а на них – деревянную решетку, сбитую из реек. На время пользования душем стульчак накрывайте пленкой или клеенкой, чтобы на него не попадала вода.

Баня
Советы по строительству бани

Выбирая место для строительства бани, принято ориентироваться на расположение дома. Как и другие хозяйственные постройки, ее обычно размещают вдали от фасада, в задней или боковой зоне участка. Даже если банька представляет собой архитектурный шедевр, лучше ее «спрятать»: она все-таки предназначается для отдыха, поэтому место должно быть максимально тихим и уютным. «Лицом» баню можно развернуть в сторону дома или, наоборот, к глухому заднему ограждению, а вот ориентация по сторонам света особого значения не имеет. В любом случае эти вопросы решаются на стадии проектирования (рис. 4.14).

Иллюстрация к книге — Благоустройство территории вокруг коттеджа [i_042.jpg]

Рис. 4.14. Мини-баня: 1 – ванна; 2 – полок; 3 – лестница; 4 – электроплита закрытого типа; 5 – камни; 6 – полок для сидения; 7 – подставка; 8 – скамейка; 9 – опора для ног; 10 – деревянные щиты


А с чего начать застройку территории с нуля? Часто начинают как раз с бани, а не с дома. Во-первых, учиться лучше на простом. Во-вторых, баня может послужить временным жилищем вам или нанятым строителям. В ней можно хранить кое-какие материалы. Таким образом, пока не будет готов дом, баня может не только использоваться по своему прямому назначению, но и выполнять дополнительные функции.

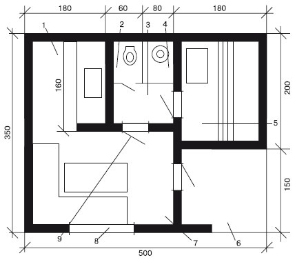
Классическая схема планировки бани исходит из ее назначения. Если это отдельно стоящее одноэтажное здание, то обычное решение для нее – терраса, небольшой тамбур, в котором оставляют верхнюю одежду, предбанник, иногда совмещаемый с душевой, и парильня (рис. 4.15).

Иллюстрация к книге — Благоустройство территории вокруг коттеджа [i_043.jpg]

Рис. 4.15. План просторной бани (предбанник и моечная совмещены с санузлом): 1 – кухня; 2 – туалет; 3 – раздевалка; 4 – душевая; 5 – парильня; 6 – веранда; 7 – жилая комната; 8 – окно; 9 – двери


В хороших проектах предусматривается возможность обогрева всех этих помещений (кроме террасы, разумеется) одной печью. Если места на участке мало, можно ограничиться совсем простой конструкцией, состоящей из предбанника и парной.

Главное в бане – печь. Она находится в парильне, как можно дальше от двери, но устье можно расположить и в любой смежной комнате. Печь совмещает несколько важнейших функций: служит для нагревания воды, обогрева самого помещения и получения пара.

Печь можно сложить из бутового или обычного камня или из хорошо обожженного кирпича. Ее сооружение – дело сложное, имеющее множество нюансов. Но… не боги горшки обжигают. При желании сложить печь для собственной бани вполне вам по силам.

Оптимальная толщина стенок печи – от 13 до 25 см. При использовании натурального камня необходимо учитывать, что не все породы подходят для условий бани, то есть для высоких температур и влажности. В основном применяют бут, голыш, гранит.

Вход
Поиск по сайту
Ищем:
Календарь