Книга Малый автобизнес: с чего начать, как преуспеть, страница 22 – Владислав Волгин

Авторы: А Б В Г Д Е Ж З И Й К Л М Н О П Р С Т У Ф Х Ч Ш Ы Э Ю Я
Книги: А Б В Г Д Е Ж З И Й К Л М Н О П Р С Т У Ф Х Ц Ч Ш Щ Ы Э Ю Я
Бесплатная онлайн библиотека LoveRead.ec

Онлайн книга «Малый автобизнес: с чего начать, как преуспеть»

📃 Cтраница 22

Факсимильный аппарат

Ксерокопирующий аппарат

Телефонный аппарат абонентский

Шредер

Дополнительное оборудование

Сейф засыпной

Сейф портативный

Шкаф металлический

Телевизионный приемник бытовой

Видеомагнитофон бытовой

Музыкальный центр бытовой

Холодильник бытовой

Кофеварочный аппарат

Микроволновая печь

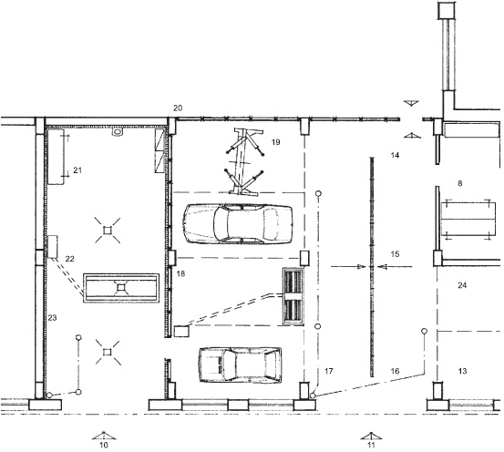
Крупный сервис сети «Бош. Авто. Сервис»

Иллюстрация к книге — Малый автобизнес: с чего начать, как преуспеть [i_014.jpg]

1 – вход на верхний этаж; 2 – бюро; 3 – бытовое помещение; 4 – раздевалка + умывальная; 5 – механическая мастерская; 6 – туалет; 7 – склад; 8 – мастерская по ремонту оборудования; 9 – мастерская по ремонту. ТНВД; 10 – стенд для определения мощности; 11 – легковой автомобиль; 12 – вход для покупателей; 13 – вход для покупателей в отдел продажи; 14 – осмотровая канава, глубина «1,40 м; 15 – скат макс. 0, 75 %;16 – желоб для отвода воды через отделитель масла и бензина; 17 – отвод отработанных газов; 18 – стенд для тормозных испытаний; 19 – двухплунжерный автомобильный подъемник с платформой; 20 – легкая строительная стенка со звукопоглотителем; 21 – керамическое покрытие пола; 22 – Tune Up; 23 – стенд для функциональных испытаний, определения мощности и анализа; 24 – керамическое покрытие пола; температура помещения 15 °C; освещенность 350 люкс; 25 – отопление; 26 – коридор; 27 – пост мойки; 28 – помещение для проверки. ТНВД; 29 – мастерская IA4; 30 – аварийный выход; 31 – навес; 32 – механические работы; 33 – линия для автоматической мойки; 34 – продажа и приемка на техобслуживание


Рекомендации: мастерская от 10x30 м; полезная площадь от 20x22,5 м.

Общая площадь – 750 м2

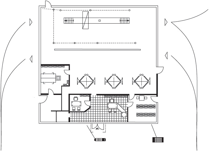
Средний сервис сети «Бош. Авто. Сервис»

Иллюстрация к книге — Малый автобизнес: с чего начать, как преуспеть [i_015.jpg]

1 – продажа и приемка на техобслуживание; 2 – бюро; 3 – бытовое помещение; 4 – раздевалка + умывальная; 5 – механическая мастерская; 6 – туалет; 7 – склад; 8 – мастерская по ремонту оборудования; 9 – умывальная; 10 – стенд для определения мощности; 11 – легковой автомобиль; 12 – вход для покупателей; 13 – вход для покупателей в отдел продажи; 14 – в цех; 15 – скат макс. 0, 75 %; 16 – желоб для отвода воды через отделитель масла и бензина; 17 – отвод отработанных газов;

Иллюстрация к книге — Малый автобизнес: с чего начать, как преуспеть [i_016.jpg]

18 – стенд для тормозных испытаний; 19 – двухплунжерный автомобильный подъемник с платформой; 20 – легкая строительная стенка со звукопоглотителем; 21 – керамическое покрытие пола; 22 – Tune Up; 23 – стенд для функциональных испытаний, определения мощности и анализа; 24 – керамическое покрытие пола; температура помещения 15 °C; освещенность 350 люкс


Рекомендации: мастерская от 12,5х15 м; полезная площадь от 7,5x25 м.

Общая площадь – 375 м2

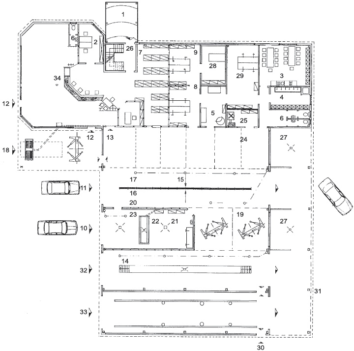
Малый сервис сети «Бош. Авто. Сервис»

Иллюстрация к книге — Малый автобизнес: с чего начать, как преуспеть [i_017.jpg]

Рекомендации: мастерская от 10x15 м; полезная площадь (магазин, приемка, комната отдыха, склад, вспомогательные помещения) от 5x25 м.

Общая площадь: 250 м2.

Допускается меньшая площадь, но с обязательным наличием двух (для сервиса с гарантией – четырех) рабочих мест (постов – 3,75x5,0 м) для а/м.

Пример малого автосервиса

В одном из малых автосервисов с пятью постами работают две понедельные смены по 4 механика. Время работы с 9:00 до 21:00 ежедневно, без выходных. Каждой сменой руководит опытный мастер, он же диагност и приемщик. Один из мастеров является также директором автосервиса. Его опыт и квалификация – выпускник. МАДИ, более 30 лет работы в авторемонте на разных должностях – позволяет ему быть эффективным и дотошным тренером-наставником молодых ремонтников, поэтому на курсы людей направляют только для обучения работе с новым оборудованием.

Предприятие обслуживает машины многих марок, но по узкому набору услуг:

• регламентное техобслуживание;

• подготовка к сезону;

• регулирование схода-развала;

• замена номерных агрегатов;

• шиномонтаж, балансировка;

• диагностика и промывка инжекторов;

• чистка и ремонт топливных систем;

• заправка кондиционеров;

• установка сигнализации;

• проточка тормозных дисков;

• установка ксенона;

• сезонное хранение шин.

Специализация на выбранных сервисом услугах мотивирована постоянным спросом на них. Кроме перечисленных, выполняются и другие работы, если в каждом отдельном случае квалификация механиков позволяет, но это делается не по всем маркам машин.

Перечень услуг ежегодно расширяется, по мере определения рентабельности и конкурентоспособности инноваций, после приобретения оборудования и обучения специалиста. Например, в текущем году введена новая услуга – проточка тормозных дисков прямо на автомобиле. Есть намерение организовать ремонт двигателей и установку дополнительного оборудования.

Основным своим конкурентным преимуществом автосервис считает качество работ. Молодые специалисты, пришедшие после техникумов, институтов и школ, с интересом изучают особенности разных автомобилей под руководством мастеров, грамотно выполняют технологические операции. В коллективе – сотрудничество и доброжелательность. Претензии по качеству ремонта поступают очень редко, урегулируются дружелюбно.

Положительным фактором является то, что в сервисе клиентам уделяется больше внимания, чем у дилеров, они могут присутствовать при ремонте, беседовать с мастерами. Потребители имеют общую черту – чувствительность к тому, как к ним относятся. Каждый ожидает индивидуального подхода. Клиенты этого сервиса, очевидно, довольны им – до 60 % клиентов – постоянные. Текучести кадров практически нет.

Сервис существует 7 лет, на рентабельность вышел уже на втором году деятельности, количество заказов ежегодно увеличивается. Сервис применяет рекламу: наружную, на растяжках, в газетах, в Интернете.

Ближайшие конкуренты, тоже независимые автосервисы и мастерские, расположены на расстоянии 3–8 км. Конкуренцию сервис пока не ощущает, отмечены только отдельные случаи оттока заказов на заправку кондиционеров и регулировку схода-развала – эти операции выполняют и соседи.

Вход
Поиск по сайту
Ищем:
Календарь