Книга Инвестиции в недвижимость. 25 суперстратегий, страница 13 – Николай Мрочковский

Авторы: А Б В Г Д Е Ж З И Й К Л М Н О П Р С Т У Ф Х Ч Ш Ы Э Ю Я
Книги: А Б В Г Д Е Ж З И Й К Л М Н О П Р С Т У Ф Х Ц Ч Ш Щ Ы Э Ю Я
Бесплатная онлайн библиотека LoveRead.ec

Онлайн книга «Инвестиции в недвижимость. 25 суперстратегий»

📃 Cтраница 13

В этом случае вы или долго получаете разрешение, или, если не хочется сложностей, используете легко возводимые временные конструкции, которые не являются постоянными строениями и, соответственно, не требуют разрешения на строительство и прочих оформлений.

При этом такие конструкции вполне могут быть отличными объектами для сдачи.


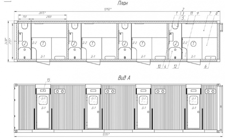
Пример – дома из контейнеров.

Иллюстрация к книге — Инвестиции в недвижимость. 25 суперстратегий [_104.jpg]

стр 104

Рис. 25. Жилой модуль из контейнера


Это обычный морской контейнер, примерно 6 х 2,5 = 15 м2, который превращен в отельный жилой модуль.


На данной картинке приведен пример гостиничного номера, но без проблем такой модуль превращается в жилой с отдельной мини-кухней.

Иллюстрация к книге — Инвестиции в недвижимость. 25 суперстратегий [_1051.jpg]

Рис. 26. Примерный вид интерьеров жилого модуля из контейнеров


Другой вариант, еще меньший по площади – размеры модуля 6–8 м2.

Иллюстрация к книге — Инвестиции в недвижимость. 25 суперстратегий [_1052.jpg]

Рис. 27. Внутренний интерьер модульного дома

Иллюстрация к книге — Инвестиции в недвижимость. 25 суперстратегий [_106.jpg]

Рис. 28. Внешний вид модульных домов

Иллюстрация к книге — Инвестиции в недвижимость. 25 суперстратегий [_107.jpg]

Рис. 29. Планировка модульных домов


У людей часто возникает вопрос: «Ну как это в контейнере жить? Так только работяги в бытовках живут».

На самом деле они могут быть очень даже цивильными. Себестоимость такого контейнера выходит в районе 300–500 тыс. рублей в зависимости от начинки.

Чем они хороши – тем, что не нужно никаких разрешений. Привезли, кран поставили, «воткнули» в розетку и в трубу – и все, мини-дом работает и приносит деньги. Ничего больше не требуется.

Предворяя частый вопрос о теплоизоляции, да, она тоже предусмотрена и работает в наших краях.

Пример такой постройки из контейнеров в Ленинградской области (выезд нашей группы активных инвесторов).

Иллюстрация к книге — Инвестиции в недвижимость. 25 суперстратегий [_108.jpg]

Рис. 30. Дом из контейнеров в Ленинградской области


Под Санкт-Петербургом стоят вот такие дома. Студенческое общежитие сделано из контейнеров. Там пять таких зданий – общежитие для студентов, общежитие для преподавателей. Из таких же модульных домов сделаны учебные залы, лектории.

Если есть хорошее место, можно быстро брать и ставить.

Можете найти на YouTube видео «Студенческий кампус из контейнеров. Амстердам». Прямо в центре Амстердама поставили за ночь 5-тиэтажный дом для студентов из контейнеров.

У кого есть участки земли, рассмотрите этот вариант – стратегия очень даже живая. Если участок, допустим, рядом со станцией, чтобы не ждать разрешений – быстро поставили и все. Правда, готовьтесь к разговору с соседями.

Однажды к нам на участок на Клязьме пришла старушка. Она проснулась, в окошко глянула, а там уже в два этажа контейнеры стоят. И как давай возмущаться: «Сынки, что вы тут строите?» Пришлось с бабушкой поговорить, успокоить, поправить ей забор.

Стоит отметить, что подобное строение не требует узаконивания, поскольку считается временным. Хотя, как известно, нет ничего более постоянного, чем временное.

Даже если оно стоит на фундаменте, но ничем не прикручено, все равно считается временной конструкцией. Так что это можно использовать. Хотя при желании такие дома можно и узаконить.

Стратегия 20–21. Гаражи как инструмент создания капитала и доходное место

Есть еще одна интересная стратегия для тех, у кого не хватает денег на дом – гаражи. Есть несколько вариантов инвестиций в гаражи:


Купить гараж на раннем этапе строительства, продать после постройки.


Гараж в среднем стоит в 8—10 раз дешевле квартиры, при этом часто прирастает в цене не меньше, чем квартира, а то и больше.

Так, например, гараж на раннем этапе строительства может стоить 300 тыс. рублей. Через 1 год после постройки – 450 тыс. рублей. При этом, разумеется, вам также нет необходимости сразу вносить всю сумму.

Рассмотрим пример инвестиций в гаражи нашего активного участника PLATINUM группы Дмитрия К. из Барнаула:

1. Гараж в декабре 2013 года был забронирован по цене 260 тыс. рублей взносом 5 тыс. рублей.

2. В январе 2014 было дополнительно внесено еще 55 тыс. рублей.

1. В октябре 2014 года, когда гараж был построен, была довнесена оставшаяся сумма, и он сразу был продан за 450 тыс. рублей, то есть фактически остаток оплачивал уже новый покупатель.

2. Итого, изначально проинвестировано 5 + 55 = 60 тыс. рублей, прибыль 450–260 = 190 тыс. рублей

3. Доходность инвестиций – 216 % годовых!


Вы можете сказать – мол, повезло, у меня так не получится. Но в том и суть инвесторского видения, которому вы обязаны научиться:

4. находить самые лучшие, самые выгодные объекты;

5. покупать их сильно дешевле рынка;

6. продавать и сдавать дороже чем все.


Использовать гараж как доходный дом

Вы знаете, что в гаражах тоже можно жить? Скажем прямо, далеко не всегда удается сделать это законно – тут уж надо вникать в нюансы. Однако нередко получается.

Иллюстрация к книге — Инвестиции в недвижимость. 25 суперстратегий [_111.jpg]

Рис. 31. Гараж до перепланировки

Иллюстрация к книге — Инвестиции в недвижимость. 25 суперстратегий [_112.jpg]

Рис. 32. Жилой гараж после перепланировки


Вот пример того, что делается из самого обычного гаража. Сверху окошечки, там же спальное место, даже кота завели. Это шикарный вариант, и в принципе, его можно еще на восемь частей разбить.

Вход
Поиск по сайту
Ищем:
Календарь