Книга Дизайн интерьера, страница 47 – Наталия Митина

Авторы: А Б В Г Д Е Ж З И Й К Л М Н О П Р С Т У Ф Х Ч Ш Ы Э Ю Я
Книги: А Б В Г Д Е Ж З И Й К Л М Н О П Р С Т У Ф Х Ц Ч Ш Щ Ы Э Ю Я
Бесплатная онлайн библиотека LoveRead.ec

Онлайн книга «Дизайн интерьера»

📃 Cтраница 47
Иллюстрация к книге — Дизайн интерьера [_195_1.jpg]

Эльвира Станкевич, дизайнер интерьера, карандашный рисунок, обработанный на компьютере


Объемно-планировочное решение моих проектов обычно представляет собой комплект, состоящий из плана, эскизов (черно-белых или цветных, в зависимости от объекта) и коллажа, которые я сопровождаю устным комментарием или электронным письмом.

Иллюстрация к книге — Дизайн интерьера [_195_2.jpg]

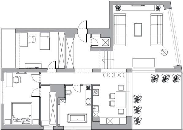
Наталия Митина, дизайнер интерьера, планировка

Иллюстрация к книге — Дизайн интерьера [_196_1.jpg]

Наталия Митина, дизайнер интерьера, эскиз, созданный в программе ArchiCAD

Иллюстрация к книге — Дизайн интерьера [_196_2.jpg]

Наталия Митина, дизайнер интерьера, коллаж


Планировка показывает взаимное расположение помещений, с мебелью и оборудованием, эскиз демонстрирует расположение мебели в объеме. Коллаж призван иллюстрировать стилистику и цветовое решение, а также помогает облегчить подбор мебели, светильников, материалов и предметов декора на следующих этапах работы.

Хочу еще раз подчеркнуть, что сейчас мы говорим об эскизах как промежуточном звене между планировкой и визуализациями. Именно в этом качестве они нужны и важны, особенно для новичков. Ведь полноценные визуализации или рисунки от руки требуют больших временных затрат, поэтому значительно проще работать над ними, когда у вас хотя бы частично согласованы с заказчиком цветовое и стилистическое решение, мебель, материалы отделки. Эскизы нужны для того, чтобы заказчик принципиально согласился (пусть после некоторого количества вариантов) с вашим предложением. Это позволит вам избежать проработки большого количества вариантов на следующем этапе.

В прошлом году, окрыленная работой с заказчиками, с которыми было полное взаимопонимание, с полуслова – мы работали не только без эскизов, но и без визуализаций вообще, – я пренебрегла этапом создания черновых эскизов в работе над другим проектом, для других клиентов. Мы подробно проговорили с ними их пожелания, составили достаточно полное ТЗ, у нас были фотографии объекта, который им нравился, – и мне показалось, что я очень хорошо уловила их настроение и то, что они хотят видеть в своем интерьере. И я сразу перешла к этапу визуализаций. К моему разочарованию, я не угадала – мой вариант им категорически не понравился. Я сделала новый вариант – и снова не угадала. Тогда, наученная горьким опытом и приняв совет одной подруги-дизайнера, я решила все-таки попробовать сначала согласовать эскизы и уже потом предлагать клиентам полноценные визуализации. К сожалению, разочарованные двумя неудачными вариантами заказчики решили прервать наше сотрудничество. Вот так моя самонадеянность стоила мне клиента.

Глава 32
Подбор материалов, мебели, освещения

Процесс выбора мебели, освещения, материалов и прочего оборудования должен происходить в течение всей работы над дизайн-проектом. Ни в коем случае нельзя оставлять его на потом. Как я уже говорила, очень важно учитывать габариты используемой мебели уже на стадии планировки, чтобы понять, жизнеспособны ли ваши планировочные решения. Иногда мебель нужного размера очень сложно найти (кстати, это касается не только маленьких предметов мебели, но и больших, как, например, кровать king size), иногда она стоит дороже, чем позволяет бюджет, или выпускается в цвете, который не подходит для проекта. Своевременный подбор материалов также убережет вас от последующих переделок.

По просьбе клиента я заложила в один проект широкую паркетную доску из ясеня с фаской, бледно-желтого цвета. Каково же было наше удивление, когда оказалось, что именно такого цвета, формата и вида доска встречается крайне редко и стоит весьма недешево, примерно в три раза дороже, чем планировалось по бюджету. Мы потратили около трех месяцев на поиски и раздумья. В итоге мы заменили паркетную доску массивным паркетом, который к тому же для нас обрабатывали специальным экспериментальным лаком. Для этого решения бюджет также пришлось увеличить.

Вообще, найти что-то красивое, что будет укладываться в бюджет, – задача непростая. Это именно та часть работы, которая требует наибольших временных затрат и усилий. Поездки по магазинам, обсуждения и ценовые запросы могут тянуться месяцами. То, что подходит, – не нравится. То, что нравится, – слишком дорого. То, что дешевле и вроде нравится, – не подходит по размеру, цвету или рисунку. Как в фильме «Бриллиантовая рука»: «А у вас нет такого же, но без крыльев?»

Именно из-за этой части работы бывает так сложно ответить на вопрос клиентов о сроках окончания проектирования.

Что может помочь? Во-первых, сразу четко оговорить бюджет и порядок приемлемых цен. Во-вторых, очень удобны большие торговые центры с широким ассортиментом – там можно выбрать какие-то вещи, а потом найти их в другом месте дешевле. В-третьих, вам помогут спецификации и правильная организация файлов, куда вы записываете подходящие ценовые предложения.

Обычно я стараюсь еще на раннем этапе работы над проектом хотя бы несколько раз пройтись с клиентами по магазинам, чтобы понять, какой именно стиль и уровень цен для них являются приемлемыми. Все, что понравилось и подошло по цене, я фотографирую на телефон, чтобы было видно и сам элемент, и его ценник, желательно с указанием производителя.

Как только хотя бы концептуально утверждается планировка и становится понятно общее количество мебели и светильников, я создаю таблицы спецификаций, в которые вношу все позиции с хотя бы приблизительными ценами. Очень удобно, конечно, пользоваться для этого Интернетом – у многих производителей и поставщиков на сайтах свободно доступен их ассортимент с ценами. В конце такой таблицы, естественно, выставляется общая стоимость упомянутых предметов, а затем суммируются итоговые данные всех таблиц. В состав моего проекта обычно входят следующие спецификации: мебель, освещение, сантехника, приборы электроинсталляции, отделочные материалы и декор (последняя позиция включена не во все проекты, так как зачастую декор подбирается по месту уже после окончания работ). Сложив итоговые цифры всех этих таблиц, можно приблизительно судить о том, в какую сумму выльется реализация проекта, нужно ли где-то сэкономить и на чем именно имеет смысл это делать.

Отдельную статью расходов представляют собой строительные работы и черновые материалы, однако смету на них предоставляют строительные компании.

Мы уже говорили о том, что, начиная работу в сфере дизайна интерьера, нужно постараться заблаговременно найти основных поставщиков и производителей, познакомиться с их менеджерами, просмотреть каталоги. Подбор материалов и оборудования – это как раз тот этап, когда вам все это пригодится. Конечно, не представляется возможным изучить все предложения на рынке, но ориентироваться в основных позициях и иметь представление об уровне цен вам необходимо.

Вход
Поиск по сайту
Ищем:
Календарь