Книга Дизайн интерьера, страница 43 – Наталия Митина

Авторы: А Б В Г Д Е Ж З И Й К Л М Н О П Р С Т У Ф Х Ч Ш Ы Э Ю Я
Книги: А Б В Г Д Е Ж З И Й К Л М Н О П Р С Т У Ф Х Ц Ч Ш Щ Ы Э Ю Я
Бесплатная онлайн библиотека LoveRead.ec

Онлайн книга «Дизайн интерьера»

📃 Cтраница 43
Иллюстрация к книге — Дизайн интерьера [_178.jpg]

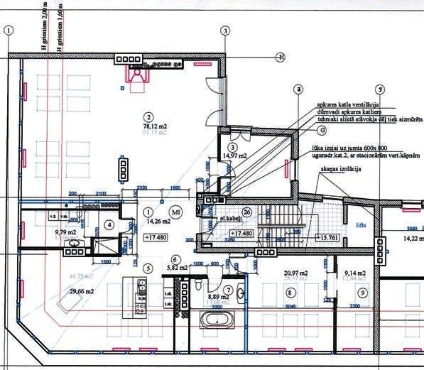
Копия плана из инвентаризационного дела квартиры


Запомните раз и навсегда, запишите себе красными буквами и никогда не отступайте от первого и самого главного правила – всегда проводите обмеры нового объекта. Даже если у клиента имеется инвентаризационное дело или архитектурный проект – ни одно здание еще не было построено без отклонений от проекта. В случае если вы доверитесь планам, которые вам предоставил клиент, вся ответственность за какие-то несовпадения и нестыковки в проекте будет лежать на вас.

Для обмеров вам потребуется копия плана из инвентаризационного дела или архитектурного проекта – желательно несколько экземпляров. Они могут быть не в масштабе, главное, чтобы на них было много свободного места для записей и пояснений. Захватите несколько листов чистой бумаги – удобно, если бумага будет миллиметровая или в клеточку. Также вам нужна рулетка, желательно и лазерная, и обычная (более подробно я говорила о необходимых дизайнеру инструментах в главе 13), ручка и карандаш. Возьмите планшет, жесткую папку или книгу, которую вы сможете подложить под бумагу, чтобы писать. Обязательно – фотоаппарат или телефон, если в нем хорошая встроенная камера.

При помощи лазерной рулетки обмеры можно проводить и в одиночку, но удобнее это делать все-таки вдвоем. Поэтому попросите кого-то из ваших друзей или коллег вам помочь.

Иллюстрация к книге — Дизайн интерьера [_179.jpg]

План квартиры из архитектурного проекта


Вам нужно определить все горизонтальные и вертикальные размеры. Это значит, что вы должны записать на вашем плане размеры всех помещений, как общие габаритные, так и длину отрезков стен, расстояния до оконных и дверных проемов, между проемами, ширину самих проемов, всех выступов и ниш. Нужно измерить толщину стен и глубину подоконников. Для большей точности измеряют также диагонали помещений.

Обязательно замерьте и укажите на плане выводы коммуникаций – вентиляции, водопровода, канализации. Если есть радиаторы отопления, укажите и их размеры и точное расположение. Если радиаторов нет – расположение выводов системы отопления под них. Не забудьте электрощит у входа в квартиру, счетчики воды и газа, если они есть.

Вертикальные размеры – это высота помещения от пола до потолка, высота до низа окна и высота оконного проема, а также дверного проема, высота порогов, если они есть. Высота всех ниш, выступов, балок и ригелей, выводов коммуникаций. Советую зарисовать все стены с окнами или сложными архитектурными элементами в виде разверток на отдельных листах, пометив, где какая стена. Так вам будет значительно проще ориентироваться, чем по проставленным высотам.

Лишних размеров не бывает, лучше сразу измерить и записать все, чем потом приезжать еще несколько раз только потому, что не хватает какой-то информации. Впрочем, к такому повороту событий тоже следует быть готовым – у меня, к примеру, практически в половине случаев бывает необходимость поехать еще раз и померить что-то дополнительно.

Лишних размеров не бывает – лучше сразу измерить все расстояния и записать данные, чем потом приезжать еще несколько раз только потому, что не хватает какой-то информации. Впрочем, к такому повороту событий тоже следует быть готовым.

С обмерами есть еще одно правило – чем меньше помещение, тем точнее и внимательнее нужно проводить обмеры. В маленькой комнате, квартире или офисе на счету каждый сантиметр, поэтому еще более важно не ошибиться.

Сфотографируйте все помещения, полы и потолки, места выводов коммуникация, а также все места, которые могут представлять сложность впоследствии. Чем более подробно вы зафиксируете все на фото, тем проще вам же будет работать.

Нужно иметь в виду, что эти обмеры все равно являются ориентировочными. После демонтажа существующих покрытий (например паркета на полу и обоев на стенах) и выравнивания поверхностей (полы выравниваются при помощи стяжки, а стены штукатурятся и шпатлюются) размеры могут поменяться – как правило, на 3–4 см, – а могут и не поменяться. На стадии перепланировки вы это можете не учитывать – разве что речь идет о совсем маленьких помещениях. Но при проектировании мебели, особенно встроенной, эти сантиметры могут оказаться очень существенными. Поэтому в некоторых местах после чистовой отделки размеры придется перепроверить. Причем лучше, если это сделаете и вы, и производители мебели. Например, на всех моих мебельных чертежах есть примечание, что изготовитель обязан сам уточнить размеры на месте перед началом производства. Конечно, толковый производитель и без примечания это сделает, но оно страхует как раз от нетолковых.

Когда вы удостоверились в том, что сняли и записали все размеры, можете с ворохом бумаг возвращаться к компьютеру. Чем скорее вы приступите к черчению, тем лучше. Сейчас у вас впечатления от пространства еще свежие, вы помните, где какие цифры записали, какую стену на каком листе зарисовали. Вам проще разобрать цифры, которые вы проставили нетвердо на весу. Через пару дней все это улетучится из вашей памяти, и тогда будет значительно сложнее восстановить картину.

Когда у вас будет полностью соответствующий реальности план, можно начинать перепланировку.

Глава 29
Перепланировка

Как говорит один из моих коллег, грамотная планировка – половина успеха. Возможно, даже больше чем половина, это ведь сложно точно подсчитать.

Для начала давайте вспомним таблицу, которую я приводила в части 1 книги. Там были расписаны зоны ответственности архитектора, дизайнера и декоратора. Обратите еще раз внимание на то, что перепланировка не входит в перечень работ, которые должны выполнять дизайнер или декоратор.

Согласно законодательству, более-менее одинаковому в этом плане на территории практически всего бывшего СССР, перепланировку имеет право запроектировать только сертифицированный архитектор. Любую, даже самую незначительную перепланировку он должен заверить своим сертификатом, а потом ее следует согласовать в соответствующей инстанции – архитектурном или строительном управлении города, в разных странах они могут называться по-разному.

Давайте попробуем разобраться, что является перепланировкой, а что нет.

Работы, относящиеся к перепланировке и, соответственно, требующие обязательного согласования с архитектурным управлением, жилищной инспекцией, центром согласования планировок недвижимости и/или другими контролирующими службами города:

1. Изменение стен и перегородок.

2. Перенос дверных проемов.

3. Объединение или разделение помещений, в том числе санузлов.

4. Изменение назначения комнат.

5. Изменение площади и конфигурации комнат.

6. Изменение общей площади квартиры (например, за счет присоединения лоджии).

Вход
Поиск по сайту
Ищем:
Календарь