Онлайн книга «Градостроительная политика в СССР (1917-1929). От города-сада к ведомственному рабочему поселку»
|
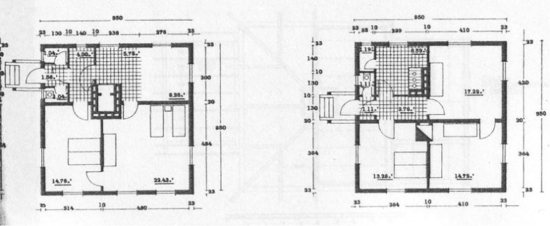
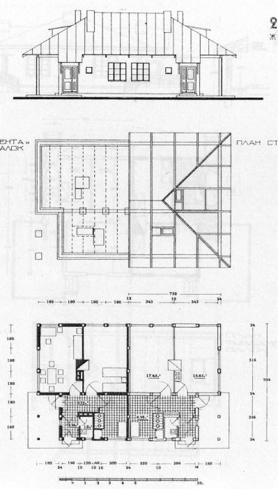
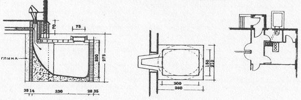
Попытки учесть реальные возможности строительной отрасли подталкивали архитекторов к использованию доступных строительных материалов, в частности к применению дерева как наиболее дешевого и наиболее привычного для малоквалифицированных (в основной своей массе) строителей, приводили к вынужденному отказу от воплощения «мечты устройства в поселках водопроводов и канализации» [483], центрального отопления. В результате в проектах закладывались люфт-клозеты без промывки водой, устраивались русские печи, обеспечивавшие одновременно приготовление пищи и отопление дома; холодные сени-тамбур для изоляции прямого перетока холодного воздуха и хранения продуктов; «черновые кухни», то есть обособленные помещения при кухне, специально предназначенные для грязной работы – чистки овощей, мытья посуды и хозяйственной утвари, мелкой стирки белья и хранения хозяйственных принадлежностей – и позволяющие за счет выноса сюда всего комплекса грязных работ содержать в чистоте основное помещение «чистовой» кухни, используемое также в роли столовой. ![]() Рис. 139. Блокированный дом для 2 семей рабочих. План. Арх. Н. В. Марковников ![]() Рис. 140. Деревянный 2-комнатный жилой дом для рабочего поселка при Каширской электростанции. План. Арх. С. Е. Чернышев ![]() Рис. 141. Дом на 2 квартиры для трудящихся. Фасад, план. Арх. Н. Е. Лансере. Середина 1920-х ![]() Рис. 142. Рабочий соцпоселок при лесозаводе на станции Бекетовская (г. Сталинград). Двухквартирный жилой дом. План, фасад. 1925 ![]() Рис. 143. Устройство люфт-клозета у наружной стены дома с целью обеспечения очистки выгребной ямы ![]() Рис. 144. Система совместного расположения люфт-клозета и печки для поддержания постоянной тяги из вентиляционных каналов ![]() Рис. 145. Совместное расположение люфт-клозета и печки с выносом выгребной ямы. Рабочий поселок-сад в г. Твери. Одноэтажный жилой 2-квартирный дом. Фасад, план. 1924 Все эти решения с неизбежностью оказывали влияние на планировку домов, так как, например, наличие люфт-клозета требовало обязательного расположения его у наружной стены (для обеспечения доступа к выгребной яме для его очистки) (рис. 143), а также максимально возможного приближения туалета к зоне размещения печи (в целях его обогрева и устройства единой «принудительной» вытяжки через дымовую трубу) (рис. 144). Наиболее эффективным оказалось расположение люфт-клозета и печи в центре дома (с большим выносом выгребной ямы), на равном расстоянии источника тепла от всех комнат в целях равномерного отопления всего внутреннего пространства. Например, дом подобной компоновки проектировался в 1924 г. для рабочего поселка-сада в Твери [484] (рис. 145). В таких проектах жилые комнаты вынужденно уменьшались в размерах и приводились в соответствие с кубатурой помещения (иначе дров не напасешься). По этой же причине приходилось отказываться от наличия в домах передней или коридора: устройство входов в комнаты из передней или коридора слишком «растягивало» планировку дома и лишало возможности отопить квартиру из одного размещенного в центре теплового источника. В противном случае приходилось устраивать в отдельных помещениях дополнительные печи, что увеличивало трудоемкость возведения и удорожало как постройку, так и последующую эксплуатацию. Помещения, наиболее отдаленные от печи, устраивались с перегородками, не доходящими до потока (для обеспечения циркуляции воздуха), а подчас подобным образом в целях улучшения теплообмена делались вообще все перегородки в доме. Если отсутствовала черновая кухня (то есть кухня, которая совмещала все хозяйственные процессы, в том числе приготовление горячей пищи для скота в зимнее время), то обычная кухня планировочно «подтягивалась» ближе к входу, чтобы не привносить излишней грязи в жилые помещения (рис. 146, 147). ![]() Рис. 146. Расположение кухни и прочих хозяйственных помещений у входа в дом. Одноквартирный деревянный рубленый жилой дом. Проект. 1929 ![]() Рис. 147. Расположение кухни и прочих хозяйственных помещений у входа в дом. Парный деревянный каркасный жилой дом. Проект. 1929 ![]() |
![Иллюстрация к книге — Градостроительная политика в СССР (1917-1929). От города-сада к ведомственному рабочему поселку [i_147.jpg] Иллюстрация к книге — Градостроительная политика в СССР (1917-1929). От города-сада к ведомственному рабочему поселку [i_147.jpg]](img/book_covers/063/63683/i_147.jpg)
![Иллюстрация к книге — Градостроительная политика в СССР (1917-1929). От города-сада к ведомственному рабочему поселку [i_148.jpg] Иллюстрация к книге — Градостроительная политика в СССР (1917-1929). От города-сада к ведомственному рабочему поселку [i_148.jpg]](img/book_covers/063/63683/i_148.jpg)
![Иллюстрация к книге — Градостроительная политика в СССР (1917-1929). От города-сада к ведомственному рабочему поселку [i_149.jpg] Иллюстрация к книге — Градостроительная политика в СССР (1917-1929). От города-сада к ведомственному рабочему поселку [i_149.jpg]](img/book_covers/063/63683/i_149.jpg)
![Иллюстрация к книге — Градостроительная политика в СССР (1917-1929). От города-сада к ведомственному рабочему поселку [i_150.jpg] Иллюстрация к книге — Градостроительная политика в СССР (1917-1929). От города-сада к ведомственному рабочему поселку [i_150.jpg]](img/book_covers/063/63683/i_150.jpg)
![Иллюстрация к книге — Градостроительная политика в СССР (1917-1929). От города-сада к ведомственному рабочему поселку [i_151.jpg] Иллюстрация к книге — Градостроительная политика в СССР (1917-1929). От города-сада к ведомственному рабочему поселку [i_151.jpg]](img/book_covers/063/63683/i_151.jpg)
![Иллюстрация к книге — Градостроительная политика в СССР (1917-1929). От города-сада к ведомственному рабочему поселку [i_152.jpg] Иллюстрация к книге — Градостроительная политика в СССР (1917-1929). От города-сада к ведомственному рабочему поселку [i_152.jpg]](img/book_covers/063/63683/i_152.jpg)
![Иллюстрация к книге — Градостроительная политика в СССР (1917-1929). От города-сада к ведомственному рабочему поселку [i_153.jpg] Иллюстрация к книге — Градостроительная политика в СССР (1917-1929). От города-сада к ведомственному рабочему поселку [i_153.jpg]](img/book_covers/063/63683/i_153.jpg)
![Иллюстрация к книге — Градостроительная политика в СССР (1917-1929). От города-сада к ведомственному рабочему поселку [i_154.jpg] Иллюстрация к книге — Градостроительная политика в СССР (1917-1929). От города-сада к ведомственному рабочему поселку [i_154.jpg]](img/book_covers/063/63683/i_154.jpg)
![Иллюстрация к книге — Градостроительная политика в СССР (1917-1929). От города-сада к ведомственному рабочему поселку [i_155.jpg] Иллюстрация к книге — Градостроительная политика в СССР (1917-1929). От города-сада к ведомственному рабочему поселку [i_155.jpg]](img/book_covers/063/63683/i_155.jpg)
![Иллюстрация к книге — Градостроительная политика в СССР (1917-1929). От города-сада к ведомственному рабочему поселку [i_156.jpg] Иллюстрация к книге — Градостроительная политика в СССР (1917-1929). От города-сада к ведомственному рабочему поселку [i_156.jpg]](img/book_covers/063/63683/i_156.jpg)