Онлайн книга «Современные подвалы, подполы и погреба»
|
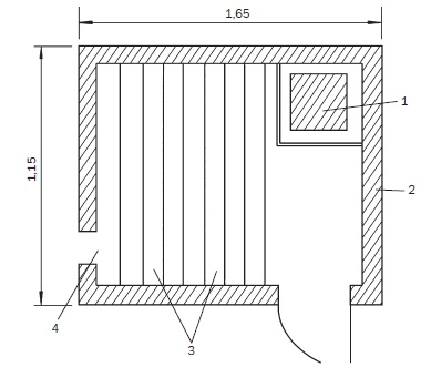
Если предполагается держать в подвале продукты питания, то для них надо построить шкафы у наружной стены (обычно северной), чтобы оборудовать их естественной вентиляцией. И тогда всю зиму там будут храниться свежие овощи и фрукты, стоять банки с консервацией. Сейчас очень популярно устраивать в подвале ледники. Для этого нужно усилить теплоизоляцию дома, например, оклеить стены утеплителем и обшить досками. Низкая температура в помещении поддерживается за счет льда, которым набивается специальная камера – металлический бак, установленный в деревянный ящик. Промежуток между их стенками, который составляет 60–80 мм, заполняется либо опилками, либо минеральной ватой. В днище камеры проделываются отверстия, по которым должна стекать вода, образовавшаяся от таяния льда. Один из возможных вариантов представлен на рис. 45. ![]() Рис. 45. Устройство ледника в подвале: 1 – камера для льда; 2– металлическая перегородка; 3 – место для продуктов; 4 – полки; 5 – стеллаж; 6 – дровник Хранить вещи и различные предметы в подвале удобно, если в нем есть стеллажи (рис. 46). Например, можно предложить простую конструкцию из металлических или деревянных стоек, к которым прикрепляются полки, выполненные из толстой фанеры, ДВП, ДСП и пр. Боковые поверхности можно сделать сквозными или закрыть подходящим материалом. ![]() Рис. 46. Стеллаж для подвала: а – узел сварки; б, в – узлы соединения; 1 – деревянная стойка; 2 – металлическая стойка из трубы; 3 – деревянная полка; 4 – бортик Для изготовления деревянного стеллажа понадобятся обычные столярные инструменты (пила, рулетка и т. п.). При работе над металлическим стеллажом должна быть задействована сварка. Стеллаж крепится к бетонной стене (это сделает его более устойчивым), в которую в соответствующих местах вбиты деревянные пробки. Перед тем как монтировать конструкцию, желательно обработать ее детали, после чего нанести соответствующее покрытие. Размеры, указанные на рис. 46, можно считать базовыми, поскольку стеллаж будет иметь такую величину, чтобы можно было разместить его на площади конкретного подвального помещения. Желательно, чтобы в кладовой имелся стол. Не менее часто застройщики планируют устроить в подвале гараж. Это вполне реально, но при этом необходимо знать определенные требования и правила, которым он должен соответствовать. Положительным моментом здесь является то, что гараж с кирпичными стенами строится одновременно с фундаментом и ограждающими конструкциями самого дома. Толщина его стен такая же, как у наружных стен здания. Гараж одинаково удобен и практичен, когда устраивается в подвале на отметке 230 см или в полуподвальном помещении на отметке 150 см. Обычно он имеет размеры 550 × 400 (385) см. Его нередко оборудуют сквозными воротами. Наиболее часто в гараже делают бетонный пол, допускается и мастичный, но бывает, что его выкладывают керамической плиткой. Чтобы обеспечить выезд из гаража накатом, а также сток воды, полы выполняются с уклоном в направлении ворот. Осваиваем пространство ниже нулевой отметки О качестве цемента можно судить по дате его изготовления и сроку годности. При хранении его активность уменьшается примерно на 5 % в месяц, т. е. через три месяца она упадет на 10–15 %, а по прошествии полугода – на 40–50 %. Поэтому трудно от такого цемента ожидать высокого качества конструкции. Следовательно, необходимо покупать только свежеизготовленный материал. Как правило, гараж совмещается с автомастерской, поэтому в этом помещении можно разместить верстак с тисками, полки для хранения инструмента, канистры и другое необходимое оборудование. Здесь обязательно должны быть ящик с песком, лопата и огнетушитель на случай возникновения пожара. Очень часто гараж оборудуется смотровой ямой, хотя это не совсем целесообразно, поскольку из нее могут идти испарения, а при перепаде температур выпадает конденсат, что в совокупности приводит к коррозии металлических деталей машины. Но, если уровень залегания грунтовых вод составляет 2,5–3 м, устройство смотровой ямы допускается. Наличие вентиляции в гараже обязательно (чтобы не дышать бензиновыми парами). Она осуществляется посредством каналов, устроенных во внутренней несущей стене дома, откуда они вместе с дымоходами компонуются и выводятся на крышу. Следует позаботиться и о дренажной решетке у ворот. Кроме того, необходима и качественная звукоизоляция. Кроме специфического оборудования, в гараж непременно нужно провести электричество и водопровод. Все сказанное представлено на рис. 47. ![]() Рис. 47. Схема гаража: а – в подвале; б – в полуподвальном помещении; 1 – калитка; 2 – пилястра; 3 – окно; 4 – ворота; 5 – верстак; 6 – смотровая яма Очень хорошо, если в подвале оборудуют сауну. Для этого вдоль внутренних стен выполняется каркас, к которому внахлест (не менее 10 см), одно полотнище на другое, набивается рубероид, после чего осуществляется обшивка досками. Потом из алюминиевой фольги создается теплоотражающий экран, благодаря которому можно получить эффект термоса. Для обеспечения циркуляции воздуха под досками делают вертикальные отверстия. Сауна должна быть качественно звуко– и теплоизолирована, причем последнее необходимо не столько для сохранения в ней тепла, сколько для защиты от избыточного тепла пола первого этажа. Габариты сауны могут быть различными в зависимости от того количества человек, на которое она рассчитана. При высоте 2–2,3 м достаточной оказывается площадь в 10–12 м2, но планировка от этого практически не меняется (рис. 48). ![]() Рис. 48. Планировка сауны: 1 – электрокаменка; 2 – ограждение; 3 – полки; 4 – вентиляционное отверстие В первую очередь в сауне должны быть оборудованы полки и печь-каменка (рис. 49). ![]() Рис. 49. Устройство печи-каменки: 1 – асбоцементная плита; 2 – корпус печи; 3 – тэн; 4 – внешний кожух; 5 – вентиляционное отверстие; 6 – камин; 7 – электрический кабель Каменка располагается примерно в 1 м от стены на асбоцементном основании. Проводка выполнена из четырехжильного кабеля, заключенного в металлическую трубу. Щит управления и защиты устроен в предбаннике. Корпус печи заземлен, вокруг нее выполнено ограждение. |
![Иллюстрация к книге — Современные подвалы, подполы и погреба [i_053.jpg] Иллюстрация к книге — Современные подвалы, подполы и погреба [i_053.jpg]](img/book_covers/060/60939/i_053.jpg)
![Иллюстрация к книге — Современные подвалы, подполы и погреба [i_054.jpg] Иллюстрация к книге — Современные подвалы, подполы и погреба [i_054.jpg]](img/book_covers/060/60939/i_054.jpg)
![Иллюстрация к книге — Современные подвалы, подполы и погреба [i_055.jpg] Иллюстрация к книге — Современные подвалы, подполы и погреба [i_055.jpg]](img/book_covers/060/60939/i_055.jpg)
![Иллюстрация к книге — Современные подвалы, подполы и погреба [i_056.jpg] Иллюстрация к книге — Современные подвалы, подполы и погреба [i_056.jpg]](img/book_covers/060/60939/i_056.jpg)
![Иллюстрация к книге — Современные подвалы, подполы и погреба [i_057.jpg] Иллюстрация к книге — Современные подвалы, подполы и погреба [i_057.jpg]](img/book_covers/060/60939/i_057.jpg)