Книга Мозг. Тайны разума, страница 12 – Уайлдер Пенфилд

Авторы: А Б В Г Д Е Ж З И Й К Л М Н О П Р С Т У Ф Х Ч Ш Ы Э Ю Я
Книги: А Б В Г Д Е Ж З И Й К Л М Н О П Р С Т У Ф Х Ц Ч Ш Щ Ы Э Ю Я
Бесплатная онлайн библиотека LoveRead.ec

Онлайн книга «Мозг. Тайны разума»

📃 Cтраница 12
Глава 7
Физиологическая интерпретация приступа эпилепсии

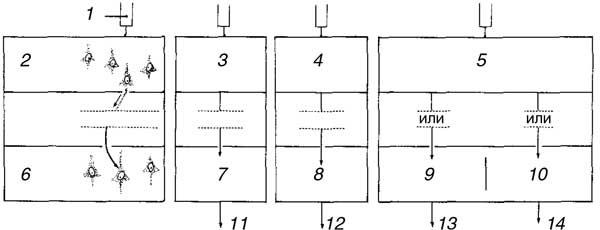
В 1958 году, накопив значительный клинический опыт, я решил критически пересмотреть физиологические аспекты вопроса, связанного с исследованием человеческого мозга при помощи электричества. Результаты моих размышлений были представлены в Шеррингтоновских лекциях.18 Мне стало ясно, что электрод, подводящий ток к коре полушарий, полностью расстраивает нормальную модель работы этой зоны серого вещества. На примере некоторых областей было показано, что при этом какие бы то ни было другие воздействия на мозг отсутствовали. Один из таких примеров иллюстрирует рис. 6: здесь электрод, внедренный в одну из трех речевых зон коры мозга, вызывает афазию. Но и стимуляция, примененная и в других областях коры, как это представлено в таблице 1, также приводит к положительной реакции.


Таблица 1. Положительные реакции

Электрическая стимуляция (или эпилептический разряд) приводит к локальному расстройству функции серого вещества. Однако активная положительная реакция возникает только в случае, когда электрод внедрен к тому участку коры мозга, откуда в норме аксональные проводящие пути, идущие вдоль функциональных путей, вызывают активацию какой-либо отдаленной ганглионарной станции. Корковые реакции подразделяются на четыре типа: мышечные движения, ощущения, интерпретативное восприятие и вспоминание сознательного опыта.

Иллюстрация к книге — Мозг. Тайны разума [i_014.jpg]

(Обозначения снизу-вверх-вниз, т. е. по кругу, по часовой стрелке, и справа-налево)

Положительные реакции на эпилептический разряд или электрическая стимуляция коры полушарий мозга

1 Электрод

2 Кора мозга

3 Моторные зоны

4 Сенсорные зоны (соматическая, зрительная, слуховая и т. д.)

5 Интерпретативные зоны

6 Вторичная ганглионарная станция

7 Медулла, или спинной мозг

8 Высшие отделы мозгового ствола

9 Механизмы интерпретации

10 Механизмы вспоминания

11 Движение

12 Чувствование

13 Восприятие

14 Автоматическое воспоминание


Такие положительные реакции вызываются не активацией конкретного участка серого вещества, лежащего вблизи электрода, а нейрональным проведением импульса по защищенным миелиновым слоем аксонам, идущим к отдаленному участку серого вещества, находящемуся за пределами интервенционного влияния тока от электрода.

Позволю себе повторить, что активации подвергается находящееся в отдалении серое вещество. Смотрите на рисунке 6 схему стимуляции моторной коры, а также соматической чувствительной коры и зрительной чувствительной коры. Всегда имеет место вмешательство в нормальную модель использования локального участка серого вещества. Если также наблюдается положительная ответная реакция, то она вызывается функциональной активацией отдаленного участка серого вещества. Поэтому, когда электрод прикладывается к зоне руки в моторной коре, утрачивается возможность тонкой моторики руки, обусловленная нормальной работой коры, в то же время активируется вторичная станция серого вещества, расположенная в спинном мозге, поэтому способность к выполнению более грубых движений, например сжатие руки, остается для младенцев доступной.

Обычная клиническая эпилепсия характеризуется спонтанным разрядом, возникающим в большинстве случаев либо в сером веществе коры полушарий, либо в ядрах серого вещества высшего отдела ствола мозга. Этого никогда не происходит в белом веществе. В случае когда это происходит в так называемой тихой зоне коры, такой разряд может не проявляться, и его вероятно зафиксировать только с помощью электроэнцефалографа.

При любом припадке фокальный разряд начинается в некотором локальном участке серого вещества. Если имеет место положительное проявление разряда, то оно является, как и в случае с электрической стимуляцией (см. табл. 1), аксональным проведением импульса к отдаленному участку серого вещества. Тогда это происходит вследствие нейрональной активации некоторых отдаленных вторичных ганглионарных станций (см. рис. 6). Эпилептический разряд продолжается до тех пор, пока разряжающиеся локальные нейроны не истощатся. Вторичная отдаленная ответная реакция, которую они вызывают, в этом случае также прекращается, но локальное паралитическое нарушение в первичной зоне разряда продолжается и после того, как разряд прекратился, и длится до того момента, когда клетка снова восстановится после истощения.

Дистанционный ответ, если он имеется, является физиологическим феноменом, который прекращается, как я уже отмечал, как только прекращается аксональное проведение импульса.

В исследованиях с использованием электричества всегда существует опасность превышения силы тока, подводимого к коре мозга с помощью электрода. В таких случаях локальное серое вещество включается в эпилептический разряд. После выемки электрода наступает послеразрядный, или локальный, приступ. Опасность кроется и в том, что аксональное проведение импульса от локального серого вещества к какому-либо отдаленному участку серого вещества может усилиться настолько, что станет подобной настоящей бомбардировке, которая приведет к вторичному эпилептическому взрыву.

Распространение локального разряда в случае приступа может происходить одним из двух путей: 1) «Джексоновским маршем» к контагиозному серому веществу, или 2) на расстоянии (как только что говорилось), путем нейронального проведения импульса к функционально связанному участку серого вещества. Распространение разряда, а следовательно, и эпилептического припадка, происходит в тех случаях, когда поток импульсов перерастает в чрезмерно агрессивную бомбардировку. Тогда вместо физиологической активации отдаленного серого вещества происходит разряд в находящемся в отдалении участке серого вещества. То есть в результате в этом отдаленном участке серого вещества возникает новое локальное функциональное расстройство, а не его активация [10].

Иллюстрация к книге — Мозг. Тайны разума [i_015.jpg]

Рисунок из анатомического атласа Хуана Вальверде де Амуско

(ит. Anatomia del corpo humano). 1560 г.

Глава 8
Ранние концепции механизмов памяти и новейшие гипотезы

На основе современных представлений о физиологических аспектах электрической стимуляции и модели нейронального разряда при эпилептических приступах было достигнуто более ясное понимание того, что происходит в результате экспериментально вызванной реакции на электрическую стимуляцию. Это новое понимание, в свою очередь, потребовало пересмотра представлений о «ретроспекциях». Поэтому, после завершения моей карьеры оперирующего нейрохирурга в 1960 году, мы решили пересмотреть, а затем опубликовать подробные данные о реакциях, которые провоцировались в наших экспериментах, с тем, чтобы другие исследователи могли сами судить об их смысле и значении. Впоследствии эти сведения были изложены мною в Листеровской речи на собрании Королевского колледжа хирургов в 1961 году и опубликованы в 1963 году совместно с Фанором Перотом.28

Реклама
Вход
Поиск по сайту
Ищем:
Календарь